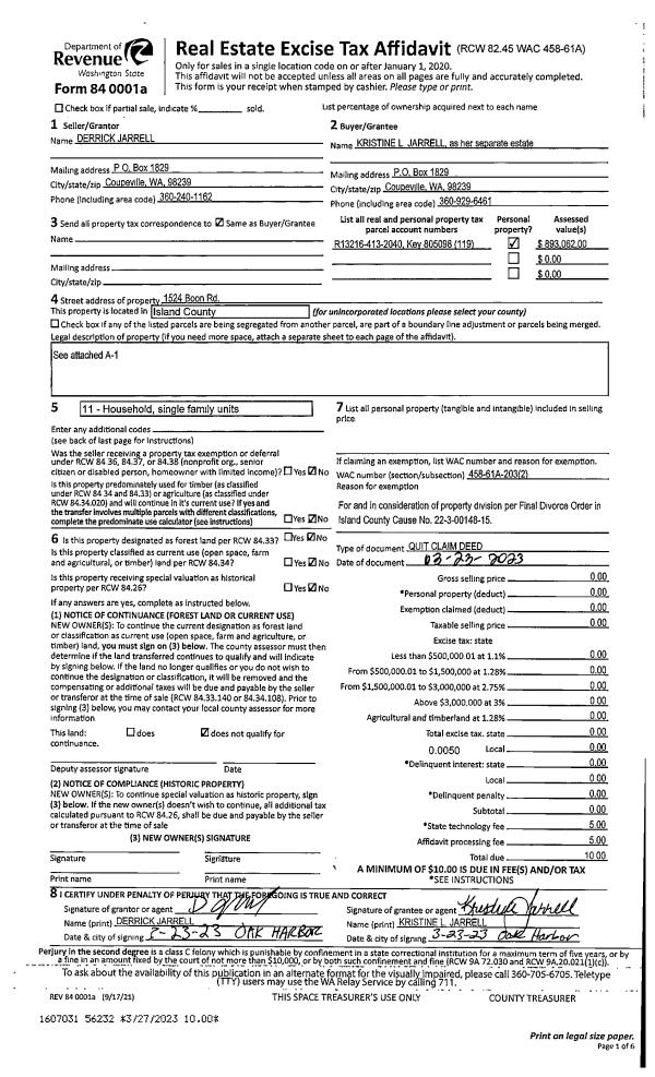
Property
Account |
| Property ID: | 805098 | Abbreviated Legal Description: | S/2 S/2 NE NW EX W20' |
| Geographic ID: | R13216-413-2040 | Agent Code: | |
| Type: | Real | | |
| Tax Area: | 112 - APPRAISER-OH Schl Dist, outside OH, improved, greater than 1 acre | Land Use Code | 11 |
| Open Space: | N | DFL | N |
| Historic Property: | N | Remodel Property: | N |
| Multi-Family Redevelopment: | N | | |
| Township: | 32 | Section: | 16 |
| Range: | R1 |
Location |
| Address: | 1524 BOON RD OAK HARBOR, WA 98277 | Mapsco: | |
| Neighborhood: | Cycle 1 | Map ID: | 130 |
| Neighborhood CD: | 1 |
Owner |
| Name: | JARRELL, KRISTINE L | Owner ID: | 308109 |
| Mailing Address: | PO BOX 668 OAK HARBOR, WA 98277 | % Ownership: | 100.0000000000% |
| | | Exemptions: | |
Taxes and Assessment Details
Values
| (+) Improvement Homesite Value: | + | $0 | |
| (+) Improvement Non-Homesite Value: | + | $711,999 | |
| (+) Land Homesite Value: | + | $0 | |
| (+) Land Non-Homesite Value: | + | $350,000 | |
| (+) Curr Use (HS): | + | $0 | $0 |
| (+) Curr Use (NHS): | + | $0 | $0 |
| | | -------------------------- | |
| (=) Market Value: | = | $1,061,999 | |
| (–) Productivity Loss: | – | $0 | |
| | | -------------------------- | |
| (=) Subtotal: | = | $1,061,999 | |
| (+) Senior Appraised Value: | + | $0 | |
| (+) Non-Senior Appraised Value: | + | $1,061,999 | |
| | | -------------------------- | |
| (=) Total Appraised Value: | = | $1,061,999 | |
| (–) Senior Exemption Loss: | – | $0 | |
| (–) Exemption Loss: | – | $0 | |
| | | -------------------------- | |
| (=) Taxable Value: | = | $1,061,999 | |
Taxing Jurisdiction
| Owner: | JARRELL, KRISTINE L | | |
| % Ownership: | 100.0000000000% | | |
| Total Value: | $1,061,999 | | |
| Tax Area: | 112 - APPRAISER-OH Schl Dist, outside OH, improved, greater than 1 acre |
| CF | Conservation Futures | 0.0313996660 | $1,061,999 | $1,061,999 | $33.35 | | |
| CEM1 | Cemetery #1 | 0.0040018856 | $1,061,999 | $1,061,999 | $4.25 | | |
| FIRE2 | Fire & Rescue Dist #2 N Whidbey GEN | 0.5381486274 | $1,061,999 | $1,061,999 | $571.51 | | |
| HOBOND | Hospital BOND | 0.1893405597 | $1,061,999 | $1,061,999 | $201.08 | | |
| HOGEN | Hospital GEN | 0.3848777722 | $1,061,999 | $1,061,999 | $408.74 | | |
| CE | County Current Expense | 0.3674210519 | $1,061,999 | $1,061,999 | $390.20 | | |
| CR | County Roads | 0.4614296361 | $1,061,999 | $1,061,999 | $490.04 | | |
| ISLANDEMS | Hospital GEN (EMS) | 0.4952018576 | $1,061,999 | $1,061,999 | $525.90 | | |
| LIB | Library Sno-Isle GEN | 0.3039084203 | $1,061,999 | $1,061,999 | $322.75 | | |
| NWHIDPRMT | P & R N Whidbey GEN | 0.1990272349 | $1,061,999 | $1,061,999 | $211.37 | | |
| SCH201MO | School 201 Enrichment | 2.3851112745 | $1,061,999 | $1,061,999 | $2,532.99 | | |
| ST | State School | 1.4761226122 | $1,061,999 | $1,061,999 | $1,567.64 | | |
| ST2 | State School Part 2 | 0.7953803475 | $1,061,999 | $1,061,999 | $844.69 | | |
| | Total Tax Rate: | 7.6313709459 | | | | | |
| | | | | Taxes w/Current Exemptions: | $8,104.51 | | |
| | | | | Taxes w/o Exemptions: | $8,104.51 | | |
Improvement / Building
| Improvement #1: | RESIDENTIAL | State Code: | Y | 2683.2 sqft | Value: | $711,999 |
| Bathrooms: | 2.5 | Bedrooms: | 3 | | Ceiling: | DRYWALL PAINTED | Exterior Wall/Cover: | CEMENT FIBER | | Floor Covering: | HARDWOOD/CARP 20-80 | Floor Structure: | WOOD W/SUBFLOOR | | Foundation: | CONCRETE | Heating: | FHA GAS | | Interior Finish: | DRYWALL PAINT | Plumbing Fixture Cnt: | 14 | | Roof Slope: | 6" IN 12" | Roof Structure/Cover: | CJ ASPHALT |
|
| | Type | Description | Class CD | Sub Class CD | Year Built | Area |
| | BAS | BASE/MAIN FLOOR | 4 | 0 | 2006 | 1865.7 |
| | OP1 | OPEN PORCH SLAB | 4 | 0 | 2006 | 239.9 |
| | DGR | DETACHED GARAGE | 4 | 0 | 2006 | 216.0 |
| | OP4 | OPEN PORCH W/CEILING-ROOF | 4 | 0 | 2006 | 238.0 |
| | DGR | DETACHED GARAGE | 4 | 0 | 2006 | 1120.0 |
| | AGR | ATTACHED GARAGE | 4 | 0 | 2006 | 1021.6 |
| | UPS | UPPER STORY | 4 | 0 | 2006 | 817.5 |
| | ATU | ATTIC UNFINISHED | 4 | 0 | 2006 | 1120.0 |
| | ATU | ATTIC UNFINISHED | 4 | 0 | 2006 | 288.0 |
| | OWP | OPEN WOOD PORCH W/STEPS | 4 | 0 | 2006 | 275.2 |
| | OP1 | OPEN PORCH SLAB | 4 | 0 | 2006 | 432.0 |
Sketch
Property Image
Land
| 1 | 91 | UNDEVELOPED LAND-METES AND BOUNDS | 10.0000 | 435600.00 | 0.00 | 0.00 | 1.00 | $130,000 | $0 |
| 2 | HS | HOMESITE | 1.0000 | 43560.00 | 0.00 | 0.00 | 1.00 | $220,000 | $0 |
Roll Value History
| 2026 | N/A | N/A | N/A | N/A | N/A |
| 2025 | $711,999 | $350,000 | $0 | $1,061,999 | $1,061,999 |
| 2024 | $717,984 | $310,000 | $0 | $1,027,984 | $1,027,984 |
| 2023 | $680,090 | $290,000 | $0 | $970,090 | $970,090 |
| 2022 | $623,062 | $270,000 | $0 | $893,062 | $893,062 |
| 2021 | $548,056 | $255,000 | $0 | $803,056 | $803,056 |
| 2020 | $533,968 | $200,000 | $0 | $733,968 | $733,968 |
| 2019 | $406,643 | $297,000 | $0 | $703,643 | $703,643 |
| 2018 | $407,785 | $170,000 | $0 | $577,785 | $577,785 |
| 2017 | $410,589 | $160,000 | $0 | $570,589 | $570,589 |
| 2016 | $415,207 | $160,000 | $0 | $575,207 | $575,207 |
| 2015 | $419,827 | $150,000 | $0 | $569,827 | $569,827 |
| 2014 | $424,443 | $150,000 | $0 | $574,443 | $574,443 |
| 2013 | $429,062 | $135,000 | $0 | $564,062 | $564,062 |
| 2012 | $433,681 | $135,000 | $0 | $568,681 | $568,681 |
| 2011 | $460,024 | $150,000 | $0 | $610,024 | $610,024 |
| 2010 | $463,912 | $150,000 | $0 | $613,912 | $613,912 |
| 2009 | $482,780 | $220,000 | $0 | $702,780 | $702,780 |
| 2008 | $492,803 | $181,440 | $0 | $674,243 | $674,243 |
| 2007 | $458,171 | $181,440 | $0 | $639,611 | $639,611 |
Deed and Sales History
| 1 | 03/23/2023 | QCD | Quit Claim Deed | JARRELL, DERRICK | JARRELL, KRISTINE L | | | $0.00 | 56232 | 4558176 |
| 2 | 12/18/2013 | EZ | Easement | JARRELL, DERRICK | JARRELL, DERRICK | | | $0.00 | 14619 | 4356717 |
| 3 | 09/29/2005 | WD | Warranty Deed | DERNBACH, BRIAN K | JARRELL, DERRICK | | | $160,000.00 | 55024 | 4149858 |
| 4 | 12/15/2003 | SEG | DNU - Segregation | Unknown | DYKSTRA, BETTY A | | | $0.00 | 70104 | 0 |
| 5 | 07/24/2003 | WD | Warranty Deed | DYKSTRA, BETTY A | DERNBACH, BRIAN K | | | $57,500.00 | 33480 | 4070165 |
| 6 | 08/05/2003 | ESTSEPPROP | Establish Separate Property | DYKSTRA, BETTY A | DYKSTRA, BETTY A | | | $0.00 | 33465 | 4070161 |
Payout Agreement
| No payout information available.. |