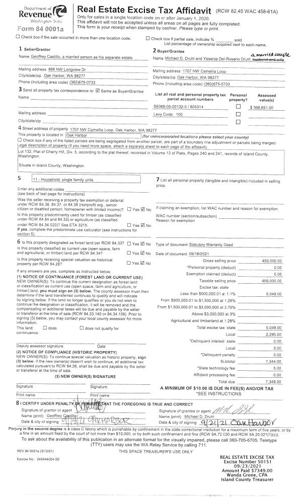
Property
Account |
| Property ID: | 805314 | Abbreviated Legal Description: | CHERRY HILL #5 LOT 132 |
| Geographic ID: | S6368-05-00132-0 | Agent Code: | |
| Type: | Real | | |
| Tax Area: | 100 - APPRAISER-OH Schl Dist, in OH | Land Use Code | 11 |
| Open Space: | N | DFL | N |
| Historic Property: | N | Remodel Property: | N |
| Multi-Family Redevelopment: | N | | |
| Township: | | Section: | |
| Range: | |
Location |
| Address: | 1707 NW CAMELLIA LOOP OAK HARBOR, WA 98277 | Mapsco: | |
| Neighborhood: | Cycle 1 | Map ID: | 255 |
| Neighborhood CD: | 1 |
Owner |
| Name: | DRUHL, MICHAEL D | Owner ID: | 301276 |
| Mailing Address: | YESENIA DRUHL 1707 NW CAMELIA LOOP OAK HARBOR, WA 98277 | % Ownership: | 100.0000000000% |
| | | Exemptions: | |
Taxes and Assessment Details
Values
| (+) Improvement Homesite Value: | + | $0 | |
| (+) Improvement Non-Homesite Value: | + | $309,049 | |
| (+) Land Homesite Value: | + | $0 | |
| (+) Land Non-Homesite Value: | + | $195,000 | |
| (+) Curr Use (HS): | + | $0 | $0 |
| (+) Curr Use (NHS): | + | $0 | $0 |
| | | -------------------------- | |
| (=) Market Value: | = | $504,049 | |
| (–) Productivity Loss: | – | $0 | |
| | | -------------------------- | |
| (=) Subtotal: | = | $504,049 | |
| (+) Senior Appraised Value: | + | $0 | |
| (+) Non-Senior Appraised Value: | + | $504,049 | |
| | | -------------------------- | |
| (=) Total Appraised Value: | = | $504,049 | |
| (–) Senior Exemption Loss: | – | $0 | |
| (–) Exemption Loss: | – | $0 | |
| | | -------------------------- | |
| (=) Taxable Value: | = | $504,049 | |
Taxing Jurisdiction
| Owner: | DRUHL, MICHAEL D | | |
| % Ownership: | 100.0000000000% | | |
| Total Value: | $504,049 | | |
| Tax Area: | 100 - APPRAISER-OH Schl Dist, in OH |
| CF | Conservation Futures | 0.0313996660 | $504,049 | $504,049 | $15.83 | | |
| CEM1 | Cemetery #1 | 0.0040018856 | $504,049 | $504,049 | $2.02 | | |
| COH | City of Oak Harbor | 2.3090730572 | $504,049 | $504,049 | $1,163.89 | | |
| OAKBOND | City of Oak Harbor BOND | 0.1902260131 | $504,049 | $504,049 | $95.88 | | |
| HOBOND | Hospital BOND | 0.1893405597 | $504,049 | $504,049 | $95.44 | | |
| HOGEN | Hospital GEN | 0.3848777722 | $504,049 | $504,049 | $194.00 | | |
| CE | County Current Expense | 0.3674210519 | $504,049 | $504,049 | $185.20 | | |
| ISLANDEMS | Hospital GEN (EMS) | 0.4952018576 | $504,049 | $504,049 | $249.61 | | |
| LIB | Library Sno-Isle GEN | 0.3039084203 | $504,049 | $504,049 | $153.18 | | |
| NWHIDPRMT | P & R N Whidbey GEN | 0.1990272349 | $504,049 | $504,049 | $100.32 | | |
| SCH201MO | School 201 Enrichment | 2.3851112745 | $504,049 | $504,049 | $1,202.21 | | |
| ST | State School | 1.4761226122 | $504,049 | $504,049 | $744.04 | | |
| ST2 | State School Part 2 | 0.7953803475 | $504,049 | $504,049 | $400.91 | | |
| | Total Tax Rate: | 9.1310917527 | | | | | |
| | | | | Taxes w/Current Exemptions: | $4,602.53 | | |
| | | | | Taxes w/o Exemptions: | $4,602.53 | | |
Improvement / Building
| Improvement #1: | RESIDENTIAL | State Code: | Y | 1602.4 sqft | Value: | $309,049 |
| Bathrooms: | 2 | Bedrooms: | 3 | | Ceiling: | DRYWALL PAINTED | Cooling: | HEAT PUMP/CONV/V | | Exterior Wall/Cover: | CEMENT FIBER | Floor Covering: | HARDWOOD/CARP 20-80 | | Floor Structure: | WOOD W/SUBFLOOR | Foundation: | CONCRETE | | Interior Finish: | DRYWALL PAINT | Plumbing Fixture Cnt: | 11 | | Roof Slope: | 6" IN 12" | Roof Structure/Cover: | CJ ASPHALT |
|
| | Type | Description | Class CD | Sub Class CD | Year Built | Area |
| | BAS | BASE/MAIN FLOOR | 3 | 0 | 2005 | 1602.4 |
| | AGR | ATTACHED GARAGE | 3 | 0 | 2005 | 490.6 |
| | OWP | OPEN WOOD PORCH W/STEPS | 3 | 0 | 2005 | 140.3 |
| | OWC | OPEN WOOD PORCH W/STEPS/ROOF/C | 3 | 0 | 2005 | 19.7 |
Sketch
Property Image
Land
| 1 | 13 | SQ (06001-08000) | 0.0000 | 0.00 | 0.00 | 0.00 | 1.00 | $195,000 | $0 |
Roll Value History
| 2026 | N/A | N/A | N/A | N/A | N/A |
| 2025 | $309,049 | $195,000 | $0 | $504,049 | $504,049 |
| 2024 | $312,592 | $190,000 | $0 | $502,592 | $502,592 |
| 2023 | $316,133 | $175,000 | $0 | $491,133 | $491,133 |
| 2022 | $288,668 | $170,000 | $0 | $458,668 | $458,668 |
| 2021 | $246,651 | $120,000 | $0 | $366,651 | $366,651 |
| 2020 | $239,246 | $100,000 | $0 | $339,246 | $339,246 |
| 2019 | $173,812 | $150,000 | $0 | $323,812 | $323,812 |
| 2018 | $174,288 | $130,000 | $0 | $304,288 | $304,288 |
| 2017 | $178,912 | $110,000 | $0 | $288,912 | $288,912 |
| 2016 | $180,928 | $90,000 | $0 | $270,928 | $270,928 |
| 2015 | $182,944 | $55,000 | $0 | $237,944 | $237,944 |
| 2014 | $184,960 | $55,000 | $0 | $239,960 | $239,960 |
| 2013 | $186,975 | $55,000 | $0 | $241,975 | $241,975 |
| 2012 | $188,993 | $65,000 | $0 | $253,993 | $253,993 |
| 2011 | $189,123 | $50,000 | $0 | $239,123 | $239,123 |
| 2010 | $195,462 | $50,000 | $0 | $245,462 | $245,462 |
| 2009 | $201,632 | $52,000 | $0 | $253,632 | $253,632 |
| 2008 | $203,925 | $88,000 | $0 | $291,925 | $291,925 |
| 2007 | $206,183 | $88,000 | $0 | $294,183 | $294,183 |
Deed and Sales History
| 1 | 09/18/2021 | WD | Warranty Deed | CASTILLO, GEOFFREY | DRUHL, MICHAEL D | | | $459,000.00 | 50151 | 4529788 |
| 2 | 04/21/2020 | QCD | Quit Claim Deed | CASTILLO, STEPHANIE F | CASTILLO, GEOFFREY | | | $0.00 | 42716 | 4485212 |
| 3 | 04/16/2020 | WD | Warranty Deed | BERRY, RYAN M | CASTILLO, GEOFFREY | | | $356,000.00 | 42715 | 4485211 |
| 4 | 04/16/2008 | ESTSEPPROP | Establish Separate Property | BERRY, RYAN | BERRY, RYAN M | | | $0.00 | 80959 | 4226672 |
| 5 | 04/07/2008 | WD | Warranty Deed | MULLEN, JAMES H | BERRY, RYAN | | | $275,000.00 | 80958 | 4226671 |
| 6 | 05/10/2006 | WD | Warranty Deed | BRACAMONTE, JASON C | MULLEN, JAMES H | | | $292,000.00 | 62101 | 4170471 |
| 7 | 11/30/2004 | WD | Warranty Deed | FAKKEMA HOMES INC, | BRACAMONTE, JASON C | | | $192,900.00 | 45598 | 4119417 |
| 8 | 01/01/1900 | OTHER | Other - Misc. Documents | Unknown | FAKKEMA HOMES INC, | | | $0.00 | 0 | 0 |
Payout Agreement
| No payout information available.. |