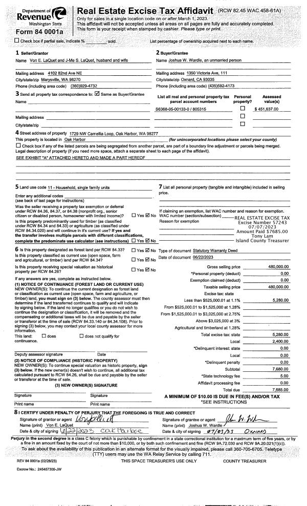
Property
Account |
| Property ID: | 805315 | Abbreviated Legal Description: | CHERRY HILL #5 LOT 133 |
| Geographic ID: | S6368-05-00133-0 | Agent Code: | |
| Type: | Real | | |
| Tax Area: | 100 - APPRAISER-OH Schl Dist, in OH | Land Use Code | 11 |
| Open Space: | N | DFL | N |
| Historic Property: | N | Remodel Property: | N |
| Multi-Family Redevelopment: | N | | |
| Township: | | Section: | |
| Range: | |
Location |
| Address: | 1729 NW CAMELLIA LOOP OAK HARBOR, WA 98277 | Mapsco: | |
| Neighborhood: | Cycle 1 | Map ID: | 255 |
| Neighborhood CD: | 1 |
Owner |
| Name: | WARDLE, JOSHUA W | Owner ID: | 309225 |
| Mailing Address: | 1350 VICTORIA AVE, 111 OXNARD, CA 93035 | % Ownership: | 100.0000000000% |
| | | Exemptions: | |
Taxes and Assessment Details
Values
| (+) Improvement Homesite Value: | + | $0 | |
| (+) Improvement Non-Homesite Value: | + | $276,637 | |
| (+) Land Homesite Value: | + | $0 | |
| (+) Land Non-Homesite Value: | + | $195,000 | |
| (+) Curr Use (HS): | + | $0 | $0 |
| (+) Curr Use (NHS): | + | $0 | $0 |
| | | -------------------------- | |
| (=) Market Value: | = | $471,637 | |
| (–) Productivity Loss: | – | $0 | |
| | | -------------------------- | |
| (=) Subtotal: | = | $471,637 | |
| (+) Senior Appraised Value: | + | $0 | |
| (+) Non-Senior Appraised Value: | + | $471,637 | |
| | | -------------------------- | |
| (=) Total Appraised Value: | = | $471,637 | |
| (–) Senior Exemption Loss: | – | $0 | |
| (–) Exemption Loss: | – | $0 | |
| | | -------------------------- | |
| (=) Taxable Value: | = | $471,637 | |
Taxing Jurisdiction
| Owner: | WARDLE, JOSHUA W | | |
| % Ownership: | 100.0000000000% | | |
| Total Value: | $471,637 | | |
| Tax Area: | 100 - APPRAISER-OH Schl Dist, in OH |
| CF | Conservation Futures | 0.0313996660 | $471,637 | $471,637 | $14.81 | | |
| CEM1 | Cemetery #1 | 0.0040018856 | $471,637 | $471,637 | $1.89 | | |
| COH | City of Oak Harbor | 2.3090730572 | $471,637 | $471,637 | $1,089.04 | | |
| OAKBOND | City of Oak Harbor BOND | 0.1902260131 | $471,637 | $471,637 | $89.72 | | |
| HOBOND | Hospital BOND | 0.1893405597 | $471,637 | $471,637 | $89.30 | | |
| HOGEN | Hospital GEN | 0.3848777722 | $471,637 | $471,637 | $181.52 | | |
| CE | County Current Expense | 0.3674210519 | $471,637 | $471,637 | $173.29 | | |
| ISLANDEMS | Hospital GEN (EMS) | 0.4952018576 | $471,637 | $471,637 | $233.56 | | |
| LIB | Library Sno-Isle GEN | 0.3039084203 | $471,637 | $471,637 | $143.33 | | |
| NWHIDPRMT | P & R N Whidbey GEN | 0.1990272349 | $471,637 | $471,637 | $93.87 | | |
| SCH201MO | School 201 Enrichment | 2.3851112745 | $471,637 | $471,637 | $1,124.91 | | |
| ST | State School | 1.4761226122 | $471,637 | $471,637 | $696.19 | | |
| ST2 | State School Part 2 | 0.7953803475 | $471,637 | $471,637 | $375.13 | | |
| | Total Tax Rate: | 9.1310917527 | | | | | |
| | | | | Taxes w/Current Exemptions: | $4,306.56 | | |
| | | | | Taxes w/o Exemptions: | $4,306.56 | | |
Improvement / Building
| Improvement #1: | RESIDENTIAL | State Code: | Y | 1448.3 sqft | Value: | $276,637 |
| Bathrooms: | 2 | Bedrooms: | 3 | | Ceiling: | DRYWALL PAINTED | Exterior Wall/Cover: | CEMENT FIBER | | Floor Covering: | CARPET/VINYL 80-20 | Floor Structure: | WOOD W/SUBFLOOR | | Foundation: | CONCRETE | Heating: | FHA GAS | | Interior Finish: | DRYWALL PAINT | Plumbing Fixture Cnt: | 9 | | Roof Slope: | 6" IN 12" | Roof Structure/Cover: | CJ ASPHALT |
|
| | Type | Description | Class CD | Sub Class CD | Year Built | Area |
| | BAS | BASE/MAIN FLOOR | 3 | 0 | 2005 | 1448.3 |
| | OP1 | OPEN PORCH SLAB | 3 | 0 | 2005 | 42.0 |
| | OP4 | OPEN PORCH W/CEILING-ROOF | 3 | 0 | 2005 | 86.4 |
| | AGR | ATTACHED GARAGE | 3 | 0 | 2005 | 582.0 |
| | OWP | OPEN WOOD PORCH W/STEPS | 3 | 0 | 2005 | 151.2 |
Sketch
Property Image
Land
| 1 | 13 | SQ (06001-08000) | 0.0000 | 0.00 | 0.00 | 0.00 | 1.00 | $195,000 | $0 |
Roll Value History
| 2026 | N/A | N/A | N/A | N/A | N/A |
| 2025 | $276,637 | $195,000 | $0 | $471,637 | $471,637 |
| 2024 | $279,881 | $190,000 | $0 | $469,881 | $469,881 |
| 2023 | $276,637 | $175,000 | $0 | $451,637 | $451,637 |
| 2022 | $253,440 | $170,000 | $0 | $423,440 | $423,440 |
| 2021 | $222,944 | $120,000 | $0 | $342,944 | $342,944 |
| 2020 | $217,018 | $100,000 | $0 | $317,018 | $317,018 |
| 2019 | $157,075 | $150,000 | $0 | $307,075 | $307,075 |
| 2018 | $157,514 | $130,000 | $0 | $287,514 | $287,514 |
| 2017 | $155,751 | $110,000 | $0 | $265,751 | $265,751 |
| 2016 | $157,522 | $90,000 | $0 | $247,522 | $247,522 |
| 2015 | $159,291 | $55,000 | $0 | $214,291 | $214,291 |
| 2014 | $161,063 | $55,000 | $0 | $216,063 | $216,063 |
| 2013 | $162,832 | $55,000 | $0 | $217,832 | $217,832 |
| 2012 | $164,603 | $65,000 | $0 | $229,603 | $229,603 |
| 2011 | $166,121 | $50,000 | $0 | $216,121 | $216,121 |
| 2010 | $173,909 | $50,000 | $0 | $223,909 | $223,909 |
| 2009 | $179,415 | $52,000 | $0 | $231,415 | $231,415 |
| 2008 | $181,516 | $88,000 | $0 | $269,516 | $269,516 |
| 2007 | $183,583 | $88,000 | $0 | $271,583 | $271,583 |
Deed and Sales History
| 1 | 06/22/2023 | WD | Warranty Deed | LAQUET, VON E | WARDLE, JOSHUA W | | | $480,000.00 | 57243 | 4561982 |
| 2 | 12/16/2004 | WD | Warranty Deed | FAKKEMA HOMES INC, | LAQUET, VON E | | | $183,900.00 | 45870 | 4120920 |
| 3 | 01/01/1900 | OTHER | Other - Misc. Documents | Unknown | FAKKEMA HOMES INC, | | | $0.00 | 0 | 0 |
Payout Agreement
| No payout information available.. |