Property
Account |
| Property ID: | 805334 | Abbreviated Legal Description: | REDWING #1 LOT 6 |
| Geographic ID: | S8008-00-00006-0 | Agent Code: | |
| Type: | Real | | |
| Tax Area: | 100 - APPRAISER-OH Schl Dist, in OH | Land Use Code | 11 |
| Open Space: | N | DFL | N |
| Historic Property: | N | Remodel Property: | N |
| Multi-Family Redevelopment: | N | | |
| Township: | | Section: | |
| Range: | |
Location |
| Address: | 1236 NW REDWING DR OAK HARBOR, WA 98277 | Mapsco: | |
| Neighborhood: | Cycle 1 | Map ID: | 254 |
| Neighborhood CD: | 1 |
Owner |
| Name: | COTTINGTON, NICHOLE | Owner ID: | 300833 |
| Mailing Address: | CHRISTOPHER COTTINGTON 1236 NW REDWING DR OAK HARBOR, WA 98277 | % Ownership: | 100.0000000000% |
| | | Exemptions: | |
Taxes and Assessment Details
Values
| (+) Improvement Homesite Value: | + | $0 | |
| (+) Improvement Non-Homesite Value: | + | $305,862 | |
| (+) Land Homesite Value: | + | $0 | |
| (+) Land Non-Homesite Value: | + | $200,000 | |
| (+) Curr Use (HS): | + | $0 | $0 |
| (+) Curr Use (NHS): | + | $0 | $0 |
| | | -------------------------- | |
| (=) Market Value: | = | $505,862 | |
| (–) Productivity Loss: | – | $0 | |
| | | -------------------------- | |
| (=) Subtotal: | = | $505,862 | |
| (+) Senior Appraised Value: | + | $0 | |
| (+) Non-Senior Appraised Value: | + | $505,862 | |
| | | -------------------------- | |
| (=) Total Appraised Value: | = | $505,862 | |
| (–) Senior Exemption Loss: | – | $0 | |
| (–) Exemption Loss: | – | $0 | |
| | | -------------------------- | |
| (=) Taxable Value: | = | $505,862 | |
Taxing Jurisdiction
| Owner: | COTTINGTON, NICHOLE | | |
| % Ownership: | 100.0000000000% | | |
| Total Value: | $505,862 | | |
| Tax Area: | 100 - APPRAISER-OH Schl Dist, in OH |
| CF | Conservation Futures | 0.0313996660 | $505,862 | $505,862 | $15.88 | | |
| CEM1 | Cemetery #1 | 0.0040018856 | $505,862 | $505,862 | $2.02 | | |
| COH | City of Oak Harbor | 2.3090730572 | $505,862 | $505,862 | $1,168.07 | | |
| OAKBOND | City of Oak Harbor BOND | 0.1902260131 | $505,862 | $505,862 | $96.23 | | |
| HOBOND | Hospital BOND | 0.1893405597 | $505,862 | $505,862 | $95.78 | | |
| HOGEN | Hospital GEN | 0.3848777722 | $505,862 | $505,862 | $194.70 | | |
| CE | County Current Expense | 0.3674210519 | $505,862 | $505,862 | $185.86 | | |
| ISLANDEMS | Hospital GEN (EMS) | 0.4952018576 | $505,862 | $505,862 | $250.50 | | |
| LIB | Library Sno-Isle GEN | 0.3039084203 | $505,862 | $505,862 | $153.74 | | |
| NWHIDPRMT | P & R N Whidbey GEN | 0.1990272349 | $505,862 | $505,862 | $100.68 | | |
| SCH201MO | School 201 Enrichment | 2.3851112745 | $505,862 | $505,862 | $1,206.54 | | |
| ST | State School | 1.4761226122 | $505,862 | $505,862 | $746.71 | | |
| ST2 | State School Part 2 | 0.7953803475 | $505,862 | $505,862 | $402.35 | | |
| | Total Tax Rate: | 9.1310917527 | | | | | |
| | | | | Taxes w/Current Exemptions: | $4,619.06 | | |
| | | | | Taxes w/o Exemptions: | $4,619.06 | | |
Improvement / Building
| Improvement #1: | RESIDENTIAL | State Code: | Y | 1733.2 sqft | Value: | $305,862 |
| Bathrooms: | 2.5 | Bedrooms: | 3 | | Ceiling: | DRYWALL PAINTED | Exterior Wall/Cover: | VINYL | | Floor Covering: | VINYL 100% | Floor Structure: | WOOD W/SUBFLOOR | | Foundation: | CONCRETE | Heating: | FHA GAS | | Interior Finish: | DRYWALL PAINT | Plumbing Fixture Cnt: | 12 | | Roof Slope: | 6" IN 12" | Roof Structure/Cover: | CJ ASPHALT |
|
| | Type | Description | Class CD | Sub Class CD | Year Built | Area |
| | BAS | BASE/MAIN FLOOR | 3 | 0 | 2004 | 837.2 |
| | BIG | BUILT IN GARAGE | 3 | 0 | 2004 | 492.0 |
| | UPS | UPPER STORY | 3 | 0 | 2004 | 896.0 |
| | OWC | OPEN WOOD PORCH W/STEPS/ROOF/C | 3 | 0 | 2004 | 98.8 |
Sketch
Property Image
Land
| 1 | 13 | SQ (06001-08000) | 0.0000 | 0.00 | 0.00 | 0.00 | 1.00 | $200,000 | $0 |
Roll Value History
| 2026 | N/A | N/A | N/A | N/A | N/A |
| 2025 | $305,862 | $200,000 | $0 | $505,862 | $505,862 |
| 2024 | $309,449 | $175,000 | $0 | $484,449 | $484,449 |
| 2023 | $308,648 | $180,000 | $0 | $488,648 | $488,648 |
| 2022 | $282,700 | $180,000 | $0 | $462,700 | $462,700 |
| 2021 | $243,033 | $120,000 | $0 | $363,033 | $363,033 |
| 2020 | $236,487 | $100,000 | $0 | $336,487 | $336,487 |
| 2019 | $173,058 | $150,000 | $0 | $323,058 | $323,058 |
| 2018 | $173,543 | $130,000 | $0 | $303,543 | $303,543 |
| 2017 | $164,846 | $110,000 | $0 | $274,846 | $274,846 |
| 2016 | $166,763 | $90,000 | $0 | $256,763 | $256,763 |
| 2015 | $168,681 | $55,000 | $0 | $223,681 | $223,681 |
| 2014 | $170,597 | $55,000 | $0 | $225,597 | $225,597 |
| 2013 | $172,515 | $55,000 | $0 | $227,515 | $227,515 |
| 2012 | $174,431 | $60,000 | $0 | $234,431 | $234,431 |
| 2011 | $179,742 | $25,859 | $0 | $205,601 | $205,601 |
| 2010 | $187,402 | $25,859 | $0 | $213,261 | $213,261 |
| 2009 | $197,308 | $55,000 | $0 | $252,308 | $252,308 |
| 2008 | $197,766 | $79,500 | $0 | $277,266 | $277,266 |
| 2007 | $200,185 | $95,000 | $0 | $295,185 | $295,185 |
Deed and Sales History
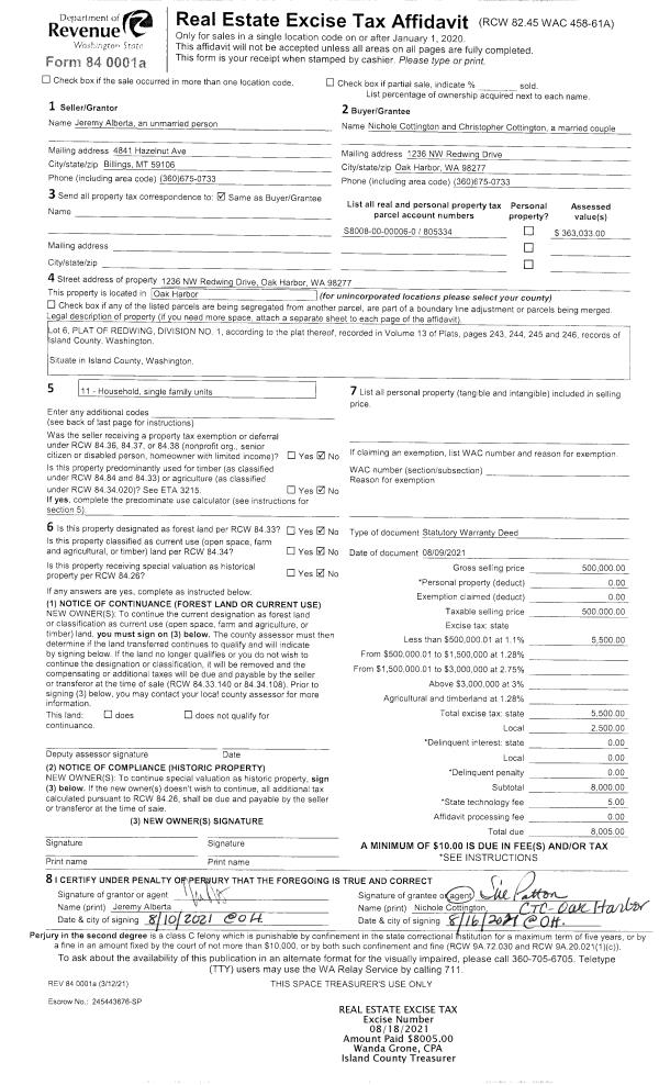
| 1 | 08/09/2021 | WD | Warranty Deed | ALBERTA, JEREMY | COTTINGTON, NICHOLE | | | $500,000.00 | 49678 | 4527144 |
| 2 | 02/06/2013 | WD | Warranty Deed | HARTLEY, SAMUEL A | ALBERTA, JEREMY | | | $240,000.00 | 10364 | 4333140 |
| 3 | 02/04/2004 | WD | Warranty Deed | ISLAND CONSTRUCTION INC, | HARTLEY, SAMUEL A | | | $192,555.00 | 40464 | 4090675 |
| 4 | 07/16/2003 | QCD | Quit Claim Deed | MASSEY, WILLIAM L | ISLAND CONSTRUCTION INC, | | | $0.00 | 33099 | 4067269 |
| 5 | 01/01/1900 | OTHER | Other - Misc. Documents | Unknown | MASSEY, WILLIAM L | | | $0.00 | 0 | 0 |
Payout Agreement
| No payout information available.. |