Property
Account |
| Property ID: | 805355 | Abbreviated Legal Description: | REDWING #1 LOT 27 |
| Geographic ID: | S8008-00-00027-0 | Agent Code: | |
| Type: | Real | | |
| Tax Area: | 100 - APPRAISER-OH Schl Dist, in OH | Land Use Code | 11 |
| Open Space: | N | DFL | N |
| Historic Property: | N | Remodel Property: | N |
| Multi-Family Redevelopment: | N | | |
| Township: | | Section: | |
| Range: | |
Location |
| Address: | 1508 NW KATHLEEN DR OAK HARBOR, WA 98277 | Mapsco: | |
| Neighborhood: | Cycle 1 | Map ID: | 255 |
| Neighborhood CD: | 1 |
Owner |
| Name: | HABITAT FOR HUMANITY OF ISLAND COUNTY | Owner ID: | 201917 |
| Mailing Address: | PO BOX 2279 OAK HARBOR, WA 98277-2279 | % Ownership: | 100.0000000000% |
| | | Exemptions: | |
Taxes and Assessment Details
Values
| (+) Improvement Homesite Value: | + | $0 | |
| (+) Improvement Non-Homesite Value: | + | $0 | |
| (+) Land Homesite Value: | + | $0 | |
| (+) Land Non-Homesite Value: | + | $7,500 | |
| (+) Curr Use (HS): | + | $0 | $0 |
| (+) Curr Use (NHS): | + | $0 | $0 |
| | | -------------------------- | |
| (=) Market Value: | = | $7,500 | |
| (–) Productivity Loss: | – | $0 | |
| | | -------------------------- | |
| (=) Subtotal: | = | $7,500 | |
| (+) Senior Appraised Value: | + | $0 | |
| (+) Non-Senior Appraised Value: | + | $7,500 | |
| | | -------------------------- | |
| (=) Total Appraised Value: | = | $7,500 | |
| (–) Senior Exemption Loss: | – | $0 | |
| (–) Exemption Loss: | – | $0 | |
| | | -------------------------- | |
| (=) Taxable Value: | = | $7,500 | |
Taxing Jurisdiction
| Owner: | HABITAT FOR HUMANITY OF ISLAND COUNTY | | |
| % Ownership: | 100.0000000000% | | |
| Total Value: | $7,500 | | |
| Tax Area: | 100 - APPRAISER-OH Schl Dist, in OH |
| CF | Conservation Futures | 0.0313996660 | $7,500 | $7,500 | $0.24 | | |
| CEM1 | Cemetery #1 | 0.0040018856 | $7,500 | $7,500 | $0.03 | | |
| COH | City of Oak Harbor | 2.3090730572 | $7,500 | $7,500 | $17.32 | | |
| OAKBOND | City of Oak Harbor BOND | 0.1902260131 | $7,500 | $7,500 | $1.43 | | |
| HOBOND | Hospital BOND | 0.1893405597 | $7,500 | $7,500 | $1.42 | | |
| HOGEN | Hospital GEN | 0.3848777722 | $7,500 | $7,500 | $2.89 | | |
| CE | County Current Expense | 0.3674210519 | $7,500 | $7,500 | $2.76 | | |
| ISLANDEMS | Hospital GEN (EMS) | 0.4952018576 | $7,500 | $7,500 | $3.71 | | |
| LIB | Library Sno-Isle GEN | 0.3039084203 | $7,500 | $7,500 | $2.28 | | |
| NWHIDPRMT | P & R N Whidbey GEN | 0.1990272349 | $7,500 | $7,500 | $1.49 | | |
| SCH201MO | School 201 Enrichment | 2.3851112745 | $7,500 | $7,500 | $17.89 | | |
| ST | State School | 1.4761226122 | $7,500 | $7,500 | $11.07 | | |
| ST2 | State School Part 2 | 0.7953803475 | $7,500 | $7,500 | $5.97 | | |
| | Total Tax Rate: | 9.1310917527 | | | | | |
| | | | | Taxes w/Current Exemptions: | $68.50 | | |
| | | | | Taxes w/o Exemptions: | $68.50 | | |
Improvement / Building
Sketch
| No sketches available for this property. |
Property Image
Land
| 1 | 13 | SQ (06001-08000) | 0.1400 | 6098.40 | 0.00 | 0.00 | 1.00 | $7,500 | $0 |
Roll Value History
| 2026 | N/A | N/A | N/A | N/A | N/A |
| 2025 | $0 | $7,500 | $0 | $7,500 | $7,500 |
| 2024 | $0 | $7,500 | $0 | $7,500 | $7,500 |
| 2023 | $0 | $7,500 | $0 | $7,500 | $7,500 |
| 2022 | $0 | $7,500 | $0 | $7,500 | $7,500 |
| 2021 | $0 | $7,500 | $0 | $7,500 | $7,500 |
| 2020 | $0 | $7,500 | $0 | $7,500 | $7,500 |
| 2019 | $0 | $150,000 | $0 | $150,000 | $150,000 |
| 2018 | $0 | $130,000 | $0 | $130,000 | $130,000 |
| 2017 | $0 | $110,000 | $0 | $110,000 | $110,000 |
| 2016 | $0 | $90,000 | $0 | $90,000 | $90,000 |
| 2015 | $110,653 | $55,000 | $0 | $165,653 | $165,653 |
| 2014 | $111,897 | $55,000 | $0 | $166,897 | $166,897 |
| 2013 | $113,140 | $55,000 | $0 | $168,140 | $168,140 |
| 2012 | $114,382 | $60,000 | $0 | $174,382 | $174,382 |
| 2011 | $112,714 | $25,859 | $0 | $138,573 | $138,573 |
| 2010 | $115,436 | $25,859 | $0 | $141,295 | $141,295 |
| 2009 | $118,998 | $55,000 | $0 | $173,998 | $173,998 |
| 2008 | $120,235 | $79,500 | $0 | $199,735 | $199,735 |
| 2007 | $111,149 | $87,332 | $0 | $198,481 | $198,481 |
Deed and Sales History
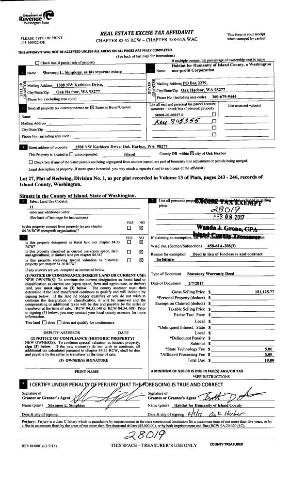
| 1 | 02/07/2017 | WD | Warranty Deed | SIMPKINS, SHANNON L | HABITAT FOR HUMANITY OF ISLAND COUNTY | | | $0.00 | 28019 | 4416725 |
| 2 | 05/03/2016 | DECREE | Divorce Decree/Legal Separation | SIMPKINS, SHANNON L | SIMPKINS, SHANNON L | | | $0.00 | 25307 | 4403490 |
| 3 | 03/23/2006 | WD | Warranty Deed | HABITAT FOR HUMANITY OF ISLAND | SIMPKINS, SHANNON L | | | $76,125.00 | 61275 | 4165868 |
| 4 | 07/31/2003 | QCD | Quit Claim Deed | MASSEY, WILLIAM L | HABITAT FOR HUMANITY OF ISLAND | | | $0.00 | 33307 | 4069055 |
Payout Agreement
| No payout information available.. |