Property
Account |
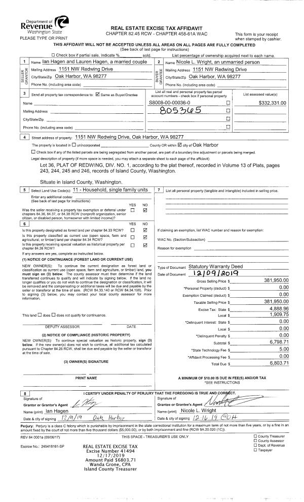
| Property ID: | 805365 | Abbreviated Legal Description: | REDWING #1 LOT 36 |
| Geographic ID: | S8008-00-00036-0 | Agent Code: | |
| Type: | Real | | |
| Tax Area: | 100 - APPRAISER-OH Schl Dist, in OH | Land Use Code | 11 |
| Open Space: | N | DFL | N |
| Historic Property: | N | Remodel Property: | N |
| Multi-Family Redevelopment: | N | | |
| Township: | | Section: | |
| Range: | |
Location |
| Address: | 1151 NW REDWING DR OAK HARBOR, WA 98277 | Mapsco: | |
| Neighborhood: | Cycle 1 | Map ID: | 254 |
| Neighborhood CD: | 1 |
Owner |
| Name: | WRIGHT, NICOLE L | Owner ID: | 292928 |
| Mailing Address: | 1151 NW REDWING DR OAK HARBOR, WA 98277 | % Ownership: | 100.0000000000% |
| | | Exemptions: | |
Taxes and Assessment Details
Values
| (+) Improvement Homesite Value: | + | $0 | |
| (+) Improvement Non-Homesite Value: | + | $311,887 | |
| (+) Land Homesite Value: | + | $0 | |
| (+) Land Non-Homesite Value: | + | $200,000 | |
| (+) Curr Use (HS): | + | $0 | $0 |
| (+) Curr Use (NHS): | + | $0 | $0 |
| | | -------------------------- | |
| (=) Market Value: | = | $511,887 | |
| (–) Productivity Loss: | – | $0 | |
| | | -------------------------- | |
| (=) Subtotal: | = | $511,887 | |
| (+) Senior Appraised Value: | + | $0 | |
| (+) Non-Senior Appraised Value: | + | $511,887 | |
| | | -------------------------- | |
| (=) Total Appraised Value: | = | $511,887 | |
| (–) Senior Exemption Loss: | – | $0 | |
| (–) Exemption Loss: | – | $0 | |
| | | -------------------------- | |
| (=) Taxable Value: | = | $511,887 | |
Taxing Jurisdiction
| Owner: | WRIGHT, NICOLE L | | |
| % Ownership: | 100.0000000000% | | |
| Total Value: | $511,887 | | |
| Tax Area: | 100 - APPRAISER-OH Schl Dist, in OH |
| CF | Conservation Futures | 0.0313996660 | $511,887 | $511,887 | $16.07 | | |
| CEM1 | Cemetery #1 | 0.0040018856 | $511,887 | $511,887 | $2.05 | | |
| COH | City of Oak Harbor | 2.3090730572 | $511,887 | $511,887 | $1,181.98 | | |
| OAKBOND | City of Oak Harbor BOND | 0.1902260131 | $511,887 | $511,887 | $97.37 | | |
| HOBOND | Hospital BOND | 0.1893405597 | $511,887 | $511,887 | $96.92 | | |
| HOGEN | Hospital GEN | 0.3848777722 | $511,887 | $511,887 | $197.01 | | |
| CE | County Current Expense | 0.3674210519 | $511,887 | $511,887 | $188.08 | | |
| ISLANDEMS | Hospital GEN (EMS) | 0.4952018576 | $511,887 | $511,887 | $253.49 | | |
| LIB | Library Sno-Isle GEN | 0.3039084203 | $511,887 | $511,887 | $155.57 | | |
| NWHIDPRMT | P & R N Whidbey GEN | 0.1990272349 | $511,887 | $511,887 | $101.88 | | |
| SCH201MO | School 201 Enrichment | 2.3851112745 | $511,887 | $511,887 | $1,220.91 | | |
| ST | State School | 1.4761226122 | $511,887 | $511,887 | $755.61 | | |
| ST2 | State School Part 2 | 0.7953803475 | $511,887 | $511,887 | $407.14 | | |
| | Total Tax Rate: | 9.1310917527 | | | | | |
| | | | | Taxes w/Current Exemptions: | $4,674.08 | | |
| | | | | Taxes w/o Exemptions: | $4,674.08 | | |
Improvement / Building
| Improvement #1: | RESIDENTIAL | State Code: | Y | 1864.0 sqft | Value: | $311,887 |
| Bathrooms: | 2.5 | Bedrooms: | 3 | | Ceiling: | DRYWALL PAINTED | Exterior Wall/Cover: | VINYL | | Floor Covering: | CARPET/VINYL 80-20 | Floor Structure: | WOOD W/SUBFLOOR | | Foundation: | CONCRETE | Heating: | FHA GAS | | Interior Finish: | DRYWALL PAINT | Plumbing Fixture Cnt: | 11 | | Roof Slope: | 6" IN 12" | Roof Structure/Cover: | CJ ASPHALT |
|
| | Type | Description | Class CD | Sub Class CD | Year Built | Area |
| | BAS | BASE/MAIN FLOOR | 3 | 0 | 2004 | 965.5 |
| | OP4 | OPEN PORCH W/CEILING-ROOF | 3 | 0 | 2004 | 232.5 |
| | AGR | ATTACHED GARAGE | 3 | 0 | 2004 | 490.0 |
| | UPS | UPPER STORY | 3 | 0 | 2004 | 898.5 |
Sketch
Property Image
Land
| 1 | 13 | SQ (06001-08000) | 0.0000 | 0.00 | 0.00 | 0.00 | 1.00 | $200,000 | $0 |
Roll Value History
| 2026 | N/A | N/A | N/A | N/A | N/A |
| 2025 | $311,887 | $200,000 | $0 | $511,887 | $511,887 |
| 2024 | $315,545 | $175,000 | $0 | $490,545 | $490,545 |
| 2023 | $311,739 | $180,000 | $0 | $491,739 | $491,739 |
| 2022 | $285,595 | $180,000 | $0 | $465,595 | $465,595 |
| 2021 | $251,221 | $120,000 | $0 | $371,221 | $371,221 |
| 2020 | $244,711 | $100,000 | $0 | $344,711 | $344,711 |
| 2019 | $182,331 | $150,000 | $0 | $332,331 | $332,331 |
| 2018 | $182,842 | $130,000 | $0 | $312,842 | $312,842 |
| 2017 | $176,067 | $110,000 | $0 | $286,067 | $286,067 |
| 2016 | $169,133 | $90,000 | $0 | $259,133 | $259,133 |
| 2015 | $171,077 | $55,000 | $0 | $226,077 | $226,077 |
| 2014 | $173,020 | $55,000 | $0 | $228,020 | $228,020 |
| 2013 | $174,964 | $55,000 | $0 | $229,964 | $229,964 |
| 2012 | $176,908 | $60,000 | $0 | $236,908 | $236,908 |
| 2011 | $178,761 | $25,859 | $0 | $204,620 | $204,620 |
| 2010 | $181,313 | $25,859 | $0 | $207,172 | $207,172 |
| 2009 | $190,827 | $55,000 | $0 | $245,827 | $245,827 |
| 2008 | $190,968 | $79,500 | $0 | $270,468 | $270,468 |
| 2007 | $193,042 | $95,000 | $0 | $288,042 | $288,042 |
Deed and Sales History
| 1 | 12/09/2019 | WD | Warranty Deed | HAGEN, IAN | WRIGHT, NICOLE L | | | $381,950.00 | 41494 | 4477711 |
| 2 | 12/02/2016 | WD | Warranty Deed | JILL ASHLEY-CHASE | HAGEN, IAN | | | $296,000.00 | 27356 | 4413386 |
| 3 | 03/29/2004 | WD | Warranty Deed | ISLAND CONSTRUCTION INC, | ASHLEY CHASE, JILL | | | $189,900.00 | 41209 | 1095702 |
| 4 | 12/03/2003 | QCD | Quit Claim Deed | MASSEY, WILLIAM L | ISLAND CONSTRUCTION INC, | | | $0.00 | 35419 | 4084848 |
| 5 | 01/01/1900 | OTHER | Other - Misc. Documents | Unknown | MASSEY, WILLIAM L | | | $0.00 | 0 | 0 |
Payout Agreement
| No payout information available.. |