Property
Account |
| Property ID: | 805476 | Abbreviated Legal Description: | SARATOGA VIEWPOINTE #1 LOT 10 |
| Geographic ID: | S8102-00-00010-0 | Agent Code: | |
| Type: | Real | | |
| Tax Area: | 110 - APPRAISER-OH Schl Dist, outside OH, improved & 1 acre or less | Land Use Code | 11 |
| Open Space: | N | DFL | N |
| Historic Property: | N | Remodel Property: | N |
| Multi-Family Redevelopment: | N | | |
| Township: | | Section: | |
| Range: | |
Location |
| Address: | 1438 SERGIOS VIEW LN OAK HARBOR, WA 98277 | Mapsco: | |
| Neighborhood: | Cycle 6 | Map ID: | 541 |
| Neighborhood CD: | 6 |
Owner |
| Name: | LI, MARY | Owner ID: | 306834 |
| Mailing Address: | LIQIN WANG 1218 MARITIME CIRCLE ESSEX, MD 21221 | % Ownership: | 100.0000000000% |
| | | Exemptions: | |
Taxes and Assessment Details
Values
| (+) Improvement Homesite Value: | + | $0 | |
| (+) Improvement Non-Homesite Value: | + | $563,130 | |
| (+) Land Homesite Value: | + | $0 | |
| (+) Land Non-Homesite Value: | + | $515,000 | |
| (+) Curr Use (HS): | + | $0 | $0 |
| (+) Curr Use (NHS): | + | $0 | $0 |
| | | -------------------------- | |
| (=) Market Value: | = | $1,078,130 | |
| (–) Productivity Loss: | – | $0 | |
| | | -------------------------- | |
| (=) Subtotal: | = | $1,078,130 | |
| (+) Senior Appraised Value: | + | $0 | |
| (+) Non-Senior Appraised Value: | + | $1,078,130 | |
| | | -------------------------- | |
| (=) Total Appraised Value: | = | $1,078,130 | |
| (–) Senior Exemption Loss: | – | $0 | |
| (–) Exemption Loss: | – | $0 | |
| | | -------------------------- | |
| (=) Taxable Value: | = | $1,078,130 | |
Taxing Jurisdiction
| Owner: | LI, MARY | | |
| % Ownership: | 100.0000000000% | | |
| Total Value: | $1,078,130 | | |
| Tax Area: | 110 - APPRAISER-OH Schl Dist, outside OH, improved & 1 acre or less |
| CF | Conservation Futures | 0.0313996660 | $1,078,130 | $1,078,130 | $33.85 | | |
| CEM1 | Cemetery #1 | 0.0040018856 | $1,078,130 | $1,078,130 | $4.31 | | |
| FIRE2 | Fire & Rescue Dist #2 N Whidbey GEN | 0.5381486274 | $1,078,130 | $1,078,130 | $580.19 | | |
| HOBOND | Hospital BOND | 0.1893405597 | $1,078,130 | $1,078,130 | $204.13 | | |
| HOGEN | Hospital GEN | 0.3848777722 | $1,078,130 | $1,078,130 | $414.95 | | |
| CE | County Current Expense | 0.3674210519 | $1,078,130 | $1,078,130 | $396.13 | | |
| CR | County Roads | 0.4614296361 | $1,078,130 | $1,078,130 | $497.48 | | |
| ISLANDEMS | Hospital GEN (EMS) | 0.4952018576 | $1,078,130 | $1,078,130 | $533.89 | | |
| LIB | Library Sno-Isle GEN | 0.3039084203 | $1,078,130 | $1,078,130 | $327.65 | | |
| NWHIDPRMT | P & R N Whidbey GEN | 0.1990272349 | $1,078,130 | $1,078,130 | $214.58 | | |
| SCH201MO | School 201 Enrichment | 2.3851112745 | $1,078,130 | $1,078,130 | $2,571.46 | | |
| ST | State School | 1.4761226122 | $1,078,130 | $1,078,130 | $1,591.45 | | |
| ST2 | State School Part 2 | 0.7953803475 | $1,078,130 | $1,078,130 | $857.52 | | |
| | Total Tax Rate: | 7.6313709459 | | | | | |
| | | | | Taxes w/Current Exemptions: | $8,227.59 | | |
| | | | | Taxes w/o Exemptions: | $8,227.59 | | |
Improvement / Building
| Improvement #1: | RESIDENTIAL | State Code: | Y | 2726.0 sqft | Value: | $563,130 |
| Bathrooms: | 3 | Bedrooms: | 3 | | Ceiling: | DRYWALL PAINTED | Cooling: | HEAT PUMP/CONV/V | | Exterior Wall/Cover: | CEMENT FIBER | Floor Covering: | VINYL TILE | | Floor Structure: | WOOD W/SUBFLOOR | Foundation: | CONCRETE | | Interior Finish: | DRYWALL PAINT | Plumbing Fixture Cnt: | 13 | | Roof Slope: | 6" IN 12" | Roof Structure/Cover: | CJ ASPHALT |
|
| | Type | Description | Class CD | Sub Class CD | Year Built | Area |
| | BAS | BASE/MAIN FLOOR | 4 | 0 | 2021 | 1826.0 |
| | AGR | ATTACHED GARAGE | 4 | 0 | 2021 | 462.0 |
| | DWN | DOWNSTAIRS LIVING AREA | 4 | 0 | 2021 | 900.0 |
| | OWP | OPEN WOOD PORCH W/STEPS | 4 | 0 | 2021 | 312.0 |
| | OWP | OPEN WOOD PORCH W/STEPS | 4 | 0 | 2021 | 540.0 |
| | OP4 | OPEN PORCH W/CEILING-ROOF | 4 | 0 | 2021 | 80.0 |
| | OWC | OPEN WOOD PORCH W/STEPS/ROOF/C | 4 | 0 | 2021 | 288.0 |
Sketch
Property Image
Land
| 1 | HB | HIGH BLUFF | 0.8000 | 34848.00 | 95.00 | 0.00 | 1.00 | $515,000 | $0 |
Roll Value History
| 2026 | N/A | N/A | N/A | N/A | N/A |
| 2025 | $563,130 | $515,000 | $0 | $1,078,130 | $1,078,130 |
| 2024 | $567,599 | $475,000 | $0 | $1,042,599 | $1,042,599 |
| 2023 | $573,558 | $425,000 | $0 | $998,558 | $998,558 |
| 2022 | $521,003 | $280,000 | $0 | $801,003 | $801,003 |
| 2021 | $462,284 | $275,000 | $0 | $737,284 | $737,284 |
| 2020 | $0 | $175,000 | $0 | $175,000 | $175,000 |
| 2019 | $0 | $200,000 | $0 | $200,000 | $200,000 |
| 2018 | $0 | $200,000 | $0 | $200,000 | $200,000 |
| 2017 | $0 | $200,000 | $0 | $200,000 | $200,000 |
| 2016 | $0 | $150,000 | $0 | $150,000 | $150,000 |
| 2015 | $0 | $150,000 | $0 | $150,000 | $150,000 |
| 2014 | $0 | $150,000 | $0 | $150,000 | $150,000 |
| 2013 | $0 | $152,008 | $0 | $152,008 | $152,008 |
| 2012 | $0 | $152,008 | $0 | $152,008 | $152,008 |
| 2011 | $0 | $152,008 | $0 | $152,008 | $152,008 |
| 2010 | $0 | $152,008 | $0 | $152,008 | $152,008 |
| 2009 | $0 | $176,946 | $0 | $176,946 | $176,946 |
| 2008 | $0 | $176,946 | $0 | $176,946 | $176,946 |
| 2007 | $0 | $181,917 | $0 | $181,917 | $181,917 |
Deed and Sales History
| 1 | 12/06/2022 | WD | Warranty Deed | YANUBU, GARRICK F | LI, MARY | | | $1,050,000.00 | 55324 | 4554616 |
| 2 | 06/09/2021 | WD | Warranty Deed | SULLIVAN HOME BUILDERS, LLC | YANUBU, GARRICK F | | | $783,580.00 | 48594 | 4521360 |
| 3 | 11/20/2020 | WD | Warranty Deed | SARATOGA VIEWPOINTE, LLC | SULLIVAN HOME BUILDERS, LLC | | | $174,000.00 | 46112 | 4505112 |
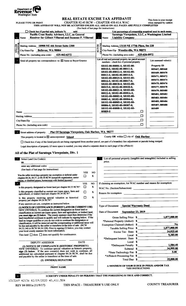
| 4 | 09/23/2019 | SPWARDEED | Special Warranty Deed | VILLARREAL, GILBERT | SARATOGA VIEWPOINTE, LLC | | | $0.00 | 40396 | 4471951 |
| 5 | 10/20/2003 | WD | Warranty Deed | MASSEY, W L | VILLARREAL, GILBERT | | | $122,990.00 | 34754 | 4079972 |
| 6 | 01/01/1900 | OTHER | Other - Misc. Documents | Unknown | MASSEY, W L | | | $0.00 | 0 | 0 |
Payout Agreement
| No payout information available.. |