Property
Account |
| Property ID: | 80548 | Abbreviated Legal Description: | 4 - IN SE NE: BG INTER ELN ROWE RD & SLN SE NE N327.66 S68*E192.50' S TP 230'E OF TPB W230' TPB (LOT A SP 77-88 AF#320926) |
| Geographic ID: | R23114-281-4410 | Agent Code: | |
| Type: | Real | | |
| Tax Area: | 512 - APPRAISER-Stan/Cam Schl Dist, improved, greater than 1 acre | Land Use Code | 11 |
| Open Space: | N | DFL | N |
| Historic Property: | N | Remodel Property: | N |
| Multi-Family Redevelopment: | N | | |
| Township: | 31 | Section: | 14 |
| Range: | R2 |
Location |
| Address: | 987 ROWE RD CAMANO ISLAND, WA 98282 | Mapsco: | |
| Neighborhood: | Cycle 5 | Map ID: | 484 |
| Neighborhood CD: | 5 |
Owner |
| Name: | NIELSEN, RALPH A / WENDY G | Owner ID: | 58145 |
| Mailing Address: | 987 ROWE RD CAMANO ISLAND, WA 98282-8408 | % Ownership: | 100.0000000000% |
| | | Exemptions: | |
Taxes and Assessment Details
Values
| (+) Improvement Homesite Value: | + | $0 | |
| (+) Improvement Non-Homesite Value: | + | $60,046 | |
| (+) Land Homesite Value: | + | $0 | |
| (+) Land Non-Homesite Value: | + | $260,000 | |
| (+) Curr Use (HS): | + | $0 | $0 |
| (+) Curr Use (NHS): | + | $0 | $0 |
| | | -------------------------- | |
| (=) Market Value: | = | $320,046 | |
| (–) Productivity Loss: | – | $0 | |
| | | -------------------------- | |
| (=) Subtotal: | = | $320,046 | |
| (+) Senior Appraised Value: | + | $0 | |
| (+) Non-Senior Appraised Value: | + | $320,046 | |
| | | -------------------------- | |
| (=) Total Appraised Value: | = | $320,046 | |
| (–) Senior Exemption Loss: | – | $0 | |
| (–) Exemption Loss: | – | $0 | |
| | | -------------------------- | |
| (=) Taxable Value: | = | $320,046 | |
Taxing Jurisdiction
| Owner: | NIELSEN, RALPH A / WENDY G | | |
| % Ownership: | 100.0000000000% | | |
| Total Value: | $320,046 | | |
| Tax Area: | 512 - APPRAISER-Stan/Cam Schl Dist, improved, greater than 1 acre |
| CF | Conservation Futures | 0.0313996660 | $320,046 | $320,046 | $10.05 | | |
| EMS1 | Fire & Rescue Dist #1 Camano GEN (EMS) | 0.4998471806 | $320,046 | $320,046 | $159.97 | | |
| FIRE1 | Fire & Rescue Dist #1 Camano GEN | 1.2496603404 | $320,046 | $320,046 | $399.95 | | |
| FIRE1BOND | Fire & Rescue Dist #1 Camano BOND | 0.1630371212 | $320,046 | $320,046 | $52.18 | | |
| CE | County Current Expense | 0.3674210519 | $320,046 | $320,046 | $117.59 | | |
| CR | County Roads | 0.4614296361 | $320,046 | $320,046 | $147.68 | | |
| LIB | Library Sno-Isle GEN | 0.3039084203 | $320,046 | $320,046 | $97.26 | | |
| SCH205_401 | School 205-401 Enrichment | 1.3697998934 | $320,046 | $320,046 | $438.40 | | |
| SCH205BOND | School 205-401 BOND | 0.9354199323 | $320,046 | $320,046 | $299.38 | | |
| ST | State School | 1.4761226122 | $320,046 | $320,046 | $472.43 | | |
| ST2 | State School Part 2 | 0.7953803475 | $320,046 | $320,046 | $254.56 | | |
| | Total Tax Rate: | 7.6534262019 | | | | | |
| | | | | Taxes w/Current Exemptions: | $2,449.45 | | |
| | | | | Taxes w/o Exemptions: | $2,449.45 | | |
Improvement / Building
| Improvement #1: | MANUFACTURED HOME | State Code: | Y | 1782.0 sqft | Value: | $60,046 |
| Bathrooms: | 0 | Bedrooms: | 0 | | Ceiling: | PLASTER PAINTED | Cooling: | EVAP NO DUCT | | Exterior Wall/Cover: | VINYL | Floor Covering: | CARPET 100% | | Floor Structure: | SLAB ON GRADE | Foundation: | SLAB | | Heating: | FHA ELECTRIC | Interior Finish: | PLASTER | | Plumbing Fixture Cnt: | 1 | Roof Slope: | FLAT | | Roof Structure/Cover: | CJ ALUMINIUM HEAVY |   |   |
|
| | Type | Description | Class CD | Sub Class CD | Year Built | Area |
| | BAS | BASE/MAIN FLOOR | 4 | 0 | 1977 | 1782.0 |
| | OWR | OPEN WOOD PORCH W/STEPS/ROOF | 4 | 0 | 1977 | 360.0 |
| | OWP | OPEN WOOD PORCH W/STEPS | 4 | 0 | 1977 | 78.0 |
| | DGR | DETACHED GARAGE | 4 | 0 | 1977 | 580.0 |
Sketch
Property Image
Land
| 1 | 17 | AC (01.01-02.00) | 1.0300 | 44866.80 | 0.00 | 0.00 | 1.00 | $260,000 | $0 |
Roll Value History
| 2026 | N/A | N/A | N/A | N/A | N/A |
| 2025 | $60,046 | $260,000 | $0 | $320,046 | $320,046 |
| 2024 | $63,764 | $240,000 | $0 | $303,764 | $303,764 |
| 2023 | $58,105 | $230,000 | $0 | $288,105 | $288,105 |
| 2022 | $56,296 | $240,000 | $0 | $296,296 | $296,296 |
| 2021 | $38,068 | $170,000 | $0 | $208,068 | $208,068 |
| 2020 | $38,269 | $150,000 | $0 | $188,269 | $188,269 |
| 2019 | $33,549 | $200,000 | $0 | $233,549 | $233,549 |
| 2018 | $34,400 | $180,000 | $0 | $214,400 | $214,400 |
| 2017 | $36,102 | $100,000 | $0 | $136,102 | $136,102 |
| 2016 | $37,807 | $100,000 | $0 | $137,807 | $137,807 |
| 2015 | $35,304 | $49,200 | $0 | $84,504 | $84,504 |
| 2014 | $36,730 | $49,200 | $0 | $85,930 | $85,930 |
| 2013 | $38,157 | $49,200 | $0 | $87,357 | $87,357 |
| 2012 | $40,296 | $49,200 | $0 | $89,496 | $89,496 |
| 2011 | $41,722 | $61,500 | $0 | $103,222 | $103,222 |
| 2010 | $38,884 | $61,500 | $0 | $100,384 | $100,384 |
| 2009 | $39,735 | $130,000 | $0 | $169,735 | $169,735 |
| 2008 | $40,560 | $144,300 | $0 | $184,860 | $184,860 |
| 2007 | $42,847 | $144,300 | $0 | $187,147 | $187,147 |
Deed and Sales History
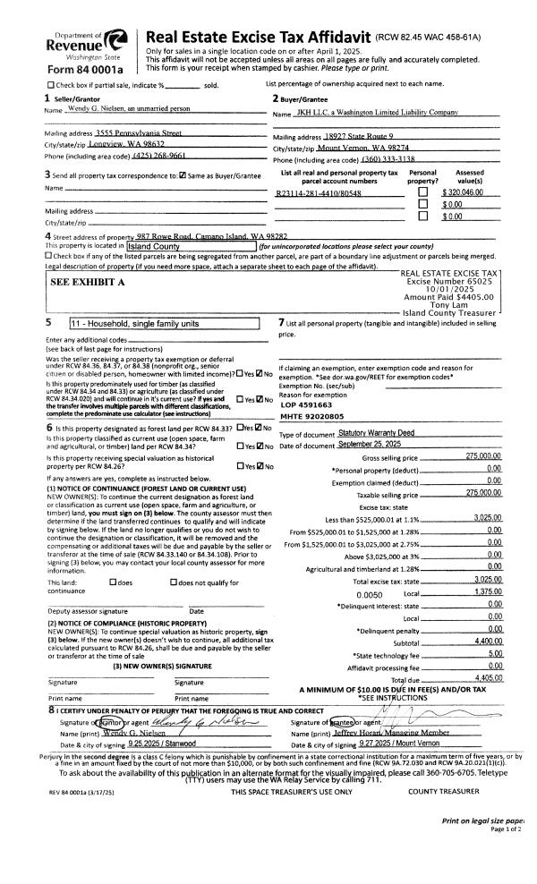
| 1 | 09/25/2025 | WD | Warranty Deed | NIELSEN, WENDY G | JKH LLC | | | $275,000.00 | 65025 | 4591712 |
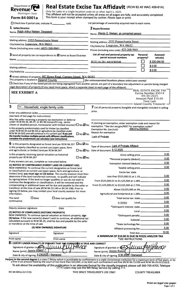
| 2 | 09/12/2025 | LACPROBATE | Lack of Probate | NIELSEN, RALPH A / WENDY G | NIELSEN, WENDY G | | | $0.00 | 65014 | 4591663 |
| 3 | 07/01/1994 | OTHER | Other - Misc. Documents | NIELSEN, RALPH A | NIELSEN, RALPH A | | | $26,436.00 | 43014 | 0 |
| 4 | 07/01/1994 | WD | Warranty Deed | JOHNSON, SIGURD D | NIELSEN, RALPH A | | | $72,064.00 | 43015 | 94016325 |
| 5 | 10/01/1992 | OTHER | Other - Misc. Documents | HADLEY, JEAN E | JOHNSON, SIGURD D | | | $0.00 | 24254 | 0 |
| 6 | 10/01/1992 | OTHER | Other - Misc. Documents | JOHNSON, SIGURD D | HADLEY, JEAN E | | | $0.00 | 24260 | 0 |
| 7 | 10/01/1992 | OTHER | Other - Misc. Documents | JOHNSON, D S | JOHNSON, SIGURD D | | | $0.00 | 24320 | 0 |
| 8 | 10/01/1992 | WD | Warranty Deed | HADLEY, JEAN G | JOHNSON, D S | | | $63,820.00 | 24255 | 92020812 |
| 9 | 06/01/1990 | QCD | Quit Claim Deed | KNIGHT, HAZEL P | HADLEY, JEAN G | | | $0.00 | 3571 | 90011553 |
| 10 | 01/01/1900 | OTHER | Other - Misc. Documents | Unknown | KNIGHT, HAZEL P | | | $0.00 | 0 | 0 |
Payout Agreement
| No payout information available.. |