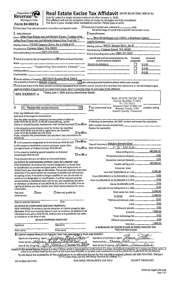
Property
Account |
| Property ID: | 805620 | Abbreviated Legal Description: | CAMANO COMMONS CONDO UNIT 6 1/8 INT |
| Geographic ID: | S6248-00-00006-0 | Agent Code: | |
| Type: | Real | | |
| Tax Area: | 590 - APPRAISER-Stan/Cam Schl Dist, Special Dist, improved & less than 1 acre | Land Use Code | 14 |
| Open Space: | N | DFL | N |
| Historic Property: | N | Remodel Property: | N |
| Multi-Family Redevelopment: | N | | |
| Township: | | Section: | |
| Range: | |
Location |
| Address: | 848 N SUNRISE BLVD UNIT H CAMANO ISLAND, WA 98282 | Mapsco: | |
| Neighborhood: | 51*RR-camano comm | Map ID: | 964 |
| Neighborhood CD: | 51*RRcamco |
Owner |
| Name: | BIRCH HILL NORTHWEST LLC | Owner ID: | 302604 |
| Mailing Address: | 848 SUNRISE BLVD B CAMANO ISLAND, WA 98282 | % Ownership: | 100.0000000000% |
| | | Exemptions: | |
Taxes and Assessment Details
Values
| (+) Improvement Homesite Value: | + | $0 | |
| (+) Improvement Non-Homesite Value: | + | $391,265 | |
| (+) Land Homesite Value: | + | $0 | |
| (+) Land Non-Homesite Value: | + | $77,000 | |
| (+) Curr Use (HS): | + | $0 | $0 |
| (+) Curr Use (NHS): | + | $0 | $0 |
| | | -------------------------- | |
| (=) Market Value: | = | $468,265 | |
| (–) Productivity Loss: | – | $0 | |
| | | -------------------------- | |
| (=) Subtotal: | = | $468,265 | |
| (+) Senior Appraised Value: | + | $0 | |
| (+) Non-Senior Appraised Value: | + | $468,265 | |
| | | -------------------------- | |
| (=) Total Appraised Value: | = | $468,265 | |
| (–) Senior Exemption Loss: | – | $0 | |
| (–) Exemption Loss: | – | $0 | |
| | | -------------------------- | |
| (=) Taxable Value: | = | $468,265 | |
Taxing Jurisdiction
| Owner: | BIRCH HILL NORTHWEST LLC | | |
| % Ownership: | 100.0000000000% | | |
| Total Value: | $468,265 | | |
| Tax Area: | 590 - APPRAISER-Stan/Cam Schl Dist, Special Dist, improved & less than 1 acre |
| CF | Conservation Futures | 0.0313996660 | $468,265 | $468,265 | $14.70 | | |
| EMS1 | Fire & Rescue Dist #1 Camano GEN (EMS) | 0.4998471806 | $468,265 | $468,265 | $234.06 | | |
| FIRE1 | Fire & Rescue Dist #1 Camano GEN | 1.2496603404 | $468,265 | $468,265 | $585.17 | | |
| FIRE1BOND | Fire & Rescue Dist #1 Camano BOND | 0.1630371212 | $468,265 | $468,265 | $76.34 | | |
| CE | County Current Expense | 0.3674210519 | $468,265 | $468,265 | $172.05 | | |
| CR | County Roads | 0.4614296361 | $468,265 | $468,265 | $216.07 | | |
| LIB | Library Sno-Isle GEN | 0.3039084203 | $468,265 | $468,265 | $142.31 | | |
| SCH205_401 | School 205-401 Enrichment | 1.3697998934 | $468,265 | $468,265 | $641.43 | | |
| SCH205BOND | School 205-401 BOND | 0.9354199323 | $468,265 | $468,265 | $438.02 | | |
| ST | State School | 1.4761226122 | $468,265 | $468,265 | $691.22 | | |
| ST2 | State School Part 2 | 0.7953803475 | $468,265 | $468,265 | $372.45 | | |
| | Total Tax Rate: | 7.6534262019 | | | | | |
| | | | | Taxes w/Current Exemptions: | $3,583.82 | | |
| | | | | Taxes w/o Exemptions: | $3,583.82 | | |
Improvement / Building
| Improvement #1: | RESIDENTIAL/COMMERCIAL | State Code: | Y | 1871.5 sqft | Value: | $391,265 |
| Bathrooms: | 2 | Bedrooms: | 4 | | Ceiling: | DRYWALL PAINTED | Exterior Wall/Cover: | PLY/HARDBOARD T-111 | | Floor Covering: | VINYL/HARDWOOD 20-80 | Floor Structure: | WOOD W/SUBFLOOR | | Foundation: | CONCRETE | Heating: | WALL HEAT ELECTRIC | | Interior Finish: | DRYWALL PAINT | Plumbing Fixture Cnt: | 12 | | Roof Slope: | 4" IN 12" | Roof Structure/Cover: | CJ ALUMINIUM HEAVY |
|
| | Type | Description | Class CD | Sub Class CD | Year Built | Area |
| | BAS | BASE/MAIN FLOOR | 4 | 0 | 2004 | 956.5 |
| | OP4 | OPEN PORCH W/CEILING-ROOF | 4 | 0 | 2004 | 64.0 |
| | BIG | BUILT IN GARAGE | 4 | 0 | 2004 | 629.0 |
| | OWC | OPEN WOOD PORCH W/STEPS/ROOF/C | 4 | 0 | 2004 | 72.0 |
| | UPS | UPPER STORY | 4 | 0 | 2004 | 915.0 |
Sketch
Property Image
Land
| 1 | 61 | MULTIPLE RESIDENCES | 0.0442 | 1925.00 | 0.00 | 0.00 | 1.00 | $77,000 | $0 |
Roll Value History
| 2026 | N/A | N/A | N/A | N/A | N/A |
| 2025 | $391,265 | $77,000 | $0 | $468,265 | $468,265 |
| 2024 | $395,748 | $77,000 | $0 | $472,748 | $472,748 |
| 2023 | $407,733 | $77,000 | $0 | $484,733 | $484,733 |
| 2022 | $372,975 | $77,000 | $0 | $449,975 | $449,975 |
| 2021 | $193,533 | $30,666 | $0 | $224,199 | $224,199 |
| 2020 | $192,772 | $30,666 | $0 | $223,438 | $223,438 |
| 2019 | $178,099 | $30,666 | $0 | $208,765 | $208,765 |
| 2018 | $178,164 | $30,666 | $0 | $208,830 | $208,830 |
| 2017 | $178,295 | $30,666 | $0 | $208,961 | $208,961 |
| 2016 | $178,557 | $30,666 | $0 | $209,223 | $209,223 |
| 2015 | $216,479 | $187,730 | $0 | $404,209 | $404,209 |
| 2014 | $216,479 | $187,730 | $0 | $404,209 | $404,209 |
| 2013 | $216,479 | $67,346 | $0 | $283,825 | $283,825 |
| 2012 | $216,479 | $67,346 | $0 | $283,825 | $283,825 |
| 2011 | $216,479 | $67,346 | $0 | $283,825 | $283,825 |
| 2010 | $222,743 | $67,346 | $0 | $290,089 | $290,089 |
| 2009 | $266,390 | $80,750 | $0 | $347,140 | $347,140 |
| 2008 | $269,333 | $85,000 | $0 | $354,333 | $354,333 |
| 2007 | $357,258 | $0 | $0 | $357,258 | $357,258 |
Deed and Sales History
| 1 | 01/05/2022 | WD | Warranty Deed | ERICSON TTEE, JEFF | BIRCH HILL NORTHWEST LLC | | | $480,000.00 | 51605 | 4537532 |
| 2 | 07/02/2020 | QCD | Quit Claim Deed | ERICSON, SHIRLEY | ERICSON TTEE, JEFF | | | $0.00 | 43671 | 4490640 |
| 3 | 01/24/2013 | QCD | Quit Claim Deed | ERICSON, DAN | ERICSON, SHIRLEY | | | $0.00 | 10258 | 4332397 |
| 4 | 09/19/2006 | WD | Warranty Deed | ERICSON, SHIRLEY ANN | ERICSON, DAN | | | $200,000.00 | 64716 | 4185949 |
| 5 | 07/18/2006 | ESTSEPPROP | Establish Separate Property | ERICSON, JEFFREY R | ERICSON, SHIRLEY ANN | | | $274,078.00 | 63210 | 4177153 |
| 6 | 07/18/2006 | ESTSEPPROP | Establish Separate Property | CAMANO COMMONS LLC, | ERICSON, JEFFREY R | | | $274,078.00 | 63209 | 4177152 |
| 7 | 01/01/1900 | OTHER | Other - Misc. Documents | Unknown | CAMANO COMMONS LLC, | | | $0.00 | 0 | 0 |
Payout Agreement
| No payout information available.. |