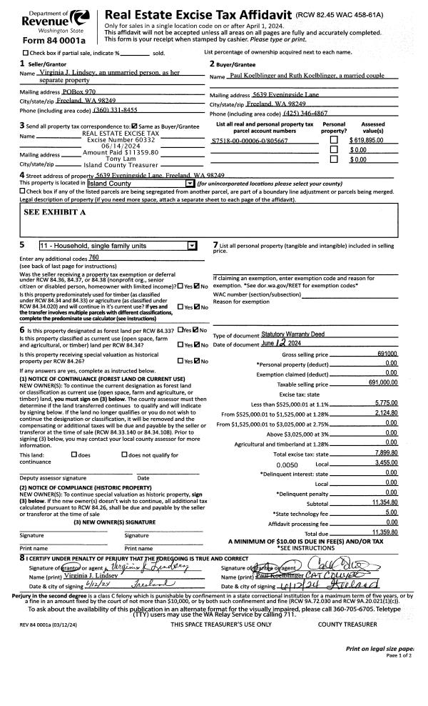
Property
Account |
| Property ID: | 805667 | Abbreviated Legal Description: | MORNINGSIDE HILL LOT 6 |
| Geographic ID: | S7518-00-00006-0 | Agent Code: | |
| Type: | Real | | |
| Tax Area: | 760 - APPRAISER-S Whid Schl Dist, Special District, improved & less than 1 acre | Land Use Code | 11 |
| Open Space: | N | DFL | N |
| Historic Property: | N | Remodel Property: | N |
| Multi-Family Redevelopment: | N | | |
| Township: | | Section: | |
| Range: | |
Location |
| Address: | 5639 EVENINGSIDE LN FREELAND, WA 98249 | Mapsco: | |
| Neighborhood: | Cycle 3 | Map ID: | 332 |
| Neighborhood CD: | 3 |
Owner |
| Name: | KOELBLINGER, PAUL | Owner ID: | 312784 |
| Mailing Address: | RUTH KOELBLINGER 5639 EVENINGSIDE LN FREELAND, WA 98249 | % Ownership: | 100.0000000000% |
| | | Exemptions: | |
Taxes and Assessment Details
Values
| (+) Improvement Homesite Value: | + | $0 | |
| (+) Improvement Non-Homesite Value: | + | $390,591 | |
| (+) Land Homesite Value: | + | $0 | |
| (+) Land Non-Homesite Value: | + | $250,000 | |
| (+) Curr Use (HS): | + | $0 | $0 |
| (+) Curr Use (NHS): | + | $0 | $0 |
| | | -------------------------- | |
| (=) Market Value: | = | $640,591 | |
| (–) Productivity Loss: | – | $0 | |
| | | -------------------------- | |
| (=) Subtotal: | = | $640,591 | |
| (+) Senior Appraised Value: | + | $0 | |
| (+) Non-Senior Appraised Value: | + | $640,591 | |
| | | -------------------------- | |
| (=) Total Appraised Value: | = | $640,591 | |
| (–) Senior Exemption Loss: | – | $0 | |
| (–) Exemption Loss: | – | $0 | |
| | | -------------------------- | |
| (=) Taxable Value: | = | $640,591 | |
Taxing Jurisdiction
| Owner: | KOELBLINGER, PAUL | | |
| % Ownership: | 100.0000000000% | | |
| Total Value: | $640,591 | | |
| Tax Area: | 760 - APPRAISER-S Whid Schl Dist, Special District, improved & less than 1 acre |
| CF | Conservation Futures | 0.0313996660 | $640,591 | $640,591 | $20.11 | | |
| FIRE3 | Fire & Rescue Dist #3 S Whidbey GEN | 1.2130821753 | $640,591 | $640,591 | $777.09 | | |
| HOBOND | Hospital BOND | 0.1893405597 | $640,591 | $640,591 | $121.29 | | |
| HOGEN | Hospital GEN | 0.3848777722 | $640,591 | $640,591 | $246.55 | | |
| CE | County Current Expense | 0.3674210519 | $640,591 | $640,591 | $235.37 | | |
| CR | County Roads | 0.4614296361 | $640,591 | $640,591 | $295.59 | | |
| ISLANDEMS | Hospital GEN (EMS) | 0.4952018576 | $640,591 | $640,591 | $317.22 | | |
| LIB | Library Sno-Isle GEN | 0.3039084203 | $640,591 | $640,591 | $194.68 | | |
| PORTWHID | Port of S Whidbey GEN | 0.1086004714 | $640,591 | $640,591 | $69.57 | | |
| SCH206BOND | School 206 BOND | 0.5960237832 | $640,591 | $640,591 | $381.81 | | |
| SCH206CAP | School 206 CP | 0.3066144020 | $640,591 | $640,591 | $196.41 | | |
| SCH206MO | School 206 Enrichment | 0.4808755445 | $640,591 | $640,591 | $308.04 | | |
| ST | State School | 1.4761226122 | $640,591 | $640,591 | $945.59 | | |
| ST2 | State School Part 2 | 0.7953803475 | $640,591 | $640,591 | $509.51 | | |
| SWHIDPRBD | P & R S Whidbey BOND | 0.0144185398 | $640,591 | $640,591 | $9.24 | | |
| SWHIDPRBD3 | P & R S Whidbey BOND3 | 0.1483535547 | $640,591 | $640,591 | $95.03 | | |
| SWHIDPRMT | P & R S Whidbey GEN | 0.4600000000 | $640,591 | $640,591 | $294.67 | | |
| | Total Tax Rate: | 7.8330503944 | | | | | |
| | | | | Taxes w/Current Exemptions: | $5,017.77 | | |
| | | | | Taxes w/o Exemptions: | $5,017.77 | | |
Improvement / Building
| Improvement #1: | RESIDENTIAL | State Code: | Y | 1803.5 sqft | Value: | $390,591 |
| Bathrooms: | 2.5 | Bedrooms: | 3 | | Ceiling: | DRYWALL PAINTED | Cooling: | HEAT PUMP/CONV/V | | Exterior Wall/Cover: | WOOD SIDING | Floor Covering: | CARPET/VINYL 20-80 | | Floor Structure: | WOOD W/SUBFLOOR | Foundation: | CONCRETE | | Interior Finish: | DRYWALL PAINT | Plumbing Fixture Cnt: | 14 | | Roof Slope: | 4" IN 12" | Roof Structure/Cover: | CJ ASPHALT |
|
| | Type | Description | Class CD | Sub Class CD | Year Built | Area |
| | BAS | BASE/MAIN FLOOR | 3 | 0 | 2006 | 1803.5 |
| | AGR | ATTACHED GARAGE | 3 | 0 | 2006 | 630.0 |
| | OWP | OPEN WOOD PORCH W/STEPS | 3 | 0 | 2006 | 386.0 |
Sketch
| No sketches available for this property. |
Property Image
Land
| 1 | 15 | SQ (12001-21780) | 0.0000 | 0.00 | 0.00 | 0.00 | 1.00 | $250,000 | $0 |
Roll Value History
| 2026 | N/A | N/A | N/A | N/A | N/A |
| 2025 | $390,591 | $250,000 | $0 | $640,591 | $640,591 |
| 2024 | $385,526 | $230,000 | $0 | $615,526 | $615,526 |
| 2023 | $389,895 | $230,000 | $0 | $619,895 | $619,895 |
| 2022 | $356,022 | $210,000 | $0 | $566,022 | $566,022 |
| 2021 | $308,675 | $140,000 | $0 | $448,675 | $448,675 |
| 2020 | $298,880 | $115,000 | $0 | $413,880 | $413,880 |
| 2019 | $208,924 | $180,000 | $0 | $388,924 | $388,924 |
| 2018 | $209,517 | $155,000 | $0 | $364,517 | $364,517 |
| 2017 | $210,699 | $120,000 | $0 | $330,699 | $330,699 |
| 2016 | $213,067 | $120,000 | $0 | $333,067 | $333,067 |
| 2015 | $215,434 | $80,000 | $0 | $295,434 | $295,434 |
| 2014 | $217,801 | $80,000 | $0 | $297,801 | $297,801 |
| 2013 | $262,756 | $80,000 | $0 | $342,756 | $342,756 |
| 2012 | $265,443 | $85,680 | $0 | $351,123 | $351,123 |
| 2011 | $268,132 | $100,800 | $0 | $368,932 | $368,932 |
| 2010 | $276,048 | $105,000 | $0 | $381,048 | $381,048 |
| 2009 | $287,576 | $130,000 | $0 | $417,576 | $417,576 |
| 2008 | $291,011 | $135,000 | $0 | $426,011 | $426,011 |
| 2007 | $278,937 | $158,400 | $0 | $437,337 | $437,337 |
Deed and Sales History
| 1 | 06/12/2024 | WD | Warranty Deed | LINDSEY, VIRGINIA J | KOELBLINGER, PAUL | | | $691,000.00 | 60332 | 4573464 |
| 2 | 08/05/2005 | WD | Warranty Deed | MORNINGSIDE HILL PARTNERSHIP, | LINDSEY, VIRGINIA J | | | $160,000.00 | 53904 | 4143719 |
| 3 | 01/01/1900 | OTHER | Other - Misc. Documents | Unknown | MORNINGSIDE HILL PARTNERSHIP, | | | $0.00 | 0 | 0 |
Payout Agreement
| No payout information available.. |