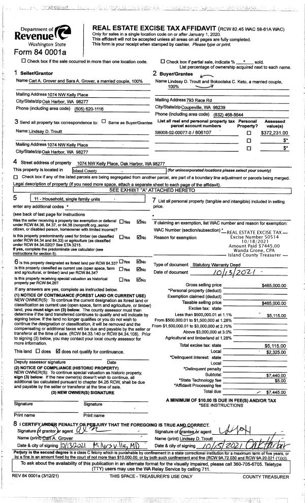
Property
Account |
| Property ID: | 806107 | Abbreviated Legal Description: | REDWING #2 LOT 77 |
| Geographic ID: | S8008-02-00077-0 | Agent Code: | |
| Type: | Real | | |
| Tax Area: | 100 - APPRAISER-OH Schl Dist, in OH | Land Use Code | 11 |
| Open Space: | N | DFL | N |
| Historic Property: | N | Remodel Property: | N |
| Multi-Family Redevelopment: | N | | |
| Township: | | Section: | |
| Range: | |
Location |
| Address: | 1074 NE KELLY PLACE OAK HARBOR, WA 98277 | Mapsco: | |
| Neighborhood: | Cycle 1 | Map ID: | 254 |
| Neighborhood CD: | 1 |
Owner |
| Name: | TROUTT, LINDSAY D | Owner ID: | 301619 |
| Mailing Address: | BOKOOLAKA C KETO PSC 474 BOX 9303 FPO, AP 96351-0094 | % Ownership: | 100.0000000000% |
| | | Exemptions: | |
Taxes and Assessment Details
Values
| (+) Improvement Homesite Value: | + | $0 | |
| (+) Improvement Non-Homesite Value: | + | $320,328 | |
| (+) Land Homesite Value: | + | $0 | |
| (+) Land Non-Homesite Value: | + | $200,000 | |
| (+) Curr Use (HS): | + | $0 | $0 |
| (+) Curr Use (NHS): | + | $0 | $0 |
| | | -------------------------- | |
| (=) Market Value: | = | $520,328 | |
| (–) Productivity Loss: | – | $0 | |
| | | -------------------------- | |
| (=) Subtotal: | = | $520,328 | |
| (+) Senior Appraised Value: | + | $0 | |
| (+) Non-Senior Appraised Value: | + | $520,328 | |
| | | -------------------------- | |
| (=) Total Appraised Value: | = | $520,328 | |
| (–) Senior Exemption Loss: | – | $0 | |
| (–) Exemption Loss: | – | $0 | |
| | | -------------------------- | |
| (=) Taxable Value: | = | $520,328 | |
Taxing Jurisdiction
| Owner: | TROUTT, LINDSAY D | | |
| % Ownership: | 100.0000000000% | | |
| Total Value: | $520,328 | | |
| Tax Area: | 100 - APPRAISER-OH Schl Dist, in OH |
| CF | Conservation Futures | 0.0313996660 | $520,328 | $520,328 | $16.34 | | |
| CEM1 | Cemetery #1 | 0.0040018856 | $520,328 | $520,328 | $2.08 | | |
| COH | City of Oak Harbor | 2.3090730572 | $520,328 | $520,328 | $1,201.48 | | |
| OAKBOND | City of Oak Harbor BOND | 0.1902260131 | $520,328 | $520,328 | $98.98 | | |
| HOBOND | Hospital BOND | 0.1893405597 | $520,328 | $520,328 | $98.52 | | |
| HOGEN | Hospital GEN | 0.3848777722 | $520,328 | $520,328 | $200.26 | | |
| CE | County Current Expense | 0.3674210519 | $520,328 | $520,328 | $191.18 | | |
| ISLANDEMS | Hospital GEN (EMS) | 0.4952018576 | $520,328 | $520,328 | $257.67 | | |
| LIB | Library Sno-Isle GEN | 0.3039084203 | $520,328 | $520,328 | $158.13 | | |
| NWHIDPRMT | P & R N Whidbey GEN | 0.1990272349 | $520,328 | $520,328 | $103.56 | | |
| SCH201MO | School 201 Enrichment | 2.3851112745 | $520,328 | $520,328 | $1,241.04 | | |
| ST | State School | 1.4761226122 | $520,328 | $520,328 | $768.07 | | |
| ST2 | State School Part 2 | 0.7953803475 | $520,328 | $520,328 | $413.86 | | |
| | Total Tax Rate: | 9.1310917527 | | | | | |
| | | | | Taxes w/Current Exemptions: | $4,751.17 | | |
| | | | | Taxes w/o Exemptions: | $4,751.17 | | |
Improvement / Building
| Improvement #1: | RESIDENTIAL | State Code: | Y | 1851.3 sqft | Value: | $320,328 |
| Bathrooms: | 2.5 | Bedrooms: | 3 | | Ceiling: | DRYWALL PAINTED | Exterior Wall/Cover: | VINYL | | Floor Covering: | CARPET/VINYL 80-20 | Floor Structure: | WOOD W/SUBFLOOR | | Foundation: | CONCRETE | Heating: | FHA GAS | | Interior Finish: | DRYWALL PAINT | Plumbing Fixture Cnt: | 12 | | Roof Slope: | 6" IN 12" | Roof Structure/Cover: | CJ ASPHALT |
|
| | Type | Description | Class CD | Sub Class CD | Year Built | Area |
| | BAS | BASE/MAIN FLOOR | 3 | 0 | 2005 | 888.0 |
| | BIG | BUILT IN GARAGE | 3 | 0 | 2005 | 513.6 |
| | UPS | UPPER STORY | 3 | 0 | 2005 | 963.3 |
| | OWP | OPEN WOOD PORCH W/STEPS | 3 | 0 | 2005 | 256.0 |
| | OWC | OPEN WOOD PORCH W/STEPS/ROOF/C | 3 | 0 | 2005 | 127.8 |
Sketch
Property Image
Land
| 1 | 13 | SQ (06001-08000) | 0.0000 | 0.00 | 0.00 | 0.00 | 1.00 | $200,000 | $0 |
Roll Value History
| 2026 | N/A | N/A | N/A | N/A | N/A |
| 2025 | $320,328 | $200,000 | $0 | $520,328 | $520,328 |
| 2024 | $323,999 | $175,000 | $0 | $498,999 | $498,999 |
| 2023 | $327,671 | $180,000 | $0 | $507,671 | $507,671 |
| 2022 | $299,197 | $180,000 | $0 | $479,197 | $479,197 |
| 2021 | $252,231 | $120,000 | $0 | $372,231 | $372,231 |
| 2020 | $245,508 | $100,000 | $0 | $345,508 | $345,508 |
| 2019 | $182,117 | $150,000 | $0 | $332,117 | $332,117 |
| 2018 | $182,627 | $130,000 | $0 | $312,627 | $312,627 |
| 2017 | $175,490 | $110,000 | $0 | $285,490 | $285,490 |
| 2016 | $177,509 | $90,000 | $0 | $267,509 | $267,509 |
| 2015 | $179,526 | $55,000 | $0 | $234,526 | $234,526 |
| 2014 | $181,544 | $55,000 | $0 | $236,544 | $236,544 |
| 2013 | $183,560 | $55,000 | $0 | $238,560 | $238,560 |
| 2012 | $185,577 | $60,000 | $0 | $245,577 | $245,577 |
| 2011 | $185,098 | $25,859 | $0 | $210,957 | $210,957 |
| 2010 | $195,069 | $25,859 | $0 | $220,928 | $220,928 |
| 2009 | $201,177 | $55,000 | $0 | $256,177 | $256,177 |
| 2008 | $203,401 | $79,500 | $0 | $282,901 | $282,901 |
| 2007 | $205,614 | $95,000 | $0 | $300,614 | $300,614 |
Deed and Sales History
| 1 | 10/13/2021 | WD | Warranty Deed | GROVER, CARL A | TROUTT, LINDSAY D | | | $465,000.00 | 50514 | 4531619 |
| 2 | 06/21/2019 | WD | Warranty Deed | ERBE, JACOB D | GROVER, CARL A | | | $340,000.00 | 39121 | 4466028 |
| 3 | 02/08/2016 | WD | Warranty Deed | MURPHY, STEPHEN A | ERBE, JACOB D | | | $289,000.00 | 23162 | 4394222 |
| 4 | 03/20/2008 | WD | Warranty Deed | DIAZ, JASON C | MURPHY, STEPHEN A | | | $274,500.00 | 80698 | 4224719 |
| 5 | 07/06/2005 | WD | Warranty Deed | ISLAND CONSTRUCTION INC, | DIAZ, JASON C | | | $227,900.00 | 53290 | 4140170 |
| 6 | 01/17/2005 | QCD | Quit Claim Deed | MASSEY, W L | ISLAND CONSTRUCTION INC, | | | $0.00 | 50221 | 4123580 |
| 7 | 01/01/1900 | OTHER | Other - Misc. Documents | Unknown | MASSEY, W L | | | $0.00 | 0 | 0 |
Payout Agreement
| No payout information available.. |