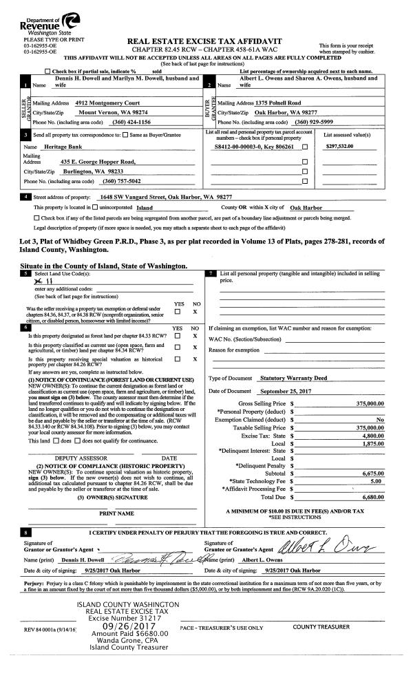
Property
Account |
| Property ID: | 806261 | Abbreviated Legal Description: | WHIDBEY GREEN PRD LOT 3 PHASE 3 |
| Geographic ID: | S8412-00-00003-0 | Agent Code: | |
| Type: | Real | | |
| Tax Area: | 100 - APPRAISER-OH Schl Dist, in OH | Land Use Code | 11 |
| Open Space: | N | DFL | N |
| Historic Property: | N | Remodel Property: | N |
| Multi-Family Redevelopment: | N | | |
| Township: | | Section: | |
| Range: | |
Location |
| Address: | 1648 SW VANGUARD ST OAK HARBOR, WA 98277 | Mapsco: | |
| Neighborhood: | Cycle 1 | Map ID: | 95 |
| Neighborhood CD: | 1 |
Owner |
| Name: | OWENS TTEE, SHARON A | Owner ID: | 289464 |
| Mailing Address: | DARRYL SHAWN OWENS, TTEE 1648 SW VANGUARD ST OAK HARBOR, WA 98277 | % Ownership: | 100.0000000000% |
| | | Exemptions: | |
Taxes and Assessment Details
Values
| (+) Improvement Homesite Value: | + | $0 | |
| (+) Improvement Non-Homesite Value: | + | $366,121 | |
| (+) Land Homesite Value: | + | $0 | |
| (+) Land Non-Homesite Value: | + | $170,000 | |
| (+) Curr Use (HS): | + | $0 | $0 |
| (+) Curr Use (NHS): | + | $0 | $0 |
| | | -------------------------- | |
| (=) Market Value: | = | $536,121 | |
| (–) Productivity Loss: | – | $0 | |
| | | -------------------------- | |
| (=) Subtotal: | = | $536,121 | |
| (+) Senior Appraised Value: | + | $0 | |
| (+) Non-Senior Appraised Value: | + | $536,121 | |
| | | -------------------------- | |
| (=) Total Appraised Value: | = | $536,121 | |
| (–) Senior Exemption Loss: | – | $0 | |
| (–) Exemption Loss: | – | $0 | |
| | | -------------------------- | |
| (=) Taxable Value: | = | $536,121 | |
Taxing Jurisdiction
| Owner: | OWENS TTEE, SHARON A | | |
| % Ownership: | 100.0000000000% | | |
| Total Value: | $536,121 | | |
| Tax Area: | 100 - APPRAISER-OH Schl Dist, in OH |
| CF | Conservation Futures | 0.0313996660 | $536,121 | $536,121 | $16.83 | | |
| CEM1 | Cemetery #1 | 0.0040018856 | $536,121 | $536,121 | $2.15 | | |
| COH | City of Oak Harbor | 2.3090730572 | $536,121 | $536,121 | $1,237.94 | | |
| OAKBOND | City of Oak Harbor BOND | 0.1902260131 | $536,121 | $536,121 | $101.98 | | |
| HOBOND | Hospital BOND | 0.1893405597 | $536,121 | $536,121 | $101.51 | | |
| HOGEN | Hospital GEN | 0.3848777722 | $536,121 | $536,121 | $206.34 | | |
| CE | County Current Expense | 0.3674210519 | $536,121 | $536,121 | $196.98 | | |
| ISLANDEMS | Hospital GEN (EMS) | 0.4952018576 | $536,121 | $536,121 | $265.49 | | |
| LIB | Library Sno-Isle GEN | 0.3039084203 | $536,121 | $536,121 | $162.93 | | |
| NWHIDPRMT | P & R N Whidbey GEN | 0.1990272349 | $536,121 | $536,121 | $106.70 | | |
| SCH201MO | School 201 Enrichment | 2.3851112745 | $536,121 | $536,121 | $1,278.71 | | |
| ST | State School | 1.4761226122 | $536,121 | $536,121 | $791.38 | | |
| ST2 | State School Part 2 | 0.7953803475 | $536,121 | $536,121 | $426.42 | | |
| | Total Tax Rate: | 9.1310917527 | | | | | |
| | | | | Taxes w/Current Exemptions: | $4,895.36 | | |
| | | | | Taxes w/o Exemptions: | $4,895.36 | | |
Improvement / Building
| Improvement #1: | RESIDENTIAL | State Code: | Y | 2045.5 sqft | Value: | $366,121 |
| Bathrooms: | 2 | Bedrooms: | 3 | | Ceiling: | DRYWALL PAINTED | Exterior Wall/Cover: | PLY/HARDBOARD T-111 | | Floor Covering: | CARPET/VINYL 80-20 | Floor Structure: | WOOD W/SUBFLOOR | | Foundation: | CONCRETE | Heating: | FHA GAS | | Interior Finish: | DRYWALL PAINT | Plumbing Fixture Cnt: | 12 | | Roof Slope: | 8" IN 12" | Roof Structure/Cover: | CJ ASPHALT |
|
| | Type | Description | Class CD | Sub Class CD | Year Built | Area |
| | BAS | BASE/MAIN FLOOR | 3 | 0 | 2005 | 2045.5 |
| | OP4 | OPEN PORCH W/CEILING-ROOF | 3 | 0 | 2005 | 35.0 |
| | OP4 | OPEN PORCH W/CEILING-ROOF | 3 | 0 | 2005 | 84.0 |
| | AGR | ATTACHED GARAGE | 3 | 0 | 2005 | 464.2 |
Sketch
Property Image
Land
| 1 | 12 | SQ (00000-06000) | 0.0000 | 0.00 | 0.00 | 0.00 | 1.00 | $170,000 | $0 |
Roll Value History
| 2026 | N/A | N/A | N/A | N/A | N/A |
| 2025 | $366,121 | $170,000 | $0 | $536,121 | $536,121 |
| 2024 | $370,270 | $140,000 | $0 | $510,270 | $510,270 |
| 2023 | $367,628 | $130,000 | $0 | $497,628 | $497,628 |
| 2022 | $336,708 | $120,000 | $0 | $456,708 | $456,708 |
| 2021 | $296,109 | $70,000 | $0 | $366,109 | $366,109 |
| 2020 | $287,579 | $60,000 | $0 | $347,579 | $347,579 |
| 2019 | $219,080 | $120,000 | $0 | $339,080 | $339,080 |
| 2018 | $219,680 | $100,000 | $0 | $319,680 | $319,680 |
| 2017 | $207,532 | $90,000 | $0 | $297,532 | $297,532 |
| 2016 | $209,915 | $35,000 | $0 | $244,915 | $244,915 |
| 2015 | $212,301 | $35,000 | $0 | $247,301 | $247,301 |
| 2014 | $214,688 | $35,000 | $0 | $249,688 | $249,688 |
| 2013 | $217,073 | $35,000 | $0 | $252,073 | $252,073 |
| 2012 | $219,458 | $47,000 | $0 | $266,458 | $266,458 |
| 2011 | $221,722 | $47,000 | $0 | $268,722 | $268,722 |
| 2010 | $235,716 | $50,000 | $0 | $285,716 | $285,716 |
| 2009 | $242,979 | $75,000 | $0 | $317,979 | $317,979 |
| 2008 | $245,703 | $75,000 | $0 | $320,703 | $320,703 |
| 2007 | $248,320 | $50,000 | $0 | $298,320 | $298,320 |
Deed and Sales History
| 1 | 04/24/2019 | QCD | Quit Claim Deed | OWENS, ALBERT L | OWENS TTEE, SHARON A | | | $0.00 | 38198 | 4461983 |
| 2 | 09/25/2017 | WD | Warranty Deed | DOWELL, DENNIS H | OWENS, ALBERT L | | | $375,000.00 | 31217 | 4430797 |
| 3 | 11/08/2005 | WD | Warranty Deed | WHIDBEY GREEN III LLC, | DOWELL, DENNIS H | | | $308,766.00 | 55825 | 4154597 |
| 4 | 01/01/1900 | OTHER | Other - Misc. Documents | Unknown | WHIDBEY GREEN III LLC, | | | $0.00 | 0 | 0 |
Payout Agreement
| No payout information available.. |