Property
Account |
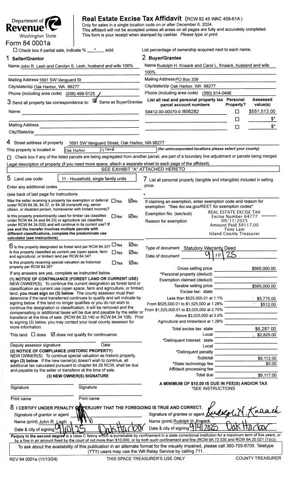
| Property ID: | 806282 | Abbreviated Legal Description: | WHIDBEY GREEN PRD LOT 70 PHASE 3 |
| Geographic ID: | S8412-00-00070-0 | Agent Code: | |
| Type: | Real | | |
| Tax Area: | 100 - APPRAISER-OH Schl Dist, in OH | Land Use Code | 11 |
| Open Space: | N | DFL | N |
| Historic Property: | N | Remodel Property: | N |
| Multi-Family Redevelopment: | N | | |
| Township: | | Section: | |
| Range: | |
Location |
| Address: | 1691 SW VANGUARD ST OAK HARBOR, WA 98277 | Mapsco: | |
| Neighborhood: | Cycle 1 | Map ID: | 95 |
| Neighborhood CD: | 1 |
Owner |
| Name: | LESH, JOHN R | Owner ID: | 197710 |
| Mailing Address: | CAROLYN S LESH 1691 SW VANGUARD ST OAK HARBOR, WA 98277-7135 | % Ownership: | 100.0000000000% |
| | | Exemptions: | |
Taxes and Assessment Details
Values
| (+) Improvement Homesite Value: | + | $0 | |
| (+) Improvement Non-Homesite Value: | + | $406,901 | |
| (+) Land Homesite Value: | + | $0 | |
| (+) Land Non-Homesite Value: | + | $170,000 | |
| (+) Curr Use (HS): | + | $0 | $0 |
| (+) Curr Use (NHS): | + | $0 | $0 |
| | | -------------------------- | |
| (=) Market Value: | = | $576,901 | |
| (–) Productivity Loss: | – | $0 | |
| | | -------------------------- | |
| (=) Subtotal: | = | $576,901 | |
| (+) Senior Appraised Value: | + | $0 | |
| (+) Non-Senior Appraised Value: | + | $576,901 | |
| | | -------------------------- | |
| (=) Total Appraised Value: | = | $576,901 | |
| (–) Senior Exemption Loss: | – | $0 | |
| (–) Exemption Loss: | – | $0 | |
| | | -------------------------- | |
| (=) Taxable Value: | = | $576,901 | |
Taxing Jurisdiction
| Owner: | LESH, JOHN R | | |
| % Ownership: | 100.0000000000% | | |
| Total Value: | $576,901 | | |
| Tax Area: | 100 - APPRAISER-OH Schl Dist, in OH |
| CF | Conservation Futures | 0.0313996660 | $576,901 | $576,901 | $18.11 | | |
| CEM1 | Cemetery #1 | 0.0040018856 | $576,901 | $576,901 | $2.31 | | |
| COH | City of Oak Harbor | 2.3090730572 | $576,901 | $576,901 | $1,332.11 | | |
| OAKBOND | City of Oak Harbor BOND | 0.1902260131 | $576,901 | $576,901 | $109.74 | | |
| HOBOND | Hospital BOND | 0.1893405597 | $576,901 | $576,901 | $109.23 | | |
| HOGEN | Hospital GEN | 0.3848777722 | $576,901 | $576,901 | $222.04 | | |
| CE | County Current Expense | 0.3674210519 | $576,901 | $576,901 | $211.97 | | |
| ISLANDEMS | Hospital GEN (EMS) | 0.4952018576 | $576,901 | $576,901 | $285.68 | | |
| LIB | Library Sno-Isle GEN | 0.3039084203 | $576,901 | $576,901 | $175.33 | | |
| NWHIDPRMT | P & R N Whidbey GEN | 0.1990272349 | $576,901 | $576,901 | $114.82 | | |
| SCH201MO | School 201 Enrichment | 2.3851112745 | $576,901 | $576,901 | $1,375.97 | | |
| ST | State School | 1.4761226122 | $576,901 | $576,901 | $851.58 | | |
| ST2 | State School Part 2 | 0.7953803475 | $576,901 | $576,901 | $458.86 | | |
| | Total Tax Rate: | 9.1310917527 | | | | | |
| | | | | Taxes w/Current Exemptions: | $5,267.75 | | |
| | | | | Taxes w/o Exemptions: | $5,267.75 | | |
Improvement / Building
| Improvement #1: | RESIDENTIAL | State Code: | Y | 1686.8 sqft | Value: | $406,901 |
| Bathrooms: | 2 | Bedrooms: | 2 | | Ceiling: | DRYWALL PAINTED | Cooling: | HEAT PUMP/CONV/V | | Exterior Wall/Cover: | PLY/HARDBOARD T-111 | Floor Covering: | HARDWOOD/CARP 20-80 | | Floor Structure: | WOOD W/SUBFLOOR | Foundation: | CONCRETE | | Interior Finish: | DRYWALL PAINT | Plumbing Fixture Cnt: | 12 | | Roof Slope: | 8" IN 12" | Roof Structure/Cover: | CJ ASPHALT |
|
| | Type | Description | Class CD | Sub Class CD | Year Built | Area |
| | BAS | BASE/MAIN FLOOR | 4 | 0 | 2006 | 1686.8 |
| | OP4 | OPEN PORCH W/CEILING-ROOF | 4 | 0 | 2006 | 59.4 |
| | OP4 | OPEN PORCH W/CEILING-ROOF | 4 | 0 | 2006 | 84.0 |
| | AGR | ATTACHED GARAGE | 4 | 0 | 2006 | 627.8 |
Sketch
Property Image
Land
| 1 | 12 | SQ (00000-06000) | 0.0000 | 0.00 | 0.00 | 0.00 | 1.00 | $170,000 | $0 |
Roll Value History
| 2026 | N/A | N/A | N/A | N/A | N/A |
| 2025 | $406,901 | $170,000 | $0 | $576,901 | $576,901 |
| 2024 | $411,513 | $140,000 | $0 | $551,513 | $551,513 |
| 2023 | $408,210 | $130,000 | $0 | $538,210 | $538,210 |
| 2022 | $373,873 | $120,000 | $0 | $493,873 | $493,873 |
| 2021 | $328,792 | $70,000 | $0 | $398,792 | $398,792 |
| 2020 | $318,717 | $60,000 | $0 | $378,717 | $378,717 |
| 2019 | $231,462 | $120,000 | $0 | $351,462 | $351,462 |
| 2018 | $232,096 | $100,000 | $0 | $332,096 | $332,096 |
| 2017 | $222,346 | $90,000 | $0 | $312,346 | $312,346 |
| 2016 | $224,871 | $35,000 | $0 | $259,871 | $259,871 |
| 2015 | $227,399 | $35,000 | $0 | $262,399 | $262,399 |
| 2014 | $229,925 | $35,000 | $0 | $264,925 | $264,925 |
| 2013 | $232,451 | $35,000 | $0 | $267,451 | $267,451 |
| 2012 | $234,979 | $47,000 | $0 | $281,979 | $281,979 |
| 2011 | $242,353 | $47,000 | $0 | $289,353 | $289,353 |
| 2010 | $251,976 | $50,000 | $0 | $301,976 | $301,976 |
| 2009 | $262,556 | $75,000 | $0 | $337,556 | $337,556 |
| 2008 | $265,638 | $75,000 | $0 | $340,638 | $340,638 |
| 2007 | $266,295 | $50,000 | $0 | $316,295 | $316,295 |
Deed and Sales History
| 1 | 09/10/2025 | WD | Warranty Deed | LESH, JOHN R | KNAACK, RUDOLPH H | | | $565,000.00 | 64777 | 4590793 |
| 2 | 10/17/2006 | WD | Warranty Deed | WHIDBEY GREEN III LLC, | LESH, JOHN R | | | $332,762.00 | 64618 | 4185482 |
| 3 | 01/01/1900 | OTHER | Other - Misc. Documents | Unknown | WHIDBEY GREEN III LLC, | | | $0.00 | 0 | 0 |
Payout Agreement
| No payout information available.. |