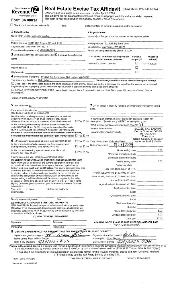
Property
Account |
| Property ID: | 806323 | Abbreviated Legal Description: | WOODBURY PARK PRD LOT 7 |
| Geographic ID: | S8468-00-00007-0 | Agent Code: | |
| Type: | Real | | |
| Tax Area: | 100 - APPRAISER-OH Schl Dist, in OH | Land Use Code | 11 |
| Open Space: | N | DFL | N |
| Historic Property: | N | Remodel Property: | N |
| Multi-Family Redevelopment: | N | | |
| Township: | | Section: | |
| Range: | |
Location |
| Address: | 1118 NE BIG BERRY LOOP OAK HARBOR, WA 98277 | Mapsco: | |
| Neighborhood: | Cycle 1 | Map ID: | 258 |
| Neighborhood CD: | 1 |
Owner |
| Name: | DEPPE, NIOMI | Owner ID: | 312521 |
| Mailing Address: | 1118 NE BIG BERRY LOOP OAK HARBOR, WA 98277 | % Ownership: | 100.0000000000% |
| | | Exemptions: | |
Taxes and Assessment Details
Values
| (+) Improvement Homesite Value: | + | $0 | |
| (+) Improvement Non-Homesite Value: | + | $321,531 | |
| (+) Land Homesite Value: | + | $0 | |
| (+) Land Non-Homesite Value: | + | $170,000 | |
| (+) Curr Use (HS): | + | $0 | $0 |
| (+) Curr Use (NHS): | + | $0 | $0 |
| | | -------------------------- | |
| (=) Market Value: | = | $491,531 | |
| (–) Productivity Loss: | – | $0 | |
| | | -------------------------- | |
| (=) Subtotal: | = | $491,531 | |
| (+) Senior Appraised Value: | + | $0 | |
| (+) Non-Senior Appraised Value: | + | $491,531 | |
| | | -------------------------- | |
| (=) Total Appraised Value: | = | $491,531 | |
| (–) Senior Exemption Loss: | – | $0 | |
| (–) Exemption Loss: | – | $0 | |
| | | -------------------------- | |
| (=) Taxable Value: | = | $491,531 | |
Taxing Jurisdiction
| Owner: | DEPPE, NIOMI | | |
| % Ownership: | 100.0000000000% | | |
| Total Value: | $491,531 | | |
| Tax Area: | 100 - APPRAISER-OH Schl Dist, in OH |
| CF | Conservation Futures | 0.0313996660 | $491,531 | $491,531 | $15.43 | | |
| CEM1 | Cemetery #1 | 0.0040018856 | $491,531 | $491,531 | $1.97 | | |
| COH | City of Oak Harbor | 2.3090730572 | $491,531 | $491,531 | $1,134.98 | | |
| OAKBOND | City of Oak Harbor BOND | 0.1902260131 | $491,531 | $491,531 | $93.50 | | |
| HOBOND | Hospital BOND | 0.1893405597 | $491,531 | $491,531 | $93.07 | | |
| HOGEN | Hospital GEN | 0.3848777722 | $491,531 | $491,531 | $189.18 | | |
| CE | County Current Expense | 0.3674210519 | $491,531 | $491,531 | $180.60 | | |
| ISLANDEMS | Hospital GEN (EMS) | 0.4952018576 | $491,531 | $491,531 | $243.41 | | |
| LIB | Library Sno-Isle GEN | 0.3039084203 | $491,531 | $491,531 | $149.38 | | |
| NWHIDPRMT | P & R N Whidbey GEN | 0.1990272349 | $491,531 | $491,531 | $97.83 | | |
| SCH201MO | School 201 Enrichment | 2.3851112745 | $491,531 | $491,531 | $1,172.36 | | |
| ST | State School | 1.4761226122 | $491,531 | $491,531 | $725.56 | | |
| ST2 | State School Part 2 | 0.7953803475 | $491,531 | $491,531 | $390.95 | | |
| | Total Tax Rate: | 9.1310917527 | | | | | |
| | | | | Taxes w/Current Exemptions: | $4,488.22 | | |
| | | | | Taxes w/o Exemptions: | $4,488.22 | | |
Improvement / Building
| Improvement #1: | RESIDENTIAL | State Code: | Y | 1910.3 sqft | Value: | $321,531 |
| Bathrooms: | 2.5 | Bedrooms: | 4 | | Ceiling: | DRYWALL PAINTED | Cooling: | HEAT PUMP/CONV/V | | Exterior Wall/Cover: | CEMENT FIBER | Floor Covering: | CARPET/VINYL 80-20 | | Floor Structure: | WOOD W/SUBFLOOR | Foundation: | CONCRETE | | Heating: | FHA GAS | Interior Finish: | DRYWALL PAINT | | Plumbing Fixture Cnt: | 11 | Roof Slope: | 6" IN 12" | | Roof Structure/Cover: | CJ ASPHALT |   |   |
|
| | Type | Description | Class CD | Sub Class CD | Year Built | Area |
| | BAS | BASE/MAIN FLOOR | 3 | 0 | 2006 | 931.0 |
| | OP3 | OPEN PORCH W/ROOF | 3 | 0 | 2006 | 106.3 |
| | OWC | OPEN WOOD PORCH W/STEPS/ROOF/C | 3 | 0 | 2006 | 12.0 |
| | UPS | UPPER STORY | 3 | 0 | 2006 | 979.3 |
| | BIG | BUILT IN GARAGE | 3 | 0 | 2006 | 571.3 |
Sketch
Property Image
Land
| 1 | 12 | SQ (00000-06000) | 0.0000 | 0.00 | 0.00 | 0.00 | 1.00 | $170,000 | $0 |
Roll Value History
| 2026 | N/A | N/A | N/A | N/A | N/A |
| 2025 | $321,531 | $170,000 | $0 | $491,531 | $491,531 |
| 2024 | $325,259 | $160,000 | $0 | $485,259 | $485,259 |
| 2023 | $311,305 | $160,000 | $0 | $471,305 | $471,305 |
| 2022 | $285,287 | $150,000 | $0 | $435,287 | $435,287 |
| 2021 | $251,018 | $115,000 | $0 | $366,018 | $366,018 |
| 2020 | $244,653 | $100,000 | $0 | $344,653 | $344,653 |
| 2019 | $174,637 | $150,000 | $0 | $324,637 | $324,637 |
| 2018 | $175,137 | $125,000 | $0 | $300,137 | $300,137 |
| 2017 | $168,735 | $110,000 | $0 | $278,735 | $278,735 |
| 2016 | $170,654 | $90,000 | $0 | $260,654 | $260,654 |
| 2015 | $172,571 | $70,000 | $0 | $242,571 | $242,571 |
| 2014 | $174,487 | $55,000 | $0 | $229,487 | $229,487 |
| 2013 | $176,407 | $55,000 | $0 | $231,407 | $231,407 |
| 2012 | $178,321 | $50,000 | $0 | $228,321 | $228,321 |
| 2011 | $175,201 | $35,000 | $0 | $210,201 | $210,201 |
| 2010 | $168,788 | $35,000 | $0 | $203,788 | $203,788 |
| 2009 | $175,817 | $90,000 | $0 | $265,817 | $265,817 |
| 2008 | $177,683 | $95,000 | $0 | $272,683 | $272,683 |
| 2007 | $177,801 | $80,000 | $0 | $257,801 | $257,801 |
Deed and Sales History
| 1 | 05/28/2024 | QCD | Quit Claim Deed | DEPPE, RYAN | DEPPE, NIOMI | | | $0.00 | 60099 | 4572781 |
| 2 | 05/28/2024 | WD | Warranty Deed | MEOLI, LUKE M | DEPPE, NIOMI | | | $510,000.00 | 60100 | 4572782 |
| 3 | 03/06/2020 | WD | Warranty Deed | GALLOWAY TRUSTEE, MICHAEL L | MEOLI, LUKE M | | | $359,000.00 | 42371 | 4482962 |
| 4 | 04/04/2017 | WD | Warranty Deed | PARISH, CHRISTIAN S | GALLOWAY TRUSTEE, MICHAEL L | | | $305,000.00 | 28746 | 4420224 |
| 5 | 06/22/2007 | ESTSEPPROP | Establish Separate Property | PARISH, CHRISTIAN S | PARISH, CHRISTIAN S | | | $0.00 | 72194 | 4205848 |
| 6 | 06/08/2006 | WD | Warranty Deed | NUTI, MATTHEW J | PARISH, CHRISTIAN S | | | $295,000.00 | 62619 | 4173352 |
| 7 | 02/27/2006 | WD | Warranty Deed | WALDRON CONSTRUCTION INC, | NUTI, MATTHEW J | | | $252,273.00 | 60933 | 4163849 |
| 8 | 03/18/2005 | WD | Warranty Deed | WOODBURY PARK LLC, | WALDRON CONSTRUCTION INC, | | | $51,000.00 | 51062 | 4128619 |
| 9 | 01/01/1900 | OTHER | Other - Misc. Documents | Unknown | WOODBURY PARK LLC, | | | $0.00 | 0 | 0 |
Payout Agreement
| No payout information available.. |