Property
Account |
| Property ID: | 806532 | Abbreviated Legal Description: | CAVALERO HILLS - 1 LOT 25 |
| Geographic ID: | S6348-00-00025-0 | Agent Code: | |
| Type: | Real | | |
| Tax Area: | 510 - APPRAISER-Stan/Cam Schl Dist, improved & 1 acre or less | Land Use Code | 11 |
| Open Space: | N | DFL | N |
| Historic Property: | N | Remodel Property: | N |
| Multi-Family Redevelopment: | N | | |
| Township: | | Section: | |
| Range: | |
Location |
| Address: | | Mapsco: | |
| Neighborhood: | Cycle 5 | Map ID: | 927 |
| Neighborhood CD: | 5 |
Owner |
| Name: | MACDOUGALL, JULIE | Owner ID: | 312757 |
| Mailing Address: | ROBERT MACDOUGALL 20 ZURICH COURT CAMANO ISLAND, WA 98282 | % Ownership: | 100.0000000000% |
| | | Exemptions: | |
Taxes and Assessment Details
Values
| (+) Improvement Homesite Value: | + | $0 | |
| (+) Improvement Non-Homesite Value: | + | $412,993 | |
| (+) Land Homesite Value: | + | $0 | |
| (+) Land Non-Homesite Value: | + | $230,000 | |
| (+) Curr Use (HS): | + | $0 | $0 |
| (+) Curr Use (NHS): | + | $0 | $0 |
| | | -------------------------- | |
| (=) Market Value: | = | $642,993 | |
| (–) Productivity Loss: | – | $0 | |
| | | -------------------------- | |
| (=) Subtotal: | = | $642,993 | |
| (+) Senior Appraised Value: | + | $0 | |
| (+) Non-Senior Appraised Value: | + | $642,993 | |
| | | -------------------------- | |
| (=) Total Appraised Value: | = | $642,993 | |
| (–) Senior Exemption Loss: | – | $0 | |
| (–) Exemption Loss: | – | $0 | |
| | | -------------------------- | |
| (=) Taxable Value: | = | $642,993 | |
Taxing Jurisdiction
| Owner: | MACDOUGALL, JULIE | | |
| % Ownership: | 100.0000000000% | | |
| Total Value: | $642,993 | | |
| Tax Area: | 510 - APPRAISER-Stan/Cam Schl Dist, improved & 1 acre or less |
| CF | Conservation Futures | 0.0313996660 | $642,993 | $642,993 | $20.19 | | |
| EMS1 | Fire & Rescue Dist #1 Camano GEN (EMS) | 0.4998471806 | $642,993 | $642,993 | $321.40 | | |
| FIRE1 | Fire & Rescue Dist #1 Camano GEN | 1.2496603404 | $642,993 | $642,993 | $803.52 | | |
| FIRE1BOND | Fire & Rescue Dist #1 Camano BOND | 0.1630371212 | $642,993 | $642,993 | $104.83 | | |
| CE | County Current Expense | 0.3674210519 | $642,993 | $642,993 | $236.25 | | |
| CR | County Roads | 0.4614296361 | $642,993 | $642,993 | $296.70 | | |
| LIB | Library Sno-Isle GEN | 0.3039084203 | $642,993 | $642,993 | $195.41 | | |
| SCH205_401 | School 205-401 Enrichment | 1.3697998934 | $642,993 | $642,993 | $880.77 | | |
| SCH205BOND | School 205-401 BOND | 0.9354199323 | $642,993 | $642,993 | $601.47 | | |
| ST | State School | 1.4761226122 | $642,993 | $642,993 | $949.14 | | |
| ST2 | State School Part 2 | 0.7953803475 | $642,993 | $642,993 | $511.42 | | |
| | Total Tax Rate: | 7.6534262019 | | | | | |
| | | | | Taxes w/Current Exemptions: | $4,921.10 | | |
| | | | | Taxes w/o Exemptions: | $4,921.10 | | |
Improvement / Building
| Improvement #1: | RESIDENTIAL | State Code: | Y | 2000.1 sqft | Value: | $412,993 |
| Bathrooms: | 2.5 | Bedrooms: | 3 | | Ceiling: | DRYWALL PAINTED | Exterior Wall/Cover: | CEMENT FIBER | | Floor Covering: | CARPET/VINYL 60-40 | Floor Structure: | WOOD W/SUBFLOOR | | Foundation: | CONCRETE | Heating: | FHA GAS | | Interior Finish: | DRYWALL PAINT | Plumbing Fixture Cnt: | 12 | | Roof Slope: | 6" IN 12" | Roof Structure/Cover: | CJ ASPHALT |
|
| | Type | Description | Class CD | Sub Class CD | Year Built | Area |
| | BAS | BASE/MAIN FLOOR | 3 | 0 | 2024 | 2000.1 |
| | AGR | ATTACHED GARAGE | 3 | 0 | 2024 | 660.0 |
| | OP4 | OPEN PORCH W/CEILING-ROOF | 3 | 0 | 2024 | 65.3 |
| | OWR | OPEN WOOD PORCH W/STEPS/ROOF | 3 | 0 | 2024 | 151.9 |
| | OWP | OPEN WOOD PORCH W/STEPS | 3 | 0 | 2024 | 362.8 |
Sketch
| No sketches available for this property. |
Property Image
Land
| 1 | 15 | SQ (12001-21780) | 0.0000 | 18295.20 | 0.00 | 0.00 | 1.00 | $230,000 | $0 |
Roll Value History
| 2026 | N/A | N/A | N/A | N/A | N/A |
| 2025 | $412,993 | $230,000 | $0 | $642,993 | $642,993 |
| 2024 | $413,346 | $210,000 | $0 | $623,346 | $623,346 |
| 2023 | $0 | $100,000 | $0 | $100,000 | $100,000 |
| 2022 | $0 | $100,000 | $0 | $100,000 | $100,000 |
| 2021 | $0 | $70,000 | $0 | $70,000 | $70,000 |
| 2020 | $0 | $70,000 | $0 | $70,000 | $70,000 |
| 2019 | $0 | $70,000 | $0 | $70,000 | $70,000 |
| 2018 | $0 | $70,000 | $0 | $70,000 | $70,000 |
| 2017 | $0 | $70,000 | $0 | $70,000 | $70,000 |
| 2016 | $0 | $45,000 | $0 | $45,000 | $45,000 |
| 2015 | $0 | $45,000 | $0 | $45,000 | $45,000 |
| 2014 | $0 | $45,000 | $0 | $45,000 | $45,000 |
| 2013 | $0 | $45,000 | $0 | $45,000 | $45,000 |
| 2012 | $0 | $50,000 | $0 | $50,000 | $50,000 |
| 2011 | $0 | $80,000 | $0 | $80,000 | $80,000 |
| 2010 | $0 | $80,000 | $0 | $80,000 | $80,000 |
| 2009 | $0 | $90,000 | $0 | $90,000 | $90,000 |
| 2008 | $0 | $120,000 | $0 | $120,000 | $120,000 |
| 2007 | $0 | $120,000 | $0 | $120,000 | $120,000 |
Deed and Sales History
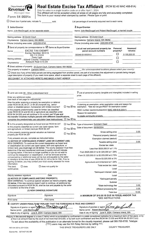
| 1 | 06/08/2024 | QCD | Quit Claim Deed | MACDOUGALL, JULIE | MACDOUGALL, JULIE | | | $0.00 | 60316 | 4573429 |
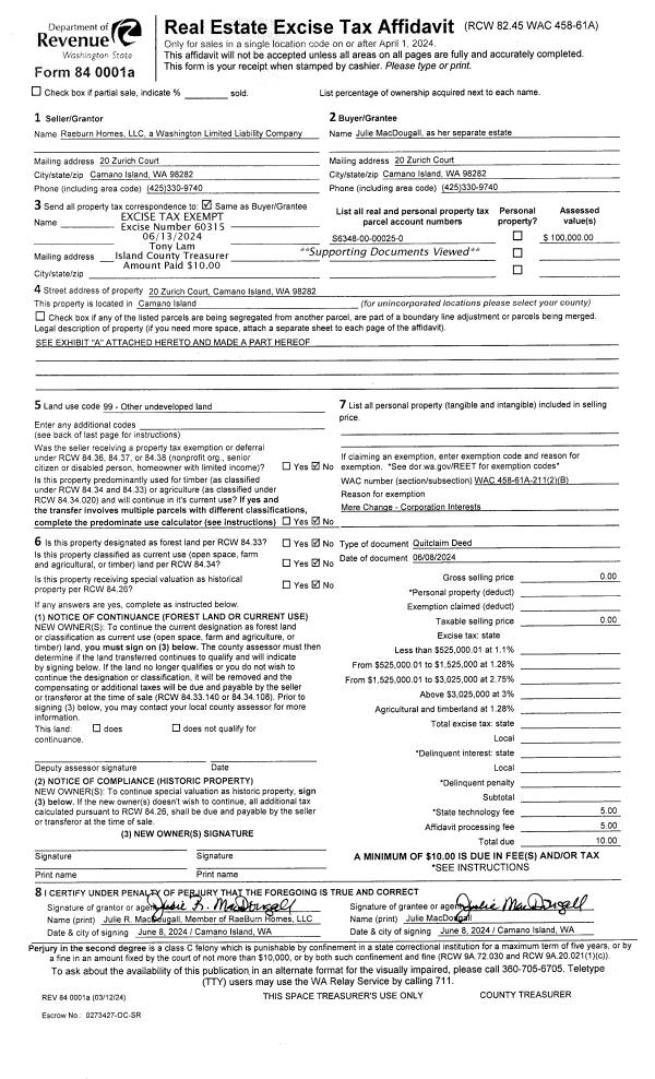
| 2 | 06/08/2024 | QCD | Quit Claim Deed | RAEBURN HOMES, LLC | MACDOUGALL, JULIE | | | $0.00 | 60315 | 4573428 |
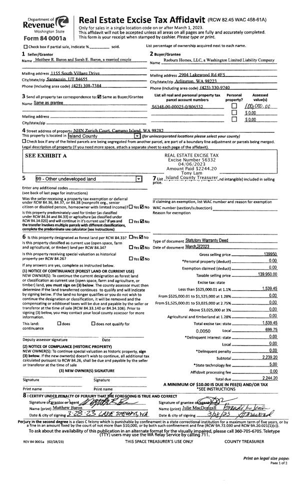
| 3 | 03/28/2023 | WD | Warranty Deed | BARON, MATTHEW R | RAEBURN HOMES, LLC | | | $139,950.00 | 56332 | 4558518 |
| 4 | 09/09/2016 | WD | Warranty Deed | WILLIAM G PLUMMER | BARON, MATTHEW R | | | $79,950.00 | 26125 | 4407314 |
| 5 | 09/27/2005 | WD | Warranty Deed | CROSSWIND LANDINGS INC, | PLUMMER, WILLIAM G | | | $112,520.00 | 54959 | 4149473 |
Payout Agreement
| No payout information available.. |