Property
Account |
| Property ID: | 8066 | Abbreviated Legal Description: | 3 - SE SW NE |
| Geographic ID: | R13111-298-3630 | Agent Code: | |
| Type: | Real | | |
| Tax Area: | 319 - APPRAISER-Cpvl Schl Dist, outside Cpvl, vacant & 50 acres or less | Land Use Code | 91 |
| Open Space: | N | DFL | N |
| Historic Property: | N | Remodel Property: | N |
| Multi-Family Redevelopment: | N | | |
| Township: | 31 | Section: | 11 |
| Range: | R1 |
Location |
| Address: | | Mapsco: | |
| Neighborhood: | Cycle 2 | Map ID: | 53 |
| Neighborhood CD: | 2 |
Owner |
| Name: | YOUDERIAN, KENNETH E | Owner ID: | 294944 |
| Mailing Address: | RONALD E YOUDERIAN PO BOX 917 COUPEVILLE, WA 98239 | % Ownership: | 100.0000000000% |
| | | Exemptions: | |
Taxes and Assessment Details
Values
| (+) Improvement Homesite Value: | + | $0 | |
| (+) Improvement Non-Homesite Value: | + | $0 | |
| (+) Land Homesite Value: | + | $0 | |
| (+) Land Non-Homesite Value: | + | $265,000 | |
| (+) Curr Use (HS): | + | $0 | $0 |
| (+) Curr Use (NHS): | + | $0 | $0 |
| | | -------------------------- | |
| (=) Market Value: | = | $265,000 | |
| (–) Productivity Loss: | – | $0 | |
| | | -------------------------- | |
| (=) Subtotal: | = | $265,000 | |
| (+) Senior Appraised Value: | + | $0 | |
| (+) Non-Senior Appraised Value: | + | $265,000 | |
| | | -------------------------- | |
| (=) Total Appraised Value: | = | $265,000 | |
| (–) Senior Exemption Loss: | – | $0 | |
| (–) Exemption Loss: | – | $0 | |
| | | -------------------------- | |
| (=) Taxable Value: | = | $265,000 | |
Taxing Jurisdiction
| Owner: | YOUDERIAN, KENNETH E | | |
| % Ownership: | 100.0000000000% | | |
| Total Value: | $265,000 | | |
| Tax Area: | 319 - APPRAISER-Cpvl Schl Dist, outside Cpvl, vacant & 50 acres or less |
| CF | Conservation Futures | 0.0313996660 | $265,000 | $265,000 | $8.32 | | |
| CEM2 | Cemetery #2 | 0.0092609791 | $265,000 | $265,000 | $2.45 | | |
| HOBOND | Hospital BOND | 0.1893405597 | $265,000 | $265,000 | $50.18 | | |
| HOGEN | Hospital GEN | 0.3848777722 | $265,000 | $265,000 | $101.99 | | |
| CE | County Current Expense | 0.3674210519 | $265,000 | $265,000 | $97.37 | | |
| CR | County Roads | 0.4614296361 | $265,000 | $265,000 | $122.28 | | |
| ISLANDEMS | Hospital GEN (EMS) | 0.4952018576 | $265,000 | $265,000 | $131.23 | | |
| LIB | Library Sno-Isle GEN | 0.3039084203 | $265,000 | $265,000 | $80.54 | | |
| LIBCAP | Library Sno-Isle BOND (Cap Fac Imp Area) | 0.0528562629 | $265,000 | $265,000 | $14.01 | | |
| POCOUP | Port of Coupeville GEN | 0.1065226063 | $265,000 | $265,000 | $28.23 | | |
| POCOUPIDD | Port of Coupeville IDD | 0.3353038577 | $265,000 | $265,000 | $88.86 | | |
| COUPSDTECH | School 204 CP (TECH) | 0.1215123397 | $265,000 | $265,000 | $32.20 | | |
| SCH204MO | School 204 Enrichment | 0.6416662518 | $265,000 | $265,000 | $170.04 | | |
| ST | State School | 1.4761226122 | $265,000 | $265,000 | $391.17 | | |
| ST2 | State School Part 2 | 0.7953803475 | $265,000 | $265,000 | $210.78 | | |
| | Total Tax Rate: | 5.7722042210 | | | | | |
| | | | | Taxes w/Current Exemptions: | $1,529.65 | | |
| | | | | Taxes w/o Exemptions: | $1,529.65 | | |
Improvement / Building
Sketch
| No sketches available for this property. |
Property Image
Land
| 1 | 35 | AC (10.00-30.99) | 10.0000 | 435600.00 | 0.00 | 0.00 | 1.00 | $265,000 | $0 |
Roll Value History
| 2026 | N/A | N/A | N/A | N/A | N/A |
| 2025 | $0 | $265,000 | $0 | $265,000 | $265,000 |
| 2024 | $0 | $250,000 | $0 | $250,000 | $250,000 |
| 2023 | $0 | $240,000 | $0 | $240,000 | $240,000 |
| 2022 | $0 | $200,000 | $0 | $200,000 | $200,000 |
| 2021 | $0 | $170,000 | $0 | $170,000 | $170,000 |
| 2020 | $0 | $150,000 | $0 | $150,000 | $150,000 |
| 2019 | $0 | $150,000 | $0 | $150,000 | $150,000 |
| 2018 | $0 | $150,000 | $0 | $150,000 | $150,000 |
| 2017 | $0 | $135,000 | $0 | $135,000 | $135,000 |
| 2016 | $0 | $135,000 | $0 | $135,000 | $135,000 |
| 2015 | $0 | $170,000 | $0 | $170,000 | $170,000 |
| 2014 | $0 | $170,000 | $1,010 | $1,010 | $1,010 |
| 2013 | $0 | $170,000 | $1,010 | $1,010 | $1,010 |
| 2012 | $0 | $170,000 | $1,010 | $1,010 | $1,010 |
| 2011 | $0 | $200,000 | $1,010 | $1,010 | $1,010 |
| 2010 | $0 | $200,000 | $1,010 | $1,010 | $1,010 |
| 2009 | $0 | $200,000 | $1,010 | $1,010 | $1,010 |
| 2008 | $0 | $170,000 | $1,010 | $1,010 | $1,010 |
| 2007 | $0 | $143,035 | $1,010 | $1,010 | $1,010 |
Deed and Sales History
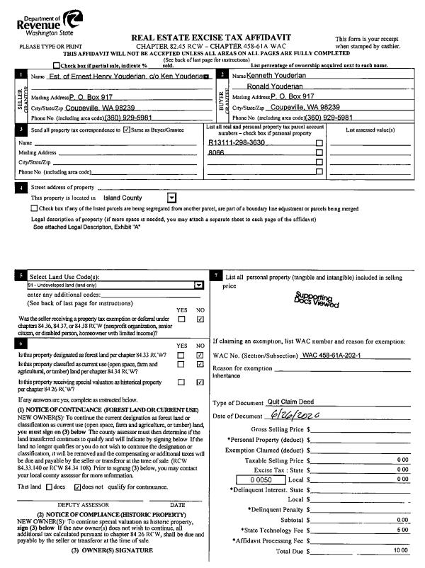
| 1 | 06/26/2020 | QCD | Quit Claim Deed | YOUDERIAN, ERNEST H | YOUDERIAN, KENNETH E | | | $0.00 | 44122 | 4493172 |
Payout Agreement
| No payout information available.. |