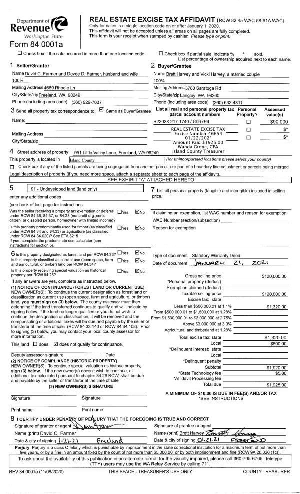
Property
Account |
| Property ID: | 806794 | Abbreviated Legal Description: | W/2 S/2 N/2 NE SW EX PT TO ST HWY AF#20008042 |
| Geographic ID: | R23028-217-1740 | Agent Code: | |
| Type: | Real | | |
| Tax Area: | 312 - APPRAISER-Cpvl Schl Dist, outside Cpvl, improved, greater than 1 acre | Land Use Code | 11 |
| Open Space: | N | DFL | N |
| Historic Property: | N | Remodel Property: | N |
| Multi-Family Redevelopment: | N | | |
| Township: | 30 | Section: | 28 |
| Range: | R2 |
Location |
| Address: | 963 LITTLE VALLEY LN FREELAND, WA 98249 | Mapsco: | |
| Neighborhood: | Cycle 3 | Map ID: | 421 |
| Neighborhood CD: | 3 |
Owner |
| Name: | HARVEY, BRETT | Owner ID: | 297820 |
| Mailing Address: | VICKI HARVEY 3780 SARATOGA RD LANGLEY, WA 98260 | % Ownership: | 100.0000000000% |
| | | Exemptions: | |
Taxes and Assessment Details
Values
| (+) Improvement Homesite Value: | + | $0 | |
| (+) Improvement Non-Homesite Value: | + | $23,400 | |
| (+) Land Homesite Value: | + | $0 | |
| (+) Land Non-Homesite Value: | + | $210,000 | |
| (+) Curr Use (HS): | + | $0 | $0 |
| (+) Curr Use (NHS): | + | $0 | $0 |
| | | -------------------------- | |
| (=) Market Value: | = | $233,400 | |
| (–) Productivity Loss: | – | $0 | |
| | | -------------------------- | |
| (=) Subtotal: | = | $233,400 | |
| (+) Senior Appraised Value: | + | $0 | |
| (+) Non-Senior Appraised Value: | + | $233,400 | |
| | | -------------------------- | |
| (=) Total Appraised Value: | = | $233,400 | |
| (–) Senior Exemption Loss: | – | $0 | |
| (–) Exemption Loss: | – | $0 | |
| | | -------------------------- | |
| (=) Taxable Value: | = | $233,400 | |
Taxing Jurisdiction
| Owner: | HARVEY, BRETT | | |
| % Ownership: | 100.0000000000% | | |
| Total Value: | $233,400 | | |
| Tax Area: | 312 - APPRAISER-Cpvl Schl Dist, outside Cpvl, improved, greater than 1 acre |
| CF | Conservation Futures | 0.0313996660 | $233,400 | $233,400 | $7.33 | | |
| CEM2 | Cemetery #2 | 0.0092609791 | $233,400 | $233,400 | $2.16 | | |
| FIRE5 | Fire & Rescue Dist #5 C Whidbey GEN | 1.1892169230 | $233,400 | $233,400 | $277.56 | | |
| FIRE5BOND | Fire & Rescue Dist #5 C Whidbey BOND | 0.1394359503 | $233,400 | $233,400 | $32.54 | | |
| HOBOND | Hospital BOND | 0.1893405597 | $233,400 | $233,400 | $44.19 | | |
| HOGEN | Hospital GEN | 0.3848777722 | $233,400 | $233,400 | $89.83 | | |
| CE | County Current Expense | 0.3674210519 | $233,400 | $233,400 | $85.76 | | |
| CR | County Roads | 0.4614296361 | $233,400 | $233,400 | $107.70 | | |
| ISLANDEMS | Hospital GEN (EMS) | 0.4952018576 | $233,400 | $233,400 | $115.58 | | |
| LIB | Library Sno-Isle GEN | 0.3039084203 | $233,400 | $233,400 | $70.93 | | |
| LIBCAP | Library Sno-Isle BOND (Cap Fac Imp Area) | 0.0528562629 | $233,400 | $233,400 | $12.34 | | |
| POCOUP | Port of Coupeville GEN | 0.1065226063 | $233,400 | $233,400 | $24.86 | | |
| POCOUPIDD | Port of Coupeville IDD | 0.3353038577 | $233,400 | $233,400 | $78.26 | | |
| COUPSDTECH | School 204 CP (TECH) | 0.1215123397 | $233,400 | $233,400 | $28.36 | | |
| SCH204MO | School 204 Enrichment | 0.6416662518 | $233,400 | $233,400 | $149.76 | | |
| ST | State School | 1.4761226122 | $233,400 | $233,400 | $344.53 | | |
| ST2 | State School Part 2 | 0.7953803475 | $233,400 | $233,400 | $185.64 | | |
| | Total Tax Rate: | 7.1008570943 | | | | | |
| | | | | Taxes w/Current Exemptions: | $1,657.33 | | |
| | | | | Taxes w/o Exemptions: | $1,657.33 | | |
Improvement / Building
| Improvement #1: | RESIDENTIAL | State Code: | Y | 0.0 sqft | Value: | $23,400 |
| | Type | Description | Class CD | Sub Class CD | Year Built | Area |
| | OCP | OPEN CARPORT | 3 | 0 | 2023 | 360.0 |
| | UTY | STORAGE/UTILITY | 3 | 0 | 2023 | 720.0 |
Sketch
Property Image
Land
| 1 | 32 | AC (03.01-09.99) | 4.8300 | 0.00 | 0.00 | 0.00 | 1.00 | $210,000 | $0 |
Roll Value History
| 2026 | N/A | N/A | N/A | N/A | N/A |
| 2025 | $23,400 | $210,000 | $0 | $233,400 | $233,400 |
| 2024 | $23,400 | $200,000 | $0 | $223,400 | $223,400 |
| 2023 | $23,400 | $180,000 | $0 | $203,400 | $203,400 |
| 2022 | $0 | $170,000 | $0 | $170,000 | $170,000 |
| 2021 | $0 | $115,000 | $0 | $115,000 | $115,000 |
| 2020 | $0 | $90,000 | $0 | $90,000 | $90,000 |
| 2019 | $0 | $120,000 | $0 | $120,000 | $120,000 |
| 2018 | $0 | $85,000 | $0 | $85,000 | $85,000 |
| 2017 | $0 | $75,000 | $0 | $75,000 | $75,000 |
| 2016 | $0 | $100,000 | $0 | $100,000 | $100,000 |
| 2015 | $0 | $100,000 | $0 | $100,000 | $100,000 |
| 2014 | $0 | $100,000 | $0 | $100,000 | $100,000 |
| 2013 | $0 | $96,600 | $0 | $96,600 | $96,600 |
| 2012 | $0 | $96,600 | $0 | $96,600 | $96,600 |
| 2011 | $0 | $96,600 | $0 | $96,600 | $96,600 |
| 2010 | $0 | $96,600 | $0 | $96,600 | $96,600 |
| 2009 | $0 | $149,370 | $0 | $149,370 | $149,370 |
| 2008 | $0 | $0 | $0 | $110,000 | $110,000 |
Deed and Sales History
| 1 | 01/21/2021 | WD | Warranty Deed | FARMER, DAVID C | HARVEY, BRETT | | | $120,000.00 | 46654 | 4508793 |
| 2 | 07/24/2008 | BLA | DNU - Boundary Line Adjustment | FARMER, DAVID C | FARMER, DAVID C | | | $0.00 | 80844 | 4145216 |
| 3 | 01/01/1900 | OTHER | Other - Misc. Documents | Unknown | FARMER, DAVID C | | | $0.00 | 0 | 0 |
Payout Agreement
| No payout information available.. |