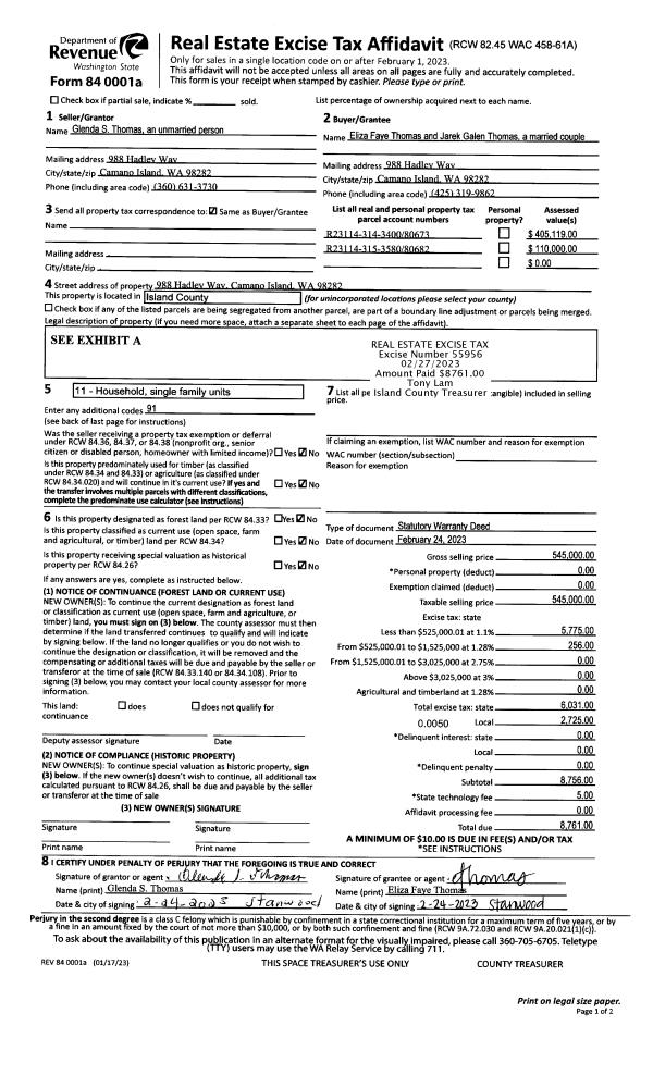
Property
Account |
| Property ID: | 80682 | Abbreviated Legal Description: | 192 - IN E/2 SW NE |
| Geographic ID: | R23114-315-3580 | Agent Code: | |
| Type: | Real | | |
| Tax Area: | 519 - APPRAISER-Stan/Cam Schl Dist, vacant & 50 acres or less | Land Use Code | 91 |
| Open Space: | N | DFL | N |
| Historic Property: | N | Remodel Property: | N |
| Multi-Family Redevelopment: | N | | |
| Township: | 31 | Section: | 14 |
| Range: | R2 |
Location |
| Address: | | Mapsco: | |
| Neighborhood: | Cycle 5 | Map ID: | 484 |
| Neighborhood CD: | 5 |
Owner |
| Name: | THOMAS, ELIZA FAYE | Owner ID: | 307770 |
| Mailing Address: | JAREK GALEN THOMAS 988 HADLEY WAY CAMANO ISLAND, WA 98282 | % Ownership: | 100.0000000000% |
| | | Exemptions: | |
Taxes and Assessment Details
Values
| (+) Improvement Homesite Value: | + | $0 | |
| (+) Improvement Non-Homesite Value: | + | $0 | |
| (+) Land Homesite Value: | + | $0 | |
| (+) Land Non-Homesite Value: | + | $120,000 | |
| (+) Curr Use (HS): | + | $0 | $0 |
| (+) Curr Use (NHS): | + | $0 | $0 |
| | | -------------------------- | |
| (=) Market Value: | = | $120,000 | |
| (–) Productivity Loss: | – | $0 | |
| | | -------------------------- | |
| (=) Subtotal: | = | $120,000 | |
| (+) Senior Appraised Value: | + | $0 | |
| (+) Non-Senior Appraised Value: | + | $120,000 | |
| | | -------------------------- | |
| (=) Total Appraised Value: | = | $120,000 | |
| (–) Senior Exemption Loss: | – | $0 | |
| (–) Exemption Loss: | – | $0 | |
| | | -------------------------- | |
| (=) Taxable Value: | = | $120,000 | |
Taxing Jurisdiction
| Owner: | THOMAS, ELIZA FAYE | | |
| % Ownership: | 100.0000000000% | | |
| Total Value: | $120,000 | | |
| Tax Area: | 519 - APPRAISER-Stan/Cam Schl Dist, vacant & 50 acres or less |
| CF | Conservation Futures | 0.0313996660 | $120,000 | $120,000 | $3.77 | | |
| EMS1 | Fire & Rescue Dist #1 Camano GEN (EMS) | 0.4998471806 | $120,000 | $120,000 | $59.98 | | |
| CE | County Current Expense | 0.3674210519 | $120,000 | $120,000 | $44.09 | | |
| CR | County Roads | 0.4614296361 | $120,000 | $120,000 | $55.37 | | |
| LIB | Library Sno-Isle GEN | 0.3039084203 | $120,000 | $120,000 | $36.47 | | |
| SCH205_401 | School 205-401 Enrichment | 1.3697998934 | $120,000 | $120,000 | $164.38 | | |
| SCH205BOND | School 205-401 BOND | 0.9354199323 | $120,000 | $120,000 | $112.25 | | |
| ST | State School | 1.4761226122 | $120,000 | $120,000 | $177.13 | | |
| ST2 | State School Part 2 | 0.7953803475 | $120,000 | $120,000 | $95.45 | | |
| | Total Tax Rate: | 6.2407287403 | | | | | |
| | | | | Taxes w/Current Exemptions: | $748.89 | | |
| | | | | Taxes w/o Exemptions: | $748.89 | | |
Improvement / Building
Sketch
| No sketches available for this property. |
Property Image
Land
| 1 | 16 | AC (00.51-01.00) | 0.8700 | 37897.20 | 0.00 | 0.00 | 1.00 | $120,000 | $0 |
Roll Value History
| 2026 | N/A | N/A | N/A | N/A | N/A |
| 2025 | $0 | $120,000 | $0 | $120,000 | $120,000 |
| 2024 | $0 | $130,000 | $0 | $130,000 | $130,000 |
| 2023 | $0 | $110,000 | $0 | $110,000 | $110,000 |
| 2022 | $0 | $110,000 | $0 | $110,000 | $110,000 |
| 2021 | $0 | $70,000 | $0 | $70,000 | $70,000 |
| 2020 | $0 | $70,000 | $0 | $70,000 | $70,000 |
| 2019 | $0 | $80,000 | $0 | $80,000 | $80,000 |
| 2018 | $0 | $70,000 | $0 | $70,000 | $70,000 |
| 2017 | $0 | $50,000 | $0 | $50,000 | $50,000 |
| 2016 | $0 | $75,000 | $0 | $75,000 | $75,000 |
| 2015 | $0 | $50,000 | $0 | $50,000 | $50,000 |
| 2014 | $0 | $50,000 | $0 | $50,000 | $50,000 |
| 2013 | $0 | $65,000 | $0 | $65,000 | $65,000 |
| 2012 | $0 | $65,000 | $0 | $65,000 | $65,000 |
| 2011 | $0 | $65,000 | $0 | $65,000 | $65,000 |
| 2010 | $0 | $65,000 | $0 | $65,000 | $65,000 |
| 2009 | $0 | $75,000 | $0 | $75,000 | $75,000 |
| 2008 | $0 | $83,250 | $0 | $83,250 | $83,250 |
| 2007 | $0 | $83,250 | $0 | $83,250 | $83,250 |
Deed and Sales History
| 1 | 12/01/2025 | WD | Warranty Deed | THOMAS, ELIZA FAYE | COREY, DAVID | | | $530,000.00 | 65599 | 4594103 |
|   | |
| 2 | 02/24/2023 | WD | Warranty Deed | THOMAS, GLENDA S | THOMAS, ELIZA FAYE | | | $545,000.00 | 55956 | 4557128 |
|   | |
| 3 | 11/16/2004 | WD | Warranty Deed | PLATTER, DAVIE | THOMAS, GLENDA S | | | $25,000.00 | 45471 | 4118655 |
| 4 | 03/25/2002 | QCD | Quit Claim Deed | PLATTER, DAVIE | PLATTER, DAVIE | | | $0.00 | 21173 | 4015531 |
| 5 | 03/25/2002 | WD | Warranty Deed | MAXEY, CRAIG M | PLATTER, DAVIE | | | $10,000.00 | 21172 | 4015530 |
| 6 | 01/01/1900 | OTHER | Other - Misc. Documents | Unknown | MAXEY, CRAIG M | | | $0.00 | 0 | 0 |
Payout Agreement
| No payout information available.. |