Property
Account |
| Property ID: | 806830 | Abbreviated Legal Description: | OAK TOWN COTTAGES CONDO BLDG D 16.667% |
| Geographic ID: | S7594-00-0000D-0 | Agent Code: | |
| Type: | Real | | |
| Tax Area: | 100 - APPRAISER-OH Schl Dist, in OH | Land Use Code | 14 |
| Open Space: | N | DFL | N |
| Historic Property: | N | Remodel Property: | N |
| Multi-Family Redevelopment: | N | | |
| Township: | | Section: | |
| Range: | |
Location |
| Address: | 475 SE BARRINGTON DR UNIT D OAK HARBOR, WA 98277 | Mapsco: | |
| Neighborhood: | 12*OH-oak town | Map ID: | 86 |
| Neighborhood CD: | 12*OHoktwn |
Owner |
| Name: | PAIZ, DANIEL | Owner ID: | 316688 |
| Mailing Address: | TARA PAIZ 475 SE BARRINGTON DR UNIT D OAK LHARBOR, WA 98277 | % Ownership: | 100.0000000000% |
| | | Exemptions: | |
Taxes and Assessment Details
Values
| (+) Improvement Homesite Value: | + | $0 | |
| (+) Improvement Non-Homesite Value: | + | $146,850 | |
| (+) Land Homesite Value: | + | $0 | |
| (+) Land Non-Homesite Value: | + | $70,000 | |
| (+) Curr Use (HS): | + | $0 | $0 |
| (+) Curr Use (NHS): | + | $0 | $0 |
| | | -------------------------- | |
| (=) Market Value: | = | $216,850 | |
| (–) Productivity Loss: | – | $0 | |
| | | -------------------------- | |
| (=) Subtotal: | = | $216,850 | |
| (+) Senior Appraised Value: | + | $0 | |
| (+) Non-Senior Appraised Value: | + | $216,850 | |
| | | -------------------------- | |
| (=) Total Appraised Value: | = | $216,850 | |
| (–) Senior Exemption Loss: | – | $0 | |
| (–) Exemption Loss: | – | $0 | |
| | | -------------------------- | |
| (=) Taxable Value: | = | $216,850 | |
Taxing Jurisdiction
| Owner: | PAIZ, DANIEL | | |
| % Ownership: | 100.0000000000% | | |
| Total Value: | $216,850 | | |
| Tax Area: | 100 - APPRAISER-OH Schl Dist, in OH |
| CF | Conservation Futures | 0.0313996660 | $216,850 | $216,850 | $6.81 | | |
| CEM1 | Cemetery #1 | 0.0040018856 | $216,850 | $216,850 | $0.87 | | |
| COH | City of Oak Harbor | 2.3090730572 | $216,850 | $216,850 | $500.72 | | |
| OAKBOND | City of Oak Harbor BOND | 0.1902260131 | $216,850 | $216,850 | $41.25 | | |
| HOBOND | Hospital BOND | 0.1893405597 | $216,850 | $216,850 | $41.06 | | |
| HOGEN | Hospital GEN | 0.3848777722 | $216,850 | $216,850 | $83.46 | | |
| CE | County Current Expense | 0.3674210519 | $216,850 | $216,850 | $79.68 | | |
| ISLANDEMS | Hospital GEN (EMS) | 0.4952018576 | $216,850 | $216,850 | $107.38 | | |
| LIB | Library Sno-Isle GEN | 0.3039084203 | $216,850 | $216,850 | $65.90 | | |
| NWHIDPRMT | P & R N Whidbey GEN | 0.1990272349 | $216,850 | $216,850 | $43.16 | | |
| SCH201MO | School 201 Enrichment | 2.3851112745 | $216,850 | $216,850 | $517.21 | | |
| ST | State School | 1.4761226122 | $216,850 | $216,850 | $320.10 | | |
| ST2 | State School Part 2 | 0.7953803475 | $216,850 | $216,850 | $172.48 | | |
| | Total Tax Rate: | 9.1310917527 | | | | | |
| | | | | Taxes w/Current Exemptions: | $1,980.08 | | |
| | | | | Taxes w/o Exemptions: | $1,980.08 | | |
Improvement / Building
| Improvement #1: | RESIDENTIAL | State Code: | A1 | 672.0 sqft | Value: | $146,850 |
| Bathrooms: | 1 | Bedrooms: | 1 | | Ceiling: | DRYWALL PAINTED | Exterior Wall/Cover: | WOOD SIDING | | Floor Covering: | CERAMIC TILE/CPT 40-60 | Floor Structure: | SLAB ON GRADE | | Foundation: | SLAB | Heating: | FHA GAS | | Interior Finish: | DRYWALL PAINT | Plumbing Fixture Cnt: | 6 | | Roof Slope: | 6" IN 12" | Roof Structure/Cover: | CJ ALUMINIUM HEAVY |
|
| | Type | Description | Class CD | Sub Class CD | Year Built | Area |
| | BAS | BASE/MAIN FLOOR | 3 | 0 | 2003 | 672.0 |
| | OP1 | OPEN PORCH SLAB | 3 | 0 | 2003 | 40.0 |
| | OP1 | OPEN PORCH SLAB | 3 | 0 | 2003 | 40.0 |
| | OP2 | OPEN PORCH W/STEPS | 3 | 0 | 2003 | 144.3 |
| | OP3 | OPEN PORCH W/ROOF | 3 | 0 | 2003 | 60.0 |
| | oPV1 | PV/ASPH 2" | 3 | 0 | 2003 | 726.0 |
Sketch
Property Image
Land
| 1 | 61 | MULTIPLE RESIDENCES | 0.0000 | 3625.33 | 0.00 | 0.00 | 1.00 | $70,000 | $0 |
Roll Value History
| 2026 | N/A | N/A | N/A | N/A | N/A |
| 2025 | $146,850 | $70,000 | $0 | $216,850 | $216,850 |
| 2024 | $148,563 | $50,000 | $0 | $198,563 | $198,563 |
| 2023 | $136,343 | $50,000 | $0 | $186,343 | $186,343 |
| 2022 | $124,980 | $50,000 | $0 | $174,980 | $174,980 |
| 2021 | $110,029 | $45,000 | $0 | $155,029 | $155,029 |
| 2020 | $106,844 | $45,000 | $0 | $151,844 | $151,844 |
| 2019 | $74,430 | $65,000 | $0 | $139,430 | $139,430 |
| 2018 | $74,642 | $65,000 | $0 | $139,642 | $139,642 |
| 2017 | $85,317 | $35,710 | $0 | $121,027 | $121,027 |
| 2016 | $85,317 | $35,710 | $0 | $121,027 | $121,027 |
| 2015 | $85,317 | $35,710 | $0 | $121,027 | $121,027 |
| 2014 | $85,317 | $35,710 | $0 | $121,027 | $121,027 |
| 2013 | $85,317 | $35,710 | $0 | $121,027 | $121,027 |
| 2012 | $85,317 | $35,710 | $0 | $121,027 | $121,027 |
| 2011 | $85,317 | $35,710 | $0 | $121,027 | $121,027 |
| 2010 | $84,177 | $35,710 | $0 | $119,887 | $119,887 |
| 2009 | $87,773 | $57,099 | $0 | $144,872 | $144,872 |
| 2008 | $89,697 | $57,099 | $0 | $146,796 | $146,796 |
| 2007 | $89,826 | $57,099 | $0 | $146,925 | $146,925 |
Deed and Sales History
| 1 | 05/26/2025 | WD | Warranty Deed | IRWIN, RACHEL L | PAIZ, DANIEL | | | $265,000.00 | 63606 | 4586383 |
| 2 | 08/05/2020 | WD | Warranty Deed | OAK TOWN COTTAGES, LLC | IRWIN, RACHEL L | | | $155,500.00 | 44195 | 4493618 |
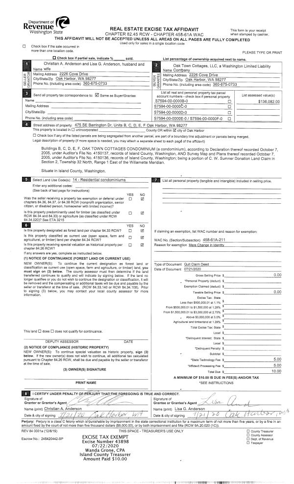
| 3 | 07/21/2020 | QCD | Quit Claim Deed | ANDERSON, CHRISTIAN A / LISA | OAK TOWN COTTAGES, LLC | | | $0.00 | 43898 | 4491853 |
| 4 | 01/01/1900 | OTHER | Other - Misc. Documents | Unknown | ANDERSON, CHRISTIAN A / LISA | | | $0.00 | 0 | 0 |
Payout Agreement
| No payout information available.. |