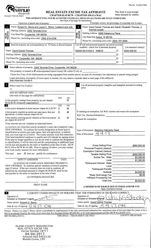
Property
Account |
| Property ID: | 807250 | Abbreviated Legal Description: | LOT 1 SP 347-02.23102.098-0700 V4 SP P91 & 92 AF# 4129748 |
| Geographic ID: | R23102-092-0380 | Agent Code: | |
| Type: | Real | | |
| Tax Area: | 512 - APPRAISER-Stan/Cam Schl Dist, improved, greater than 1 acre | Land Use Code | 11 |
| Open Space: | N | DFL | N |
| Historic Property: | N | Remodel Property: | N |
| Multi-Family Redevelopment: | N | | |
| Township: | 31 | Section: | 02 |
| Range: | R2 |
Location |
| Address: | 305 S WEST CAMANO DR CAMANO ISLAND, WA 98282 | Mapsco: | |
| Neighborhood: | Cycle 5 | Map ID: | 453 |
| Neighborhood CD: | 5 |
Owner |
| Name: | NASON JTWROS, NORMAN | Owner ID: | 280514 |
| Mailing Address: | LISA NASON JTWROS 305 SW CAMANO DR CAMANO ISLAND, WA 98282 | % Ownership: | 100.0000000000% |
| | | Exemptions: | |
Taxes and Assessment Details
Values
| (+) Improvement Homesite Value: | + | $0 | |
| (+) Improvement Non-Homesite Value: | + | $706,948 | |
| (+) Land Homesite Value: | + | $0 | |
| (+) Land Non-Homesite Value: | + | $330,000 | |
| (+) Curr Use (HS): | + | $0 | $0 |
| (+) Curr Use (NHS): | + | $0 | $0 |
| | | -------------------------- | |
| (=) Market Value: | = | $1,036,948 | |
| (–) Productivity Loss: | – | $0 | |
| | | -------------------------- | |
| (=) Subtotal: | = | $1,036,948 | |
| (+) Senior Appraised Value: | + | $0 | |
| (+) Non-Senior Appraised Value: | + | $1,036,948 | |
| | | -------------------------- | |
| (=) Total Appraised Value: | = | $1,036,948 | |
| (–) Senior Exemption Loss: | – | $0 | |
| (–) Exemption Loss: | – | $0 | |
| | | -------------------------- | |
| (=) Taxable Value: | = | $1,036,948 | |
Taxing Jurisdiction
| Owner: | NASON JTWROS, NORMAN | | |
| % Ownership: | 100.0000000000% | | |
| Total Value: | $1,036,948 | | |
| Tax Area: | 512 - APPRAISER-Stan/Cam Schl Dist, improved, greater than 1 acre |
| CF | Conservation Futures | 0.0313996660 | $1,036,948 | $1,036,948 | $32.56 | | |
| EMS1 | Fire & Rescue Dist #1 Camano GEN (EMS) | 0.4998471806 | $1,036,948 | $1,036,948 | $518.32 | | |
| FIRE1 | Fire & Rescue Dist #1 Camano GEN | 1.2496603404 | $1,036,948 | $1,036,948 | $1,295.83 | | |
| FIRE1BOND | Fire & Rescue Dist #1 Camano BOND | 0.1630371212 | $1,036,948 | $1,036,948 | $169.06 | | |
| CE | County Current Expense | 0.3674210519 | $1,036,948 | $1,036,948 | $381.00 | | |
| CR | County Roads | 0.4614296361 | $1,036,948 | $1,036,948 | $478.48 | | |
| LIB | Library Sno-Isle GEN | 0.3039084203 | $1,036,948 | $1,036,948 | $315.14 | | |
| SCH205_401 | School 205-401 Enrichment | 1.3697998934 | $1,036,948 | $1,036,948 | $1,420.41 | | |
| SCH205BOND | School 205-401 BOND | 0.9354199323 | $1,036,948 | $1,036,948 | $969.98 | | |
| ST | State School | 1.4761226122 | $1,036,948 | $1,036,948 | $1,530.66 | | |
| ST2 | State School Part 2 | 0.7953803475 | $1,036,948 | $1,036,948 | $824.77 | | |
| | Total Tax Rate: | 7.6534262019 | | | | | |
| | | | | Taxes w/Current Exemptions: | $7,936.21 | | |
| | | | | Taxes w/o Exemptions: | $7,936.21 | | |
Improvement / Building
| Improvement #1: | RESIDENTIAL | State Code: | Y | 2945.0 sqft | Value: | $706,948 |
| Bathrooms: | 2.5 | Bedrooms: | 3 | | Ceiling: | DRYWALL PAINTED | Cooling: | HEAT PUMP/CONV/V | | Exterior Wall/Cover: | CEMENT FIBER | Floor Covering: | HARDWOOD/CARP 60-40 | | Floor Structure: | WOOD W/SUBFLOOR | Foundation: | CONCRETE | | Interior Finish: | DRYWALL PAINT | Plumbing Fixture Cnt: | 16 | | Roof Slope: | 8" IN 12" | Roof Structure/Cover: | CJ ASPHALT |
|
| | Type | Description | Class CD | Sub Class CD | Year Built | Area |
| | BAS | BASE/MAIN FLOOR | 4 | 0 | 2007 | 1732.0 |
| | BIG | BUILT IN GARAGE | 4 | 0 | 2007 | 728.0 |
| | UPS | UPPER STORY | 4 | 0 | 2007 | 1213.0 |
| | OWC | OPEN WOOD PORCH W/STEPS/ROOF/C | 4 | 0 | 2007 | 576.0 |
| | OWC | OPEN WOOD PORCH W/STEPS/ROOF/C | 4 | 0 | 2007 | 283.0 |
| | UTY | STORAGE/UTILITY | 4 | 0 | 2007 | 120.0 |
| | OWP | OPEN WOOD PORCH W/STEPS | 4 | 0 | 2007 | 255.0 |
Sketch
Property Image
Land
| 1 | 32 | AC (03.01-09.99) | 5.3200 | 0.00 | 0.00 | 0.00 | 1.00 | $330,000 | $0 |
Roll Value History
| 2026 | N/A | N/A | N/A | N/A | N/A |
| 2025 | $706,948 | $330,000 | $0 | $1,036,948 | $1,036,948 |
| 2024 | $712,889 | $300,000 | $0 | $1,012,889 | $1,012,889 |
| 2023 | $719,227 | $290,000 | $0 | $1,009,227 | $1,009,227 |
| 2022 | $656,274 | $290,000 | $0 | $946,274 | $946,274 |
| 2021 | $561,317 | $190,000 | $0 | $751,317 | $751,317 |
| 2020 | $540,492 | $160,000 | $0 | $700,492 | $700,492 |
| 2019 | $422,804 | $230,000 | $0 | $652,804 | $652,804 |
| 2018 | $423,950 | $190,000 | $0 | $613,950 | $613,950 |
| 2017 | $394,985 | $150,000 | $0 | $544,985 | $544,985 |
| 2016 | $399,231 | $150,000 | $0 | $549,231 | $549,231 |
| 2015 | $387,666 | $119,168 | $0 | $506,834 | $506,834 |
| 2014 | $391,877 | $119,168 | $0 | $511,045 | $511,045 |
| 2013 | $396,087 | $119,168 | $0 | $515,255 | $515,255 |
| 2012 | $400,295 | $119,168 | $0 | $519,463 | $519,463 |
| 2011 | $404,507 | $148,960 | $0 | $553,467 | $553,467 |
| 2010 | $410,082 | $148,960 | $0 | $559,042 | $559,042 |
| 2009 | $0 | $144,600 | $0 | $144,600 | $144,600 |
| 2008 | $0 | $147,260 | $0 | $147,260 | $147,260 |
| 2007 | $0 | $103,138 | $0 | $103,138 | $103,138 |
Deed and Sales History
| 1 | 06/20/2017 | WD | Warranty Deed | LEWIS, TIMOTHY N | NASON JTWROS, NORMAN | | | $589,000.00 | 29859 | 4424775 |
| 2 | 09/30/2011 | BARGSLD | Bargain And Sale Deed | FEDERAL HOME LOAN MORTGAGE CORPORATION | LEWIS, TIMOTHY N | | | $299,900.00 | 5739 | 4302405 |
| 3 | 05/24/2011 | TRUSTEED | Trustee's Deed | SCHAFFER, CURTIS W | FEDERAL HOME LOAN MORTGAGE CORPORATION | | | $235,936.00 | 4529 | 4295809 |
| 4 | 09/28/2006 | WD | Warranty Deed | OPPEGAARD, ROBERT | SCHAFFER, CURTIS W | | | $170,000.00 | 64221 | 4183122 |
| 5 | 07/13/2005 | WD | Warranty Deed | EVERGREEN STATE TREE FARM, | OPPEGAARD, ROBERT | | | $122,500.00 | 53498 | 4141391 |
| 6 | 01/01/1900 | OTHER | Other - Misc. Documents | Unknown | EVERGREEN STATE TREE FARM, | | | $0.00 | 0 | 0 |
Payout Agreement
| No payout information available.. |