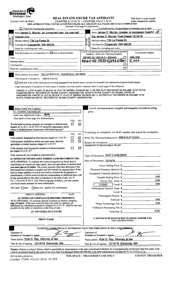
Property
Account |
| Property ID: | 807274 | Abbreviated Legal Description: | PT NE SW SEC 31 LY S SLN DURR RD & E ELN OF EVERGREEN PLAT & N150' DESC: PT SE SW SEC 31 LY NLY & ELY EVERGREEN PLAT |
| Geographic ID: | R33231-141-2530 | Agent Code: | |
| Type: | Real | | |
| Tax Area: | 592 - APPRAISER-Stan/Cam Schl Dist, Special Dist, improved, greater than 1 acre | Land Use Code | 11 |
| Open Space: | N | DFL | N |
| Historic Property: | N | Remodel Property: | N |
| Multi-Family Redevelopment: | N | | |
| Township: | 32 | Section: | 31 |
| Range: | R3 |
Location |
| Address: | 180 DURR RD CAMANO ISLAND, WA 98282 | Mapsco: | |
| Neighborhood: | Cycle 5 | Map ID: | 992 |
| Neighborhood CD: | 5 |
Owner |
| Name: | LAJUDICE, MICHELLE L | Owner ID: | 287816 |
| Mailing Address: | PO BOX 642 STANWOOD, WA 98292 | % Ownership: | 100.0000000000% |
| | | Exemptions: | |
Taxes and Assessment Details
Values
| (+) Improvement Homesite Value: | + | $0 | |
| (+) Improvement Non-Homesite Value: | + | $300,326 | |
| (+) Land Homesite Value: | + | $0 | |
| (+) Land Non-Homesite Value: | + | $360,000 | |
| (+) Curr Use (HS): | + | $0 | $0 |
| (+) Curr Use (NHS): | + | $0 | $0 |
| | | -------------------------- | |
| (=) Market Value: | = | $660,326 | |
| (–) Productivity Loss: | – | $0 | |
| | | -------------------------- | |
| (=) Subtotal: | = | $660,326 | |
| (+) Senior Appraised Value: | + | $0 | |
| (+) Non-Senior Appraised Value: | + | $660,326 | |
| | | -------------------------- | |
| (=) Total Appraised Value: | = | $660,326 | |
| (–) Senior Exemption Loss: | – | $0 | |
| (–) Exemption Loss: | – | $0 | |
| | | -------------------------- | |
| (=) Taxable Value: | = | $660,326 | |
Taxing Jurisdiction
| Owner: | LAJUDICE, MICHELLE L | | |
| % Ownership: | 100.0000000000% | | |
| Total Value: | $660,326 | | |
| Tax Area: | 592 - APPRAISER-Stan/Cam Schl Dist, Special Dist, improved, greater than 1 acre |
| CF | Conservation Futures | 0.0313996660 | $660,326 | $660,326 | $20.73 | | |
| EMS1 | Fire & Rescue Dist #1 Camano GEN (EMS) | 0.4998471806 | $660,326 | $660,326 | $330.06 | | |
| FIRE1 | Fire & Rescue Dist #1 Camano GEN | 1.2496603404 | $660,326 | $660,326 | $825.18 | | |
| FIRE1BOND | Fire & Rescue Dist #1 Camano BOND | 0.1630371212 | $660,326 | $660,326 | $107.66 | | |
| CE | County Current Expense | 0.3674210519 | $660,326 | $660,326 | $242.62 | | |
| CR | County Roads | 0.4614296361 | $660,326 | $660,326 | $304.69 | | |
| LIB | Library Sno-Isle GEN | 0.3039084203 | $660,326 | $660,326 | $200.68 | | |
| SCH205_401 | School 205-401 Enrichment | 1.3697998934 | $660,326 | $660,326 | $904.51 | | |
| SCH205BOND | School 205-401 BOND | 0.9354199323 | $660,326 | $660,326 | $617.68 | | |
| ST | State School | 1.4761226122 | $660,326 | $660,326 | $974.72 | | |
| ST2 | State School Part 2 | 0.7953803475 | $660,326 | $660,326 | $525.21 | | |
| | Total Tax Rate: | 7.6534262019 | | | | | |
| | | | | Taxes w/Current Exemptions: | $5,053.74 | | |
| | | | | Taxes w/o Exemptions: | $5,053.74 | | |
Improvement / Building
| Improvement #1: | RESIDENTIAL | State Code: | Y | 1512.0 sqft | Value: | $300,326 |
| Bathrooms: | 1.75 | Bedrooms: | 2 | | Ceiling: | DRYWALL PAINTED | Exterior Wall/Cover: | SHINGLE | | Floor Covering: | CERAMIC TILE/CPT 40-60 | Floor Structure: | WOOD W/SUBFLOOR | | Foundation: | CONCRETE | Heating: | WALL HEAT ELECTRIC | | Interior Finish: | DRYWALL PAINT | Plumbing Fixture Cnt: | 9 | | Roof Slope: | 6" IN 12" | Roof Structure/Cover: | CJ ASPHALT |
|
| | Type | Description | Class CD | Sub Class CD | Year Built | Area |
| | BAS | BASE/MAIN FLOOR | 3 | 0 | 2017 | 1008.0 |
| | UPH | HALF STORY | 3 | 0 | 2017 | 504.0 |
| | OWR | OPEN WOOD PORCH W/STEPS/ROOF | 3 | 0 | 2017 | 216.0 |
| | OWR | OPEN WOOD PORCH W/STEPS/ROOF | 3 | 0 | 2017 | 216.0 |
| | UTY | STORAGE/UTILITY | 3 | 0 | 2017 | 120.0 |
Sketch
Property Image
Land
| 1 | 32 | AC (03.01-09.99) | 0.0000 | 0.00 | 0.00 | 0.00 | 1.00 | $360,000 | $0 |
Roll Value History
| 2026 | N/A | N/A | N/A | N/A | N/A |
| 2025 | $300,326 | $360,000 | $0 | $660,326 | $660,326 |
| 2024 | $302,786 | $340,000 | $0 | $642,786 | $642,786 |
| 2023 | $305,248 | $320,000 | $0 | $625,248 | $625,248 |
| 2022 | $278,624 | $300,000 | $0 | $578,624 | $578,624 |
| 2021 | $240,870 | $230,000 | $0 | $470,870 | $470,870 |
| 2020 | $233,813 | $190,000 | $0 | $423,813 | $423,813 |
| 2019 | $173,795 | $220,000 | $0 | $393,795 | $393,795 |
| 2018 | $186,655 | $190,000 | $0 | $376,655 | $376,655 |
| 2017 | $78,673 | $85,000 | $0 | $163,673 | $163,673 |
| 2016 | $0 | $85,000 | $0 | $85,000 | $85,000 |
| 2015 | $0 | $85,000 | $0 | $85,000 | $85,000 |
| 2014 | $0 | $85,000 | $0 | $85,000 | $85,000 |
| 2013 | $0 | $85,000 | $0 | $85,000 | $85,000 |
| 2012 | $0 | $83,750 | $0 | $83,750 | $83,750 |
| 2011 | $0 | $83,750 | $0 | $83,750 | $83,750 |
| 2010 | $0 | $83,750 | $0 | $83,750 | $83,750 |
| 2009 | $0 | $100,500 | $0 | $100,500 | $100,500 |
| 2008 | $0 | $0 | $0 | $65,906 | $65,906 |
Deed and Sales History
| 1 | 10/08/2018 | QCD | Quit Claim Deed | LAJUDICE, MICHAEL FREDERICK | LAJUDICE, MICHELLE L | | | $0.00 | 36580 | 4454695 |
| 2 | 11/05/2018 | WD | Warranty Deed | PALMER, MARK | LAJUDICE, MICHELLE L | | | $360,000.00 | 36581 | 4454696 |
| 3 | 05/31/2011 | QCD | Quit Claim Deed | BARTLETT, RUSSELL | PALMER, MARK | | | $65,800.00 | 4588 | 4296575 |
| 4 | 09/15/2008 | BLA | DNU - Boundary Line Adjustment | Unknown | BARTLETT, MORGAN L | | | $0.00 | 80924 | 4148834 |
| 5 | 11/30/2007 | WD | Warranty Deed | BARTLETT, MORGAN L | BARTLETT, RUSSELL | | | $73,945.00 | 73945 | 4217496 |
| 6 | 08/30/2005 | ESTSEPPROP | Establish Separate Property | BARTLETT, MORGAN L | BARTLETT, MORGAN L | | | $0.00 | 54816 | 4148833 |
Payout Agreement
| No payout information available.. |