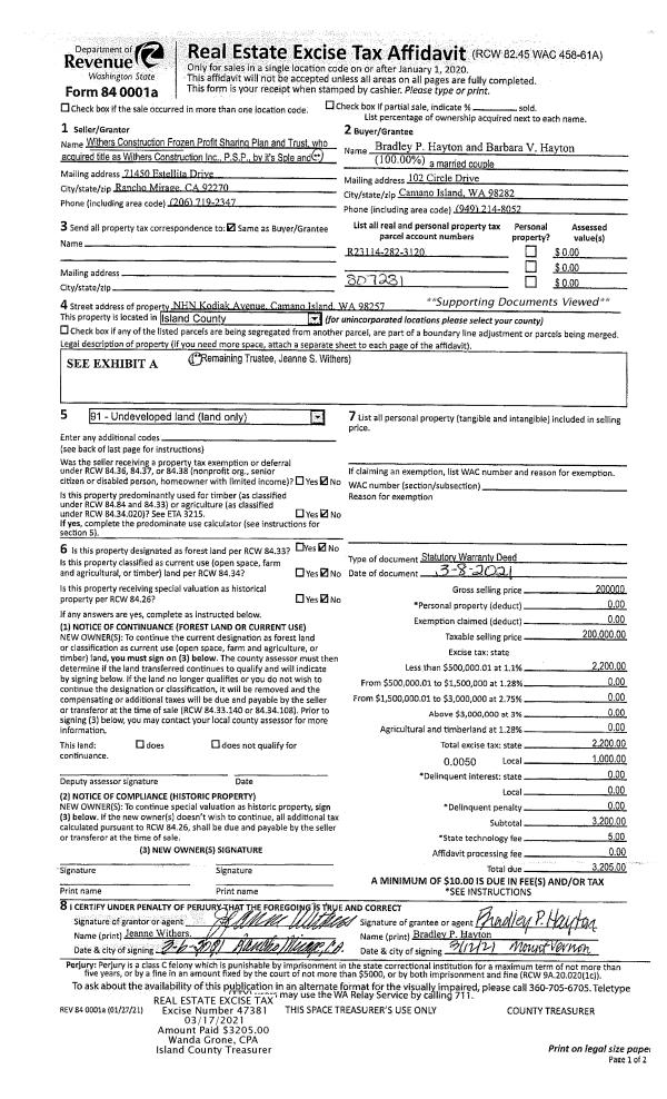
| 1 | 03/08/2021 | WD | Warranty Deed | WITHERS CONSTRUCTIONS INC. P.S.P. | HAYTON, BRADLEY P | | | $200,000.00 | 47381 | 4513796 |
| 2 | 08/03/2016 | TRUSTEED | Trustee's Deed | WITHERS CONSTRUCTIONS INC. P.S.P. | WITHERS CONSTRUCTIONS INC. P.S.P. | | | $0.00 | 25957 | 4406469 |
| 3 | 08/31/2016 | TRUSTEED | Trustee's Deed | SUN MOUNTAIN CONSTRUCTION INC | WITHERS CONSTRUCTIONS INC. P.S.P. | | | $0.00 | 25955 | 4406462 |
| 4 | 09/16/2010 | QCD | Quit Claim Deed | CAMANO HOLDING COMPANY LLC | SUN MOUNTAIN CONSTRUCTION INC | | | $0.00 | 2320 | 4281115 |
| 5 | 06/16/2009 | QCD | Quit Claim Deed | JONES, DARRYL R | CAMANO HOLDING COMPANY LLC, | | | $0.00 | 91328 | 4253750 |
| 6 | 12/23/2008 | BLA | DNU - Boundary Line Adjustment | JONES, DARRYL R | JONES, DARRYL R | | | $0.00 | 81077 | 4192328 |
| 7 | 11/24/2008 | BLA | DNU - Boundary Line Adjustment | Unknown | JONES, DARRYL R | | | $0.00 | 81045 | 4171901 |