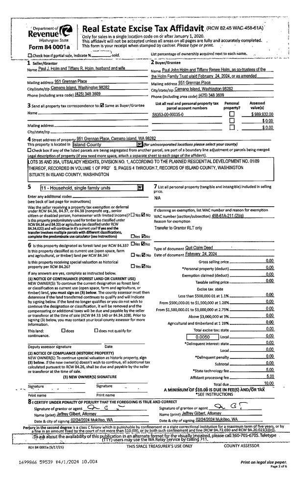
Property
Account |
| Property ID: | 807613 | Abbreviated Legal Description: | LOT 2 SP 145-06.13324.427-4260 V4 SP P219 & 220 AF# 4193745 |
| Geographic ID: | R13324-427-4110 | Agent Code: | |
| Type: | Real | | |
| Tax Area: | 112 - APPRAISER-OH Schl Dist, outside OH, improved, greater than 1 acre | Land Use Code | 11 |
| Open Space: | N | DFL | N |
| Historic Property: | N | Remodel Property: | N |
| Multi-Family Redevelopment: | N | | |
| Township: | 33 | Section: | 24 |
| Range: | R1 |
Location |
| Address: | 3593 WILSON RD OAK HARBOR, WA 98277 | Mapsco: | |
| Neighborhood: | Cycle 6 | Map ID: | 225 |
| Neighborhood CD: | 6 |
Owner |
| Name: | METCALFE, STEVEN J | Owner ID: | 311513 |
| Mailing Address: | JUDY C METCALFE 621 DUGUALLA RD OAK HARBOR, WA 98277 | % Ownership: | 100.0000000000% |
| | | Exemptions: | |
Taxes and Assessment Details
Values
| (+) Improvement Homesite Value: | + | $0 | |
| (+) Improvement Non-Homesite Value: | + | $220,328 | |
| (+) Land Homesite Value: | + | $0 | |
| (+) Land Non-Homesite Value: | + | $300,000 | |
| (+) Curr Use (HS): | + | $0 | $0 |
| (+) Curr Use (NHS): | + | $0 | $0 |
| | | -------------------------- | |
| (=) Market Value: | = | $520,328 | |
| (–) Productivity Loss: | – | $0 | |
| | | -------------------------- | |
| (=) Subtotal: | = | $520,328 | |
| (+) Senior Appraised Value: | + | $0 | |
| (+) Non-Senior Appraised Value: | + | $520,328 | |
| | | -------------------------- | |
| (=) Total Appraised Value: | = | $520,328 | |
| (–) Senior Exemption Loss: | – | $0 | |
| (–) Exemption Loss: | – | $0 | |
| | | -------------------------- | |
| (=) Taxable Value: | = | $520,328 | |
Taxing Jurisdiction
| Owner: | METCALFE, STEVEN J | | |
| % Ownership: | 100.0000000000% | | |
| Total Value: | $520,328 | | |
| Tax Area: | 112 - APPRAISER-OH Schl Dist, outside OH, improved, greater than 1 acre |
| CF | Conservation Futures | 0.0313996660 | $520,328 | $520,328 | $16.34 | | |
| CEM1 | Cemetery #1 | 0.0040018856 | $520,328 | $520,328 | $2.08 | | |
| FIRE2 | Fire & Rescue Dist #2 N Whidbey GEN | 0.5381486274 | $520,328 | $520,328 | $280.01 | | |
| HOBOND | Hospital BOND | 0.1893405597 | $520,328 | $520,328 | $98.52 | | |
| HOGEN | Hospital GEN | 0.3848777722 | $520,328 | $520,328 | $200.26 | | |
| CE | County Current Expense | 0.3674210519 | $520,328 | $520,328 | $191.18 | | |
| CR | County Roads | 0.4614296361 | $520,328 | $520,328 | $240.09 | | |
| ISLANDEMS | Hospital GEN (EMS) | 0.4952018576 | $520,328 | $520,328 | $257.67 | | |
| LIB | Library Sno-Isle GEN | 0.3039084203 | $520,328 | $520,328 | $158.13 | | |
| NWHIDPRMT | P & R N Whidbey GEN | 0.1990272349 | $520,328 | $520,328 | $103.56 | | |
| SCH201MO | School 201 Enrichment | 2.3851112745 | $520,328 | $520,328 | $1,241.04 | | |
| ST | State School | 1.4761226122 | $520,328 | $520,328 | $768.07 | | |
| ST2 | State School Part 2 | 0.7953803475 | $520,328 | $520,328 | $413.86 | | |
| | Total Tax Rate: | 7.6313709459 | | | | | |
| | | | | Taxes w/Current Exemptions: | $3,970.81 | | |
| | | | | Taxes w/o Exemptions: | $3,970.81 | | |
Improvement / Building
| Improvement #1: | MANUFACTURED HOME | State Code: | Y | 1920.0 sqft | Value: | $220,328 |
| Bathrooms: | 0 | Bedrooms: | 0 | | Ceiling: | PLASTER PAINTED | Cooling: | EVAP NO DUCT | | Exterior Wall/Cover: | VINYL | Floor Covering: | CARPET 100% | | Floor Structure: | SLAB ON GRADE | Foundation: | SLAB | | Heating: | FHA ELECTRIC | Interior Finish: | PLASTER | | Plumbing Fixture Cnt: | 1 | Roof Slope: | FLAT | | Roof Structure/Cover: | CJ ALUMINIUM HEAVY |   |   |
|
| | Type | Description | Class CD | Sub Class CD | Year Built | Area |
| | BAS | BASE/MAIN FLOOR | 3 | 0 | 2008 | 1920.0 |
| | OWP | OPEN WOOD PORCH W/STEPS | 3 | 0 | 2008 | 954.5 |
| | CPD | OPEN CARPORT DIRT FLOOR | 3 | 0 | 2008 | 896.0 |
| | DGR | DETACHED GARAGE | 3 | 0 | 2019 | 3360.0 |
Sketch
Property Image
Land
| 1 | 32 | AC (03.01-09.99) | 4.9400 | 0.00 | 0.00 | 0.00 | 1.00 | $300,000 | $0 |
Roll Value History
| 2026 | N/A | N/A | N/A | N/A | N/A |
| 2025 | $220,328 | $300,000 | $0 | $520,328 | $520,328 |
| 2024 | $226,202 | $280,000 | $0 | $506,202 | $506,202 |
| 2023 | $232,078 | $270,000 | $0 | $502,078 | $502,078 |
| 2022 | $215,438 | $240,000 | $0 | $455,438 | $455,438 |
| 2021 | $191,950 | $175,000 | $0 | $366,950 | $366,950 |
| 2020 | $190,830 | $150,000 | $0 | $340,830 | $340,830 |
| 2019 | $152,123 | $185,000 | $0 | $337,123 | $337,123 |
| 2018 | $83,125 | $170,000 | $0 | $253,125 | $253,125 |
| 2017 | $85,036 | $150,000 | $0 | $235,036 | $235,036 |
| 2016 | $82,588 | $140,000 | $0 | $222,588 | $222,588 |
| 2015 | $84,424 | $120,000 | $0 | $204,424 | $204,424 |
| 2014 | $85,342 | $100,000 | $0 | $185,342 | $185,342 |
| 2013 | $86,259 | $97,812 | $0 | $184,071 | $184,071 |
| 2012 | $88,094 | $111,150 | $0 | $199,244 | $199,244 |
| 2011 | $89,012 | $123,500 | $0 | $212,512 | $212,512 |
| 2010 | $97,968 | $123,500 | $0 | $221,468 | $221,468 |
| 2009 | $102,548 | $123,500 | $0 | $226,048 | $226,048 |
| 2008 | $104,908 | $123,152 | $0 | $228,060 | $228,060 |
Deed and Sales History
| 1 | 02/19/2024 | QCD | Quit Claim Deed | METCALFE II, STEVEN J | METCALFE, STEVEN J | | | $0.00 | 59277 | 4569732 |
| 2 | 05/24/2016 | QCD | Quit Claim Deed | METCALFE II, STEVEN J | METCALFE II, STEVEN J | | | $0.00 | 33096 | 4439914 |
| 3 | 02/28/2008 | WD | Warranty Deed | Unknown | METCALFE II, STEVEN J | | | $233,917.00 | 80482 | 4222908 |
| 4 | 01/17/2008 | QCD | Quit Claim Deed | METCALFE II, STEVEN J | METCALFE II, STEVEN J | | | $0.00 | 80483 | 4222909 |
Payout Agreement
| No payout information available.. |