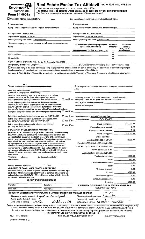
Property
Account |
| Property ID: | 807649 | Abbreviated Legal Description: | COUPEVILLE LOTS 3 & 4 BLK 22 |
| Geographic ID: | S6415-00-22003-0 | Agent Code: | |
| Type: | Real | | |
| Tax Area: | 300 - APPRAISER-Cpvl Schl Dist, in Cpvl | Land Use Code | 11 |
| Open Space: | N | DFL | N |
| Historic Property: | N | Remodel Property: | N |
| Multi-Family Redevelopment: | N | | |
| Township: | | Section: | |
| Range: | |
Location |
| Address: | | Mapsco: | |
| Neighborhood: | 2 Main Street Commercial | Map ID: | 175 |
| Neighborhood CD: | 21cCPmain1 |
Owner |
| Name: | TULK, JUSTIN | Owner ID: | 313236 |
| Mailing Address: | BONNIE TULK 602 HALLER ST NE COUPEVILLE, WA 98239 | % Ownership: | 100.0000000000% |
| | | Exemptions: | |
Taxes and Assessment Details
Values
| (+) Improvement Homesite Value: | + | N/A | |
| (+) Improvement Non-Homesite Value: | + | N/A | |
| (+) Land Homesite Value: | + | N/A | |
| (+) Land Non-Homesite Value: | + | N/A | Ag / Timber Use Value |
| (+) Curr Use (HS): | + | N/A | N/A |
| (+) Curr Use (NHS): | + | N/A | N/A |
| | | -------------------------- | |
| (=) Market Value: | = | N/A | |
| (–) Productivity Loss: | – | N/A | |
| | | -------------------------- | |
| (=) Subtotal: | = | N/A | |
| (+) Senior Appraised Value: | + | N/A | |
| (+) Non-Senior Appraised Value: | + | N/A | |
| | | -------------------------- | |
| (=) Total Appraised Value: | = | N/A | |
| (–) Senior Exemption Loss: | – | N/A | |
| (–) Exemption Loss: | – | N/A | |
| | | -------------------------- | |
| (=) Taxable Value: | = | N/A | |
Taxing Jurisdiction
| Owner: | TULK, JUSTIN | | |
| % Ownership: | 100.0000000000% | | |
| Total Value: | N/A | | |
| Tax Area: | 300 - APPRAISER-Cpvl Schl Dist, in Cpvl |
| CF | Conservation Futures | N/A | N/A | N/A | N/A | | |
| WCD | Whidbey Conservation District | N/A | N/A | N/A | N/A | | |
| CEM2 | Cemetery #2 | N/A | N/A | N/A | N/A | | |
| COUP | City: Town of Coupeville | N/A | N/A | N/A | N/A | | |
| FIRE5 | Fire & Rescue Dist #5 C Whidbey GEN | N/A | N/A | N/A | N/A | | |
| FIRE5BOND | Fire & Rescue Dist #5 C Whidbey BOND | N/A | N/A | N/A | N/A | | |
| HOBOND | Hospital BOND | N/A | N/A | N/A | N/A | | |
| HOGEN | Hospital GEN | N/A | N/A | N/A | N/A | | |
| CE | County Current Expense | N/A | N/A | N/A | N/A | | |
| ISLANDEMS | Hospital GEN (EMS) | N/A | N/A | N/A | N/A | | |
| LIB | Library Sno-Isle GEN | N/A | N/A | N/A | N/A | | |
| LIBCAP | Library Sno-Isle BOND (Cap Fac Imp Area) | N/A | N/A | N/A | N/A | | |
| POCOUP | Port of Coupeville GEN | N/A | N/A | N/A | N/A | | |
| COUPSDTECH | School 204 CP (TECH) | N/A | N/A | N/A | N/A | | |
| SCH204MO | School 204 Enrichment | N/A | N/A | N/A | N/A | | |
| ST | State School | N/A | N/A | N/A | N/A | | |
| ST2 | State School Part 2 | N/A | N/A | N/A | N/A | | |
| | Total Tax Rate: | N/A | | | | | |
| | | | | Taxes w/Current Exemptions: | N/A | | |
| | | | | Taxes w/o Exemptions: | N/A | | |
Improvement / Building
| Improvement #1: | RESIDENTIAL/COMMERCIAL | State Code: | Y | 0.0 sqft | Value: | N/A |
Sketch
Property Image
Land
| 1 | 14 | SQ (08001-12000) | 0.2300 | 10018.80 | 0.00 | 0.00 | 1.00 | N/A | N/A |
Roll Value History
| 2026 | N/A | N/A | N/A | N/A | N/A |
| 2025 | $7,078 | $95,000 | $0 | $102,078 | $102,078 |
| 2024 | $6,240 | $80,000 | $0 | $86,240 | $86,240 |
| 2023 | $6,240 | $130,000 | $0 | $136,240 | $136,240 |
| 2022 | $6,240 | $130,000 | $0 | $136,240 | $136,240 |
| 2021 | $6,240 | $130,000 | $0 | $136,240 | $136,240 |
| 2020 | $6,240 | $130,000 | $0 | $136,240 | $136,240 |
| 2019 | $6,240 | $170,000 | $0 | $176,240 | $176,240 |
| 2018 | $6,390 | $150,000 | $0 | $156,390 | $156,390 |
| 2017 | $6,390 | $100,188 | $0 | $106,578 | $106,578 |
| 2016 | $6,390 | $100,188 | $0 | $106,578 | $106,578 |
| 2015 | $6,390 | $100,188 | $0 | $106,578 | $106,578 |
| 2014 | $6,390 | $100,188 | $0 | $106,578 | $106,578 |
| 2013 | $6,390 | $100,188 | $0 | $106,578 | $106,578 |
| 2012 | $6,390 | $255,900 | $0 | $262,290 | $262,290 |
| 2011 | $6,390 | $255,900 | $0 | $262,290 | $262,290 |
| 2010 | $6,390 | $255,900 | $0 | $262,290 | $262,290 |
| 2009 | $6,535 | $281,200 | $0 | $287,735 | $287,735 |
| 2008 | $6,535 | $281,200 | $0 | $287,735 | $287,735 |
| 2007 | $6,681 | $281,200 | $0 | $287,881 | $287,881 |
Deed and Sales History
| 1 | 07/18/2024 | WD | Warranty Deed | FOGELIN, ERIC S | TULK, JUSTIN | | | $245,000.00 | 60729 | 4574994 |
| 2 | 11/16/2020 | WD | Warranty Deed | REID, JEFRREY L | FOGELIN, ERIC S | | | $135,000.00 | 45818 | 4503027 |
| 3 | 09/29/2015 | WD | Warranty Deed | ALLEN, ROBERT L | REID, JEFRREY L | | | $75,000.00 | 21696 | 4387491 |
| 4 | 05/19/2015 | WD | Warranty Deed | MARTIN, ALICE C | ALLEN, ROBERT L | | | $380,000.00 | 19835 | 4379497 |
|   | |
| 5 | 05/22/2007 | BLA | DNU - Boundary Line Adjustment | Unknown | MARTIN, ALICE C | | | $0.00 | 80202 | 4153083 |
Payout Agreement
| No payout information available.. |