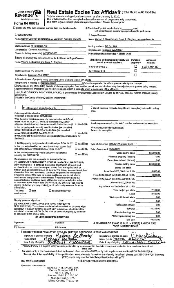
Property
Account |
| Property ID: | 807805 | Abbreviated Legal Description: | THE MEADOWS LOT 3 |
| Geographic ID: | S7496-00-00003-0 | Agent Code: | |
| Type: | Real | | |
| Tax Area: | 510 - APPRAISER-Stan/Cam Schl Dist, improved & 1 acre or less | Land Use Code | 11 |
| Open Space: | N | DFL | N |
| Historic Property: | N | Remodel Property: | N |
| Multi-Family Redevelopment: | N | | |
| Township: | | Section: | |
| Range: | |
Location |
| Address: | 937 SECORD CT CAMANO ISLAND, WA 98282 | Mapsco: | |
| Neighborhood: | Cycle 5 | Map ID: | 483 |
| Neighborhood CD: | 5 |
Owner |
| Name: | MURPHY, JEFFREY | Owner ID: | 311683 |
| Mailing Address: | JENNIFER MURPHY 937 SECORD CT CAMANO ISLAND, WA 98282 | % Ownership: | 100.0000000000% |
| | | Exemptions: | |
Taxes and Assessment Details
Values
| (+) Improvement Homesite Value: | + | $0 | |
| (+) Improvement Non-Homesite Value: | + | $401,896 | |
| (+) Land Homesite Value: | + | $0 | |
| (+) Land Non-Homesite Value: | + | $220,000 | |
| (+) Curr Use (HS): | + | $0 | $0 |
| (+) Curr Use (NHS): | + | $0 | $0 |
| | | -------------------------- | |
| (=) Market Value: | = | $621,896 | |
| (–) Productivity Loss: | – | $0 | |
| | | -------------------------- | |
| (=) Subtotal: | = | $621,896 | |
| (+) Senior Appraised Value: | + | $0 | |
| (+) Non-Senior Appraised Value: | + | $621,896 | |
| | | -------------------------- | |
| (=) Total Appraised Value: | = | $621,896 | |
| (–) Senior Exemption Loss: | – | $0 | |
| (–) Exemption Loss: | – | $0 | |
| | | -------------------------- | |
| (=) Taxable Value: | = | $621,896 | |
Taxing Jurisdiction
| Owner: | MURPHY, JEFFREY | | |
| % Ownership: | 100.0000000000% | | |
| Total Value: | $621,896 | | |
| Tax Area: | 510 - APPRAISER-Stan/Cam Schl Dist, improved & 1 acre or less |
| CF | Conservation Futures | 0.0313996660 | $621,896 | $621,896 | $19.53 | | |
| EMS1 | Fire & Rescue Dist #1 Camano GEN (EMS) | 0.4998471806 | $621,896 | $621,896 | $310.85 | | |
| FIRE1 | Fire & Rescue Dist #1 Camano GEN | 1.2496603404 | $621,896 | $621,896 | $777.16 | | |
| FIRE1BOND | Fire & Rescue Dist #1 Camano BOND | 0.1630371212 | $621,896 | $621,896 | $101.39 | | |
| CE | County Current Expense | 0.3674210519 | $621,896 | $621,896 | $228.50 | | |
| CR | County Roads | 0.4614296361 | $621,896 | $621,896 | $286.96 | | |
| LIB | Library Sno-Isle GEN | 0.3039084203 | $621,896 | $621,896 | $189.00 | | |
| SCH205_401 | School 205-401 Enrichment | 1.3697998934 | $621,896 | $621,896 | $851.87 | | |
| SCH205BOND | School 205-401 BOND | 0.9354199323 | $621,896 | $621,896 | $581.73 | | |
| ST | State School | 1.4761226122 | $621,896 | $621,896 | $917.99 | | |
| ST2 | State School Part 2 | 0.7953803475 | $621,896 | $621,896 | $494.64 | | |
| | Total Tax Rate: | 7.6534262019 | | | | | |
| | | | | Taxes w/Current Exemptions: | $4,759.62 | | |
| | | | | Taxes w/o Exemptions: | $4,759.62 | | |
Improvement / Building
| Improvement #1: | RESIDENTIAL | State Code: | Y | 1750.0 sqft | Value: | $401,896 |
| Bathrooms: | 2 | Bedrooms: | 3 | | Ceiling: | DRYWALL PAINTED | Cooling: | HEAT PUMP/CONV/V | | Exterior Wall/Cover: | CEMENT FIBER | Floor Covering: | HARDWOOD/CARP 20-80 | | Floor Structure: | WOOD W/SUBFLOOR | Foundation: | CONCRETE | | Interior Finish: | DRYWALL PAINT | Plumbing Fixture Cnt: | 11 | | Roof Slope: | 8" IN 12" | Roof Structure/Cover: | CJ ASPHALT |
|
| | Type | Description | Class CD | Sub Class CD | Year Built | Area |
| | BAS | BASE/MAIN FLOOR | 4 | 0 | 2007 | 1750.0 |
| | OP4 | OPEN PORCH W/CEILING-ROOF | 4 | 0 | 2007 | 126.0 |
| | OP4 | OPEN PORCH W/CEILING-ROOF | 4 | 0 | 2007 | 154.0 |
| | AGR | ATTACHED GARAGE | 4 | 0 | 2007 | 714.0 |
Sketch
| No sketches available for this property. |
Property Image
Land
| 1 | 15 | SQ (12001-21780) | 0.4500 | 19602.00 | 0.00 | 0.00 | 1.00 | $220,000 | $0 |
Roll Value History
| 2026 | N/A | N/A | N/A | N/A | N/A |
| 2025 | $401,896 | $220,000 | $0 | $621,896 | $621,896 |
| 2024 | $406,502 | $220,000 | $0 | $626,502 | $626,502 |
| 2023 | $411,107 | $220,000 | $0 | $631,107 | $631,107 |
| 2022 | $375,386 | $220,000 | $0 | $595,386 | $595,386 |
| 2021 | $313,342 | $150,000 | $0 | $463,342 | $463,342 |
| 2020 | $304,960 | $150,000 | $0 | $454,960 | $454,960 |
| 2019 | $236,084 | $200,000 | $0 | $436,084 | $436,084 |
| 2018 | $236,752 | $140,000 | $0 | $376,752 | $376,752 |
| 2017 | $226,157 | $100,000 | $0 | $326,157 | $326,157 |
| 2016 | $222,946 | $100,000 | $0 | $322,946 | $322,946 |
| 2015 | $201,264 | $65,000 | $0 | $266,264 | $266,264 |
| 2014 | $203,478 | $65,000 | $0 | $268,478 | $268,478 |
| 2013 | $205,690 | $41,600 | $0 | $247,290 | $247,290 |
| 2012 | $207,901 | $41,600 | $0 | $249,501 | $249,501 |
| 2011 | $210,113 | $52,000 | $0 | $262,113 | $262,113 |
| 2010 | $216,937 | $52,000 | $0 | $268,937 | $268,937 |
| 2009 | $260,564 | $130,000 | $0 | $390,564 | $390,564 |
| 2008 | $193,682 | $104,000 | $0 | $297,682 | $297,682 |
| 2007 | $22,563 | $104,000 | $0 | $126,563 | $126,563 |
Deed and Sales History
| 1 | 03/12/2024 | WD | Warranty Deed | LOPER, KAREN | MURPHY, JEFFREY | | | $675,000.00 | 59423 | 4570336 |
| 2 | 02/24/2021 | QCD | Quit Claim Deed | LOPER, MARK | LOPER, KAREN | | | $0.00 | 47343 | 4513541 |
| 3 | 09/04/2019 | WD | Warranty Deed | DRUMM, MICHAEL | LOPER, MARK | | | $450,000.00 | 40119 | 4470744 |
| 4 | 08/27/2015 | WD | Warranty Deed | PARKER, JOHN | DRUMM, MICHAEL | | | $350,000.00 | 21190 | 4385240 |
| 5 | 01/09/2012 | WD | Warranty Deed | MARTHA LAKE BUILDERS LLC | PARKER, JOHN | | | $261,500.00 | 6624 | 4308116 |
| 6 | 11/10/2006 | WD | Warranty Deed | MUELLER, RAYMOND D | MARTHA LAKE BUILDERS LLC, | | | $117,647.00 | 64892 | 4187090 |
| 7 | 01/01/1900 | OTHER | Other - Misc. Documents | Unknown | MUELLER, RAYMOND D | | | $0.00 | 0 | 0 |
Payout Agreement
| No payout information available.. |