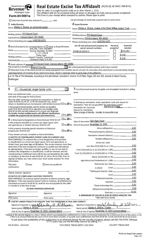
Property
Account |
| Property ID: | 807817 | Abbreviated Legal Description: | THE MEADOWS LOT 15 |
| Geographic ID: | S7496-00-00015-0 | Agent Code: | |
| Type: | Real | | |
| Tax Area: | 510 - APPRAISER-Stan/Cam Schl Dist, improved & 1 acre or less | Land Use Code | 11 |
| Open Space: | N | DFL | N |
| Historic Property: | N | Remodel Property: | N |
| Multi-Family Redevelopment: | N | | |
| Township: | | Section: | |
| Range: | |
Location |
| Address: | 914 SECORD CT CAMANO ISLAND, WA 98282 | Mapsco: | |
| Neighborhood: | Cycle 5 | Map ID: | 483 |
| Neighborhood CD: | 5 |
Owner |
| Name: | SHREVE TTEE, SHIRLEY A | Owner ID: | 314636 |
| Mailing Address: | 914 SECORD COURT CAMANO ISLAND, WA 98282 | % Ownership: | 100.0000000000% |
| | | Exemptions: | |
Taxes and Assessment Details
Values
| (+) Improvement Homesite Value: | + | $0 | |
| (+) Improvement Non-Homesite Value: | + | $358,750 | |
| (+) Land Homesite Value: | + | $0 | |
| (+) Land Non-Homesite Value: | + | $220,000 | |
| (+) Curr Use (HS): | + | $0 | $0 |
| (+) Curr Use (NHS): | + | $0 | $0 |
| | | -------------------------- | |
| (=) Market Value: | = | $578,750 | |
| (–) Productivity Loss: | – | $0 | |
| | | -------------------------- | |
| (=) Subtotal: | = | $578,750 | |
| (+) Senior Appraised Value: | + | $0 | |
| (+) Non-Senior Appraised Value: | + | $578,750 | |
| | | -------------------------- | |
| (=) Total Appraised Value: | = | $578,750 | |
| (–) Senior Exemption Loss: | – | $0 | |
| (–) Exemption Loss: | – | $0 | |
| | | -------------------------- | |
| (=) Taxable Value: | = | $578,750 | |
Taxing Jurisdiction
| Owner: | SHREVE TTEE, SHIRLEY A | | |
| % Ownership: | 100.0000000000% | | |
| Total Value: | $578,750 | | |
| Tax Area: | 510 - APPRAISER-Stan/Cam Schl Dist, improved & 1 acre or less |
| CF | Conservation Futures | 0.0313996660 | $578,750 | $578,750 | $18.17 | | |
| EMS1 | Fire & Rescue Dist #1 Camano GEN (EMS) | 0.4998471806 | $578,750 | $578,750 | $289.29 | | |
| FIRE1 | Fire & Rescue Dist #1 Camano GEN | 1.2496603404 | $578,750 | $578,750 | $723.24 | | |
| FIRE1BOND | Fire & Rescue Dist #1 Camano BOND | 0.1630371212 | $578,750 | $578,750 | $94.36 | | |
| CE | County Current Expense | 0.3674210519 | $578,750 | $578,750 | $212.64 | | |
| CR | County Roads | 0.4614296361 | $578,750 | $578,750 | $267.05 | | |
| LIB | Library Sno-Isle GEN | 0.3039084203 | $578,750 | $578,750 | $175.89 | | |
| SCH205_401 | School 205-401 Enrichment | 1.3697998934 | $578,750 | $578,750 | $792.77 | | |
| SCH205BOND | School 205-401 BOND | 0.9354199323 | $578,750 | $578,750 | $541.37 | | |
| ST | State School | 1.4761226122 | $578,750 | $578,750 | $854.31 | | |
| ST2 | State School Part 2 | 0.7953803475 | $578,750 | $578,750 | $460.33 | | |
| | Total Tax Rate: | 7.6534262019 | | | | | |
| | | | | Taxes w/Current Exemptions: | $4,429.42 | | |
| | | | | Taxes w/o Exemptions: | $4,429.42 | | |
Improvement / Building
| Improvement #1: | RESIDENTIAL | State Code: | Y | 1408.6 sqft | Value: | $358,750 |
| Bathrooms: | 2 | Bedrooms: | 3 | | Ceiling: | DRYWALL PAINTED | Cooling: | HEAT PUMP/CONV/V | | Exterior Wall/Cover: | CEMENT FIBER | Floor Covering: | HARDWOOD/CARP 60-40 | | Floor Structure: | WOOD W/SUBFLOOR | Foundation: | CONCRETE | | Interior Finish: | DRYWALL PAINT | Plumbing Fixture Cnt: | 11 | | Roof Slope: | 8" IN 12" | Roof Structure/Cover: | CJ ASPHALT |
|
| | Type | Description | Class CD | Sub Class CD | Year Built | Area |
| | BAS | BASE/MAIN FLOOR | 4 | 0 | 2007 | 1408.6 |
| | OP4 | OPEN PORCH W/CEILING-ROOF | 4 | 0 | 2007 | 84.8 |
| | AGR | ATTACHED GARAGE | 4 | 0 | 2007 | 397.8 |
| | UTY | STORAGE/UTILITY | 4 | 0 | 2007 | 200.0 |
Sketch
Property Image
Land
| 1 | 15 | SQ (12001-21780) | 0.3400 | 14810.40 | 0.00 | 0.00 | 1.00 | $220,000 | $0 |
Roll Value History
| 2026 | N/A | N/A | N/A | N/A | N/A |
| 2025 | $358,750 | $220,000 | $0 | $578,750 | $578,750 |
| 2024 | $362,862 | $220,000 | $0 | $582,862 | $582,862 |
| 2023 | $366,974 | $220,000 | $0 | $586,974 | $586,974 |
| 2022 | $335,098 | $220,000 | $0 | $555,098 | $555,098 |
| 2021 | $293,861 | $150,000 | $0 | $443,861 | $443,861 |
| 2020 | $284,678 | $150,000 | $0 | $434,678 | $434,678 |
| 2019 | $205,993 | $200,000 | $0 | $405,993 | $405,993 |
| 2018 | $206,557 | $140,000 | $0 | $346,557 | $346,557 |
| 2017 | $207,629 | $100,000 | $0 | $307,629 | $307,629 |
| 2016 | $209,886 | $100,000 | $0 | $309,886 | $309,886 |
| 2015 | $178,495 | $65,000 | $0 | $243,495 | $243,495 |
| 2014 | $180,456 | $65,000 | $0 | $245,456 | $175,456 |
| 2013 | $182,417 | $41,600 | $0 | $224,017 | $224,017 |
| 2012 | $184,379 | $41,600 | $0 | $225,979 | $225,979 |
| 2011 | $186,341 | $52,000 | $0 | $238,341 | $238,341 |
| 2010 | $193,287 | $52,000 | $0 | $245,287 | $245,287 |
| 2009 | $224,559 | $130,000 | $0 | $354,559 | $354,559 |
| 2008 | $224,822 | $104,000 | $0 | $328,822 | $328,822 |
| 2007 | $123,319 | $104,000 | $0 | $227,319 | $227,319 |
Deed and Sales History
| 1 | 11/15/2024 | QCD | Quit Claim Deed | SHREVE, SHIRELY A | SHREVE TTEE, SHIRLEY A | | | $0.00 | 61897 | 4579686 |
| 2 | 05/07/2019 | WD | Warranty Deed | CLEVELAND CO-TRUSTEE, DARWIN G | SHREVE, SHIRELY A | | | $429,000.00 | 38647 | 4463938 |
| 3 | 06/11/2015 | WD | Warranty Deed | BELLES, RONALD | CLEVELAND CO-TRUSTEE, DARWIN G | | | $322,000.00 | 20017 | 4380265 |
| 4 | 05/17/2011 | WD | Warranty Deed | MARTHA LAKE BUILDERS LLC | BELLES, RONALD | | | $254,000.00 | 4475 | 4295496 |
| 5 | 11/10/2006 | WD | Warranty Deed | MUELLER, RAYMOND D | MARTHA LAKE BUILDERS LLC, | | | $117,647.00 | 64892 | 4187090 |
| 6 | 01/01/1900 | OTHER | Other - Misc. Documents | Unknown | MUELLER, RAYMOND D | | | $0.00 | 0 | 0 |
Payout Agreement
| No payout information available.. |