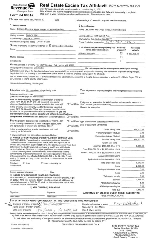
Property
Account |
| Property ID: | 807871 | Abbreviated Legal Description: | ISLAND PLACE #1 LOT 36 |
| Geographic ID: | S7234-00-00036-0 | Agent Code: | |
| Type: | Real | | |
| Tax Area: | 100 - APPRAISER-OH Schl Dist, in OH | Land Use Code | 11 |
| Open Space: | N | DFL | N |
| Historic Property: | N | Remodel Property: | N |
| Multi-Family Redevelopment: | N | | |
| Township: | | Section: | |
| Range: | |
Location |
| Address: | 1511 NW 5TH AVE OAK HARBOR, WA 98277 | Mapsco: | |
| Neighborhood: | Cycle 1 | Map ID: | 252 |
| Neighborhood CD: | 1 |
Owner |
| Name: | MATEO, LEE | Owner ID: | 306121 |
| Mailing Address: | CHIQUI MATEO 1511 NW 5TH AVE OAK HARBOR, WA 98277 | % Ownership: | 100.0000000000% |
| | | Exemptions: | |
Taxes and Assessment Details
Values
| (+) Improvement Homesite Value: | + | $0 | |
| (+) Improvement Non-Homesite Value: | + | $263,837 | |
| (+) Land Homesite Value: | + | $0 | |
| (+) Land Non-Homesite Value: | + | $155,000 | |
| (+) Curr Use (HS): | + | $0 | $0 |
| (+) Curr Use (NHS): | + | $0 | $0 |
| | | -------------------------- | |
| (=) Market Value: | = | $418,837 | |
| (–) Productivity Loss: | – | $0 | |
| | | -------------------------- | |
| (=) Subtotal: | = | $418,837 | |
| (+) Senior Appraised Value: | + | $0 | |
| (+) Non-Senior Appraised Value: | + | $418,837 | |
| | | -------------------------- | |
| (=) Total Appraised Value: | = | $418,837 | |
| (–) Senior Exemption Loss: | – | $0 | |
| (–) Exemption Loss: | – | $0 | |
| | | -------------------------- | |
| (=) Taxable Value: | = | $418,837 | |
Taxing Jurisdiction
| Owner: | MATEO, LEE | | |
| % Ownership: | 100.0000000000% | | |
| Total Value: | $418,837 | | |
| Tax Area: | 100 - APPRAISER-OH Schl Dist, in OH |
| CF | Conservation Futures | 0.0313996660 | $418,837 | $418,837 | $13.15 | | |
| CEM1 | Cemetery #1 | 0.0040018856 | $418,837 | $418,837 | $1.68 | | |
| COH | City of Oak Harbor | 2.3090730572 | $418,837 | $418,837 | $967.13 | | |
| OAKBOND | City of Oak Harbor BOND | 0.1902260131 | $418,837 | $418,837 | $79.67 | | |
| HOBOND | Hospital BOND | 0.1893405597 | $418,837 | $418,837 | $79.30 | | |
| HOGEN | Hospital GEN | 0.3848777722 | $418,837 | $418,837 | $161.20 | | |
| CE | County Current Expense | 0.3674210519 | $418,837 | $418,837 | $153.89 | | |
| ISLANDEMS | Hospital GEN (EMS) | 0.4952018576 | $418,837 | $418,837 | $207.41 | | |
| LIB | Library Sno-Isle GEN | 0.3039084203 | $418,837 | $418,837 | $127.29 | | |
| NWHIDPRMT | P & R N Whidbey GEN | 0.1990272349 | $418,837 | $418,837 | $83.36 | | |
| SCH201MO | School 201 Enrichment | 2.3851112745 | $418,837 | $418,837 | $998.97 | | |
| ST | State School | 1.4761226122 | $418,837 | $418,837 | $618.25 | | |
| ST2 | State School Part 2 | 0.7953803475 | $418,837 | $418,837 | $333.13 | | |
| | Total Tax Rate: | 9.1310917527 | | | | | |
| | | | | Taxes w/Current Exemptions: | $3,824.43 | | |
| | | | | Taxes w/o Exemptions: | $3,824.43 | | |
Improvement / Building
| Improvement #1: | RESIDENTIAL | State Code: | Y | 1425.2 sqft | Value: | $263,837 |
| Bathrooms: | 2.5 | Bedrooms: | 3 | | Ceiling: | DRYWALL PAINTED | Exterior Wall/Cover: | CEMENT FIBER | | Floor Covering: | CARPET/VINYL 80-20 | Floor Structure: | WOOD W/SUBFLOOR | | Foundation: | CONCRETE | Heating: | WALL HEAT ELECTRIC | | Interior Finish: | DRYWALL PAINT | Plumbing Fixture Cnt: | 12 | | Roof Slope: | 6" IN 12" | Roof Structure/Cover: | CJ ASPHALT |
|
| | Type | Description | Class CD | Sub Class CD | Year Built | Area |
| | BAS | BASE/MAIN FLOOR | 3 | 0 | 2009 | 560.0 |
| | OP1 | OPEN PORCH SLAB | 3 | 0 | 2009 | 125.0 |
| | BIG | BUILT IN GARAGE | 3 | 0 | 2009 | 387.3 |
| | UPS | UPPER STORY | 3 | 0 | 2009 | 865.2 |
| | OWC | OPEN WOOD PORCH W/STEPS/ROOF/C | 3 | 0 | 2009 | 24.8 |
Sketch
Property Image
Land
| 1 | 12 | SQ (00000-06000) | 0.0000 | 0.00 | 0.00 | 0.00 | 1.00 | $155,000 | $0 |
Roll Value History
| 2026 | N/A | N/A | N/A | N/A | N/A |
| 2025 | $263,837 | $155,000 | $0 | $418,837 | $418,837 |
| 2024 | $266,055 | $145,000 | $0 | $411,055 | $411,055 |
| 2023 | $268,417 | $145,000 | $0 | $413,417 | $413,417 |
| 2022 | $240,906 | $120,000 | $0 | $360,906 | $360,906 |
| 2021 | $211,351 | $95,000 | $0 | $306,351 | $306,351 |
| 2020 | $204,402 | $80,000 | $0 | $284,402 | $284,402 |
| 2019 | $146,217 | $125,000 | $0 | $271,217 | $271,217 |
| 2018 | $146,609 | $105,000 | $0 | $251,609 | $251,609 |
| 2017 | $137,037 | $85,000 | $0 | $222,037 | $222,037 |
| 2016 | $138,543 | $70,000 | $0 | $208,543 | $208,543 |
| 2015 | $140,049 | $35,000 | $0 | $175,049 | $175,049 |
| 2014 | $141,555 | $35,000 | $0 | $176,555 | $176,555 |
| 2013 | $143,061 | $35,000 | $0 | $178,061 | $178,061 |
| 2012 | $144,566 | $35,000 | $0 | $179,566 | $179,566 |
| 2011 | $150,218 | $50,000 | $0 | $200,218 | $200,218 |
| 2010 | $150,143 | $35,000 | $0 | $185,143 | $185,143 |
| 2009 | $156,311 | $55,000 | $0 | $211,311 | $211,311 |
| 2008 | $0 | $55,000 | $0 | $55,000 | $55,000 |
| 2007 | $0 | $55,000 | $0 | $55,000 | $55,000 |
Deed and Sales History
| 1 | 08/23/2022 | WD | Warranty Deed | SHEETS, BRANDON | MATEO, LEE | | | $459,000.00 | 54379 | 4550543 |
| 2 | 02/18/2009 | QCD | Quit Claim Deed | Unknown | SHEETS, BRANDON | | | $204,950.00 | 90360 | 4245191 |
| 3 | 01/01/1900 | OTHER | Other - Misc. Documents | Unknown | HOMESTEAD NW DEV CO, | | | $0.00 | 0 | 0 |
Payout Agreement
| No payout information available.. |