Property
Account |
| Property ID: | 807981 | Abbreviated Legal Description: | CAPRI COURT CONDO UNIT 106 1/20TH INT |
| Geographic ID: | S8519-00-00106-0 | Agent Code: | |
| Type: | Real | | |
| Tax Area: | 100 - APPRAISER-OH Schl Dist, in OH | Land Use Code | 14 |
| Open Space: | N | DFL | N |
| Historic Property: | N | Remodel Property: | N |
| Multi-Family Redevelopment: | N | | |
| Township: | | Section: | |
| Range: | |
Location |
| Address: | 325 NE KETTLE ST APT 106 OAK HARBOR, WA 98277 | Mapsco: | |
| Neighborhood: | 6A*OH-capri court | Map ID: | 257 |
| Neighborhood CD: | 6A*OHcapri |
Owner |
| Name: | AYNES JTWROS, JOHN D. | Owner ID: | 318273 |
| Mailing Address: | ADA MAY COLE JTWROS 325 NE KETTLE ST #106 OAK HARBOR, WA 98277 | % Ownership: | 100.0000000000% |
| | | Exemptions: | |
Taxes and Assessment Details
Values
| (+) Improvement Homesite Value: | + | N/A | |
| (+) Improvement Non-Homesite Value: | + | N/A | |
| (+) Land Homesite Value: | + | N/A | |
| (+) Land Non-Homesite Value: | + | N/A | Ag / Timber Use Value |
| (+) Curr Use (HS): | + | N/A | N/A |
| (+) Curr Use (NHS): | + | N/A | N/A |
| | | -------------------------- | |
| (=) Market Value: | = | N/A | |
| (–) Productivity Loss: | – | N/A | |
| | | -------------------------- | |
| (=) Subtotal: | = | N/A | |
| (+) Senior Appraised Value: | + | N/A | |
| (+) Non-Senior Appraised Value: | + | N/A | |
| | | -------------------------- | |
| (=) Total Appraised Value: | = | N/A | |
| (–) Senior Exemption Loss: | – | N/A | |
| (–) Exemption Loss: | – | N/A | |
| | | -------------------------- | |
| (=) Taxable Value: | = | N/A | |
Taxing Jurisdiction
| Owner: | AYNES JTWROS, JOHN D. | | |
| % Ownership: | 100.0000000000% | | |
| Total Value: | N/A | | |
| Tax Area: | 100 - APPRAISER-OH Schl Dist, in OH |
| CF | Conservation Futures | N/A | N/A | N/A | N/A | | |
| WCD | Whidbey Conservation District | N/A | N/A | N/A | N/A | | |
| CEM1 | Cemetery #1 | N/A | N/A | N/A | N/A | | |
| COH | City of Oak Harbor | N/A | N/A | N/A | N/A | | |
| HOBOND | Hospital BOND | N/A | N/A | N/A | N/A | | |
| HOGEN | Hospital GEN | N/A | N/A | N/A | N/A | | |
| CE | County Current Expense | N/A | N/A | N/A | N/A | | |
| ISLANDEMS | Hospital GEN (EMS) | N/A | N/A | N/A | N/A | | |
| LIB | Library Sno-Isle GEN | N/A | N/A | N/A | N/A | | |
| NWHIDPRMT | P & R N Whidbey GEN | N/A | N/A | N/A | N/A | | |
| SCH201MO | School 201 Enrichment | N/A | N/A | N/A | N/A | | |
| ST | State School | N/A | N/A | N/A | N/A | | |
| ST2 | State School Part 2 | N/A | N/A | N/A | N/A | | |
| | Total Tax Rate: | N/A | | | | | |
| | | | | Taxes w/Current Exemptions: | N/A | | |
| | | | | Taxes w/o Exemptions: | N/A | | |
Improvement / Building
| Improvement #1: | RESIDENTIAL | State Code: | A1 | 763.0 sqft | Value: | N/A |
| Bathrooms: | 1 | Bedrooms: | 2 | | Ceiling: | DRY WALL SPRAYED | Exterior Wall/Cover: | VINYL | | Floor Covering: | CARPET/VINYL 80-20 | Floor Structure: | WOOD W/SUBFLOOR | | Foundation: | CONCRETE | Heating: | BASEBOARD ELECTRIC | | Interior Finish: | DRYWALL PAINT | Plumbing Fixture Cnt: | 6 | | Roof Slope: | 4" IN 12" | Roof Structure/Cover: | CJ ASPHALT |
|
| | Type | Description | Class CD | Sub Class CD | Year Built | Area |
| | BAS | BASE/MAIN FLOOR | 3 | 0 | 1984 | 763.0 |
| | OWP | OPEN WOOD PORCH W/STEPS | 3 | 0 | 1984 | 32.0 |
| | oSIT | Site Improvements | 3 | 0 | 1984 | 0.0 |
Sketch
Property Image
Land
| 1 | 61 | MULTIPLE RESIDENCES | 0.0000 | 2033.66 | 0.00 | 0.00 | 1.00 | N/A | N/A |
Roll Value History
| 2026 | N/A | N/A | N/A | N/A | N/A |
| 2025 | $137,352 | $45,000 | $0 | $182,352 | $182,352 |
| 2024 | $141,830 | $45,000 | $0 | $186,830 | $78,186 |
| 2023 | $143,576 | $40,000 | $0 | $183,576 | $78,415 |
| 2022 | $125,434 | $40,000 | $0 | $165,434 | $76,038 |
| 2021 | $110,684 | $25,000 | $0 | $135,684 | $135,684 |
| 2020 | $107,719 | $22,000 | $0 | $129,719 | $129,719 |
| 2019 | $75,720 | $60,000 | $0 | $135,720 | $135,720 |
| 2018 | $75,947 | $65,000 | $0 | $140,947 | $140,947 |
| 2017 | $76,402 | $16,264 | $0 | $92,666 | $92,666 |
| 2016 | $68,807 | $16,264 | $0 | $85,071 | $85,071 |
| 2015 | $69,730 | $16,264 | $0 | $85,994 | $85,994 |
| 2014 | $70,651 | $16,264 | $0 | $86,915 | $86,915 |
| 2013 | $71,574 | $16,264 | $0 | $87,838 | $87,838 |
| 2012 | $73,418 | $16,264 | $0 | $89,682 | $89,682 |
| 2011 | $73,418 | $16,264 | $0 | $89,682 | $89,682 |
| 2010 | $76,124 | $8,358 | $0 | $84,482 | $84,482 |
| 2009 | $79,394 | $20,337 | $0 | $99,731 | $99,731 |
| 2008 | $80,349 | $34,389 | $0 | $114,738 | $114,738 |
| 2007 | $34,882 | $70,821 | $0 | $105,703 | $105,703 |
Deed and Sales History
| 1 | 09/05/2025 | PRD | Personal Representatives Deed | AYNES, JOHN W | AYNES JTWROS, JOHN D. | | | $0.00 | 64732 | 4590636 |
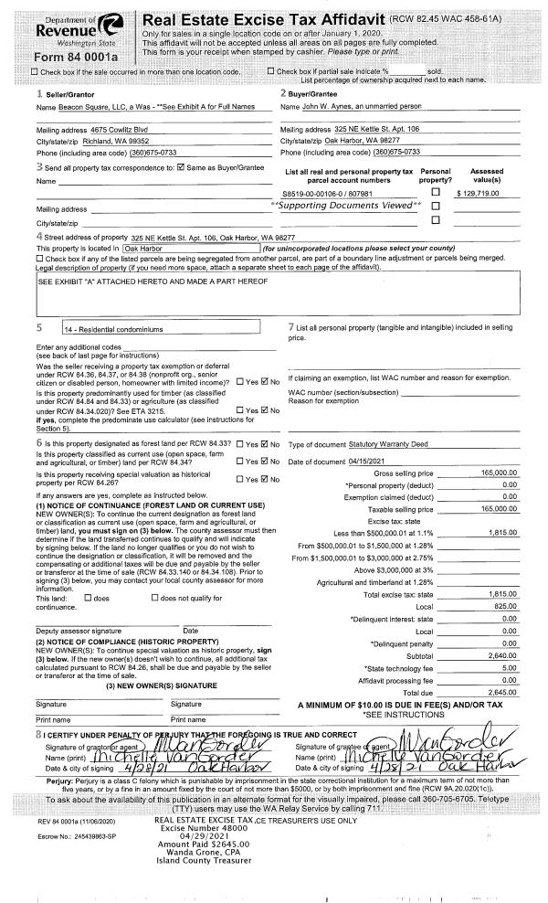
| 2 | 04/15/2021 | WD | Warranty Deed | BEACON SQUARE, LLC | AYNES, JOHN W | | | $165,000.00 | 48000 | 4517770 |
| 3 | 11/21/2016 | CHGOFIDENT | DNU - Change In Identity | HUMMER, JAMES H | BEACON SQUARE, LLC | | | $0.00 | 27017 | 4411913 |
| 4 | 09/08/2016 | WD | Warranty Deed | ISLANDER ENTERPRISES LLC | HUMMER, JAMES H | | | $412,000.00 | 26343 | 4408305 |
|   | |
| 5 | 01/20/2016 | NAMECHG | DNU - Name Change Order | ISLANDER ENTERPRISES LLC | CAPRI COURT CONDOMINUM ASSOCIATION | | | | 87317 | 4200359 |
| 6 | 01/01/1900 | OTHER | Other - Misc. Documents | Unknown | ISLANDER ENTERPRISES LLC, | | | $0.00 | 0 | 0 |
Payout Agreement
| No payout information available.. |