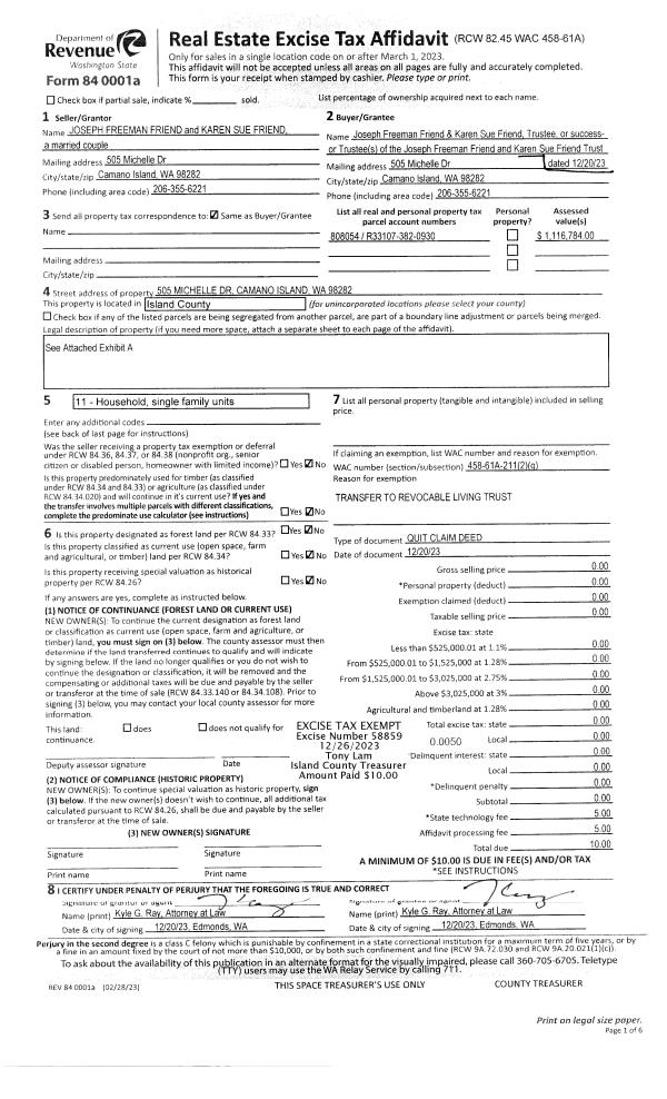
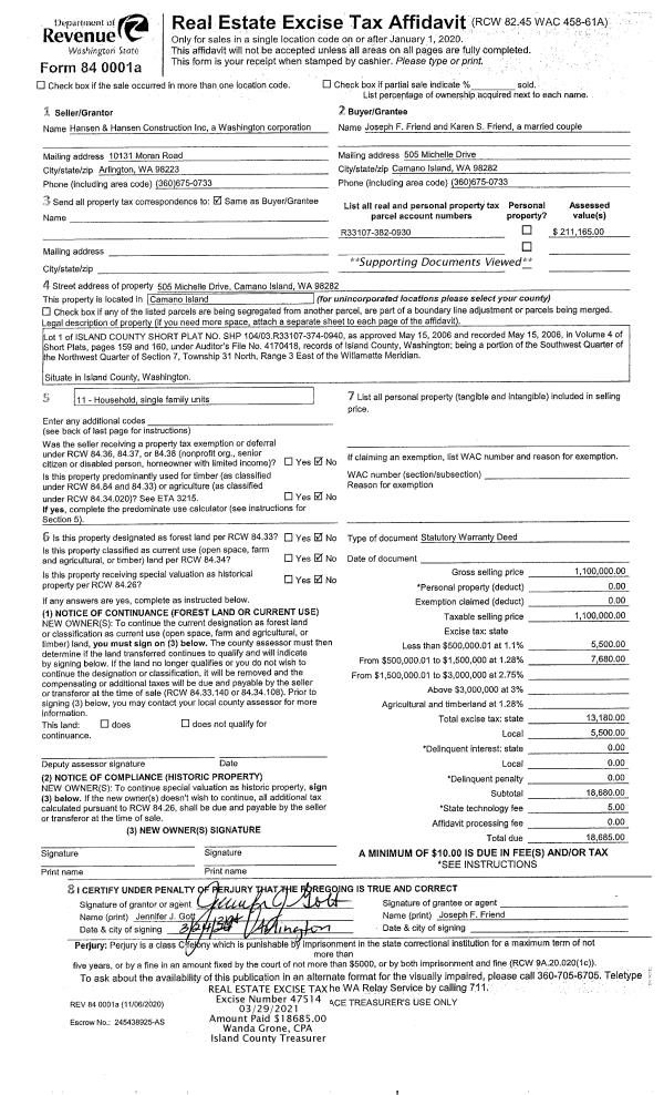
Property
Account |
| Property ID: | 808054 | Abbreviated Legal Description: | LOT 1 SP 104-03.33107.374-0940 V4 SP P 159 & 160 AF# 4170418 |
| Geographic ID: | R33107-382-0930 | Agent Code: | |
| Type: | Real | | |
| Tax Area: | 510 - APPRAISER-Stan/Cam Schl Dist, improved & 1 acre or less | Land Use Code | 11 |
| Open Space: | N | DFL | N |
| Historic Property: | N | Remodel Property: | N |
| Multi-Family Redevelopment: | N | | |
| Township: | 31 | Section: | 07 |
| Range: | R3 |
Location |
| Address: | 505 MICHELLE DR CAMANO ISLAND, WA 98282 | Mapsco: | |
| Neighborhood: | Cycle 5 | Map ID: | 923 |
| Neighborhood CD: | 5 |
Owner |
| Name: | FRIEND TTEE, JOSEPH FREEMAN | Owner ID: | 311032 |
| Mailing Address: | KAREN SUE FRIEND TTEE 505 MICHELLE DR CAMANO ISLAND, WA 98282 | % Ownership: | 100.0000000000% |
| | | Exemptions: | |
Taxes and Assessment Details
Values
| (+) Improvement Homesite Value: | + | $0 | |
| (+) Improvement Non-Homesite Value: | + | $821,571 | |
| (+) Land Homesite Value: | + | $0 | |
| (+) Land Non-Homesite Value: | + | $300,000 | |
| (+) Curr Use (HS): | + | $0 | $0 |
| (+) Curr Use (NHS): | + | $0 | $0 |
| | | -------------------------- | |
| (=) Market Value: | = | $1,121,571 | |
| (–) Productivity Loss: | – | $0 | |
| | | -------------------------- | |
| (=) Subtotal: | = | $1,121,571 | |
| (+) Senior Appraised Value: | + | $0 | |
| (+) Non-Senior Appraised Value: | + | $1,121,571 | |
| | | -------------------------- | |
| (=) Total Appraised Value: | = | $1,121,571 | |
| (–) Senior Exemption Loss: | – | $0 | |
| (–) Exemption Loss: | – | $0 | |
| | | -------------------------- | |
| (=) Taxable Value: | = | $1,121,571 | |
Taxing Jurisdiction
| Owner: | FRIEND TTEE, JOSEPH FREEMAN | | |
| % Ownership: | 100.0000000000% | | |
| Total Value: | $1,121,571 | | |
| Tax Area: | 510 - APPRAISER-Stan/Cam Schl Dist, improved & 1 acre or less |
| CF | Conservation Futures | 0.0313996660 | $1,121,571 | $1,121,571 | $35.22 | | |
| EMS1 | Fire & Rescue Dist #1 Camano GEN (EMS) | 0.4998471806 | $1,121,571 | $1,121,571 | $560.61 | | |
| FIRE1 | Fire & Rescue Dist #1 Camano GEN | 1.2496603404 | $1,121,571 | $1,121,571 | $1,401.58 | | |
| FIRE1BOND | Fire & Rescue Dist #1 Camano BOND | 0.1630371212 | $1,121,571 | $1,121,571 | $182.86 | | |
| CE | County Current Expense | 0.3674210519 | $1,121,571 | $1,121,571 | $412.09 | | |
| CR | County Roads | 0.4614296361 | $1,121,571 | $1,121,571 | $517.53 | | |
| LIB | Library Sno-Isle GEN | 0.3039084203 | $1,121,571 | $1,121,571 | $340.85 | | |
| SCH205_401 | School 205-401 Enrichment | 1.3697998934 | $1,121,571 | $1,121,571 | $1,536.33 | | |
| SCH205BOND | School 205-401 BOND | 0.9354199323 | $1,121,571 | $1,121,571 | $1,049.14 | | |
| ST | State School | 1.4761226122 | $1,121,571 | $1,121,571 | $1,655.58 | | |
| ST2 | State School Part 2 | 0.7953803475 | $1,121,571 | $1,121,571 | $892.08 | | |
| | Total Tax Rate: | 7.6534262019 | | | | | |
| | | | | Taxes w/Current Exemptions: | $8,583.87 | | |
| | | | | Taxes w/o Exemptions: | $8,583.87 | | |
Improvement / Building
| Improvement #1: | RESIDENTIAL | State Code: | Y | 4056.6 sqft | Value: | $821,571 |
| Bathrooms: | 2.5 | Bedrooms: | 3 | | Ceiling: | DRYWALL PAINTED | Cooling: | HEAT PUMP/CONV/V | | Exterior Wall/Cover: | CEMENT FIBER | Floor Covering: | HARDWOOD 100% | | Floor Structure: | WOOD W/SUBFLOOR | Foundation: | CONCRETE | | Interior Finish: | DRYWALL PAINT | Plumbing Fixture Cnt: | 14 | | Roof Slope: | 4" IN 12" | Roof Structure/Cover: | CJ ASPHALT |
|
| | Type | Description | Class CD | Sub Class CD | Year Built | Area |
| | BAS | BASE/MAIN FLOOR | 5 | 0 | 2021 | 2920.2 |
| | UTY | STORAGE/UTILITY | 5 | 0 | 2021 | 268.5 |
| | BGR | BASEMENT GARAGE | 5 | 0 | 2021 | 637.5 |
| | DWN | DOWNSTAIRS LIVING AREA | 5 | 0 | 2021 | 1136.4 |
| | OP4 | OPEN PORCH W/CEILING-ROOF | 5 | 0 | 2021 | 93.0 |
Sketch
Property Image
Land
| 1 | 16 | AC (00.51-01.00) | 0.9300 | 40510.80 | 0.00 | 0.00 | 1.00 | $300,000 | $0 |
Roll Value History
| 2026 | N/A | N/A | N/A | N/A | N/A |
| 2025 | $821,571 | $300,000 | $0 | $1,121,571 | $1,121,571 |
| 2024 | $828,090 | $290,000 | $0 | $1,118,090 | $1,118,090 |
| 2023 | $836,784 | $280,000 | $0 | $1,116,784 | $1,116,784 |
| 2022 | $771,490 | $260,000 | $0 | $1,031,490 | $1,031,490 |
| 2021 | $684,538 | $220,000 | $0 | $904,538 | $904,538 |
| 2020 | $61,165 | $150,000 | $0 | $211,165 | $211,165 |
| 2019 | $4,000 | $110,000 | $0 | $114,000 | $114,000 |
| 2018 | $163,958 | $150,000 | $0 | $313,958 | $313,958 |
| 2017 | $323,917 | $150,000 | $0 | $473,917 | $473,917 |
| 2016 | $327,440 | $135,000 | $0 | $462,440 | $462,440 |
| 2015 | $341,250 | $150,000 | $0 | $491,250 | $491,250 |
| 2014 | $344,709 | $150,000 | $0 | $494,709 | $494,709 |
| 2013 | $348,171 | $150,000 | $0 | $498,171 | $498,171 |
| 2012 | $351,634 | $140,000 | $0 | $491,634 | $491,634 |
| 2011 | $355,093 | $175,000 | $0 | $530,093 | $530,093 |
| 2010 | $399,607 | $175,000 | $0 | $574,607 | $574,607 |
| 2009 | $415,738 | $215,000 | $0 | $630,738 | $630,738 |
| 2008 | $424,793 | $215,000 | $0 | $639,793 | $639,793 |
| 2007 | $426,086 | $180,400 | $0 | $606,486 | $606,486 |
Deed and Sales History
| 1 | 12/20/2023 | QCD | Quit Claim Deed | FRIEND, JOSEPH F | FRIEND TTEE, JOSEPH FREEMAN | | | $0.00 | 58859 | 4567981 |
| 2 | 03/26/2021 | WD | Warranty Deed | HANSEN & HANSEN CONSTRUCTION, INC | FRIEND, JOSEPH F | | | $1,100,000.00 | 47514 | 4514834 |
| 3 | 02/12/2020 | WD | Warranty Deed | PERILLO TRUSTEE, TED | HANSEN & HANSEN CONSTRUCTION, INC | | | $190,000.00 | 42084 | 4481214 |
| 4 | 02/24/2017 | WD | Warranty Deed | VIEW SUN INVESTMENTS, LLC | PERILLO TRUSTEE, TED | | | $474,000.00 | 28243 | 4417920 |
| 5 | 03/16/2016 | BARGSLD | Bargain And Sale Deed | WILMINGTON TRUST | VIEW SUN INVESTMENTS, LLC | | | $287,000.00 | 23664 | 4396394 |
| 6 | 05/08/2015 | TRUSTEED | Trustee's Deed | ROSS, BRYAN | WILMINGTON TRUST | | | $0.00 | 19530 | 4378335 |
| 7 | 01/01/1900 | OTHER | Other - Misc. Documents | Unknown | ROSS, BRYAN | | | $0.00 | 0 | 0 |
Payout Agreement
| No payout information available.. |