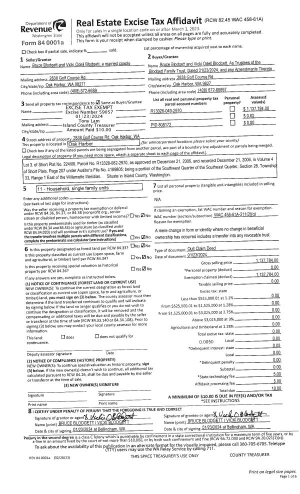
Property
Account |
| Property ID: | 808172 | Abbreviated Legal Description: | LOT 3 SP 224-06.13328-082-2970 V4 SP P207 & 208 AF# 4189805 |
| Geographic ID: | R13328-049-2970 | Agent Code: | |
| Type: | Real | | |
| Tax Area: | 112 - APPRAISER-OH Schl Dist, outside OH, improved, greater than 1 acre | Land Use Code | 11 |
| Open Space: | N | DFL | N |
| Historic Property: | N | Remodel Property: | N |
| Multi-Family Redevelopment: | N | | |
| Township: | 33 | Section: | 28 |
| Range: | R1 |
Location |
| Address: | | Mapsco: | |
| Neighborhood: | Cycle 6 | Map ID: | 239 |
| Neighborhood CD: | 6 |
Owner |
| Name: | BOLDGETT TTEE, BRUCE | Owner ID: | 311247 |
| Mailing Address: | VICKI ODELL BLODGETT TTEE 2838 GOLD COURSE RD OAK HARBOR, WA 98277 | % Ownership: | 100.0000000000% |
| | | Exemptions: | |
Taxes and Assessment Details
Values
| (+) Improvement Homesite Value: | + | $0 | |
| (+) Improvement Non-Homesite Value: | + | $816,135 | |
| (+) Land Homesite Value: | + | $0 | |
| (+) Land Non-Homesite Value: | + | $340,000 | |
| (+) Curr Use (HS): | + | $0 | $0 |
| (+) Curr Use (NHS): | + | $0 | $0 |
| | | -------------------------- | |
| (=) Market Value: | = | $1,156,135 | |
| (–) Productivity Loss: | – | $0 | |
| | | -------------------------- | |
| (=) Subtotal: | = | $1,156,135 | |
| (+) Senior Appraised Value: | + | $0 | |
| (+) Non-Senior Appraised Value: | + | $1,156,135 | |
| | | -------------------------- | |
| (=) Total Appraised Value: | = | $1,156,135 | |
| (–) Senior Exemption Loss: | – | $0 | |
| (–) Exemption Loss: | – | $0 | |
| | | -------------------------- | |
| (=) Taxable Value: | = | $1,156,135 | |
Taxing Jurisdiction
| Owner: | BOLDGETT TTEE, BRUCE | | |
| % Ownership: | 100.0000000000% | | |
| Total Value: | $1,156,135 | | |
| Tax Area: | 112 - APPRAISER-OH Schl Dist, outside OH, improved, greater than 1 acre |
| CF | Conservation Futures | 0.0313996660 | $1,156,135 | $1,156,135 | $36.30 | | |
| CEM1 | Cemetery #1 | 0.0040018856 | $1,156,135 | $1,156,135 | $4.63 | | |
| FIRE2 | Fire & Rescue Dist #2 N Whidbey GEN | 0.5381486274 | $1,156,135 | $1,156,135 | $622.17 | | |
| HOBOND | Hospital BOND | 0.1893405597 | $1,156,135 | $1,156,135 | $218.90 | | |
| HOGEN | Hospital GEN | 0.3848777722 | $1,156,135 | $1,156,135 | $444.97 | | |
| CE | County Current Expense | 0.3674210519 | $1,156,135 | $1,156,135 | $424.79 | | |
| CR | County Roads | 0.4614296361 | $1,156,135 | $1,156,135 | $533.47 | | |
| ISLANDEMS | Hospital GEN (EMS) | 0.4952018576 | $1,156,135 | $1,156,135 | $572.52 | | |
| LIB | Library Sno-Isle GEN | 0.3039084203 | $1,156,135 | $1,156,135 | $351.36 | | |
| NWHIDPRMT | P & R N Whidbey GEN | 0.1990272349 | $1,156,135 | $1,156,135 | $230.10 | | |
| SCH201MO | School 201 Enrichment | 2.3851112745 | $1,156,135 | $1,156,135 | $2,757.51 | | |
| ST | State School | 1.4761226122 | $1,156,135 | $1,156,135 | $1,706.60 | | |
| ST2 | State School Part 2 | 0.7953803475 | $1,156,135 | $1,156,135 | $919.57 | | |
| | Total Tax Rate: | 7.6313709459 | | | | | |
| | | | | Taxes w/Current Exemptions: | $8,822.89 | | |
| | | | | Taxes w/o Exemptions: | $8,822.89 | | |
Improvement / Building
| Improvement #1: | RESIDENTIAL | State Code: | Y | 2468.4 sqft | Value: | $816,135 |
| Bathrooms: | 2.5 | Bedrooms: | 3 | | Ceiling: | BEAM PAINTED | Exterior Wall/Cover: | CEMENT FIBER | | Floor Covering: | HARDWOOD/CARP 80-20 | Floor Structure: | WOOD W/SUBFLOOR | | Foundation: | CONCRETE | Heating: | FHA GAS | | Interior Finish: | DRYWALL PAINT | Plumbing Fixture Cnt: | 13 | | Roof Slope: | 10" IN 12" | Roof Structure/Cover: | BEAM ASPHALT |
|
| | Type | Description | Class CD | Sub Class CD | Year Built | Area |
| | BAS | BASE/MAIN FLOOR | 5 | 0 | 2006 | 1133.0 |
| | BAW | BALCONY WOOD RAIL | 5 | 0 | 2006 | 200.5 |
| | BIG | BUILT IN GARAGE | 5 | 0 | 2006 | 549.2 |
| | UPS | UPPER STORY | 5 | 0 | 2006 | 1335.4 |
| | OP4 | OPEN PORCH W/CEILING-ROOF | 5 | 0 | 2006 | 728.4 |
| | DGR | DETACHED GARAGE | 5 | 0 | 2006 | 1380.0 |
| | CPD | OPEN CARPORT DIRT FLOOR | 5 | 0 | 2006 | 442.0 |
Sketch
Property Image
Land
| 1 | 32 | AC (03.01-09.99) | 5.0900 | 0.00 | 0.00 | 0.00 | 1.00 | $340,000 | $0 |
Roll Value History
| 2026 | N/A | N/A | N/A | N/A | N/A |
| 2025 | $816,135 | $340,000 | $0 | $1,156,135 | $1,156,135 |
| 2024 | $811,242 | $320,000 | $0 | $1,131,242 | $1,131,242 |
| 2023 | $817,784 | $320,000 | $0 | $1,137,784 | $1,137,784 |
| 2022 | $722,750 | $300,000 | $0 | $1,022,750 | $1,022,750 |
| 2021 | $633,630 | $200,000 | $0 | $833,630 | $833,630 |
| 2020 | $614,883 | $160,000 | $0 | $774,883 | $774,883 |
| 2019 | $494,272 | $220,000 | $0 | $714,272 | $714,272 |
| 2018 | $443,670 | $200,000 | $0 | $643,670 | $643,670 |
| 2017 | $378,434 | $165,000 | $0 | $543,434 | $543,434 |
| 2016 | $353,135 | $160,000 | $0 | $513,135 | $513,135 |
| 2015 | $356,469 | $200,000 | $0 | $556,469 | $556,469 |
| 2014 | $359,804 | $114,525 | $0 | $474,329 | $474,329 |
| 2013 | $363,137 | $114,525 | $0 | $477,662 | $477,662 |
| 2012 | $366,469 | $114,525 | $0 | $480,994 | $480,994 |
| 2011 | $369,805 | $127,250 | $0 | $497,055 | $497,055 |
| 2010 | $443,372 | $162,880 | $0 | $606,252 | $606,252 |
| 2009 | $460,506 | $188,330 | $0 | $648,836 | $648,836 |
| 2008 | $427,000 | $183,000 | $0 | $610,000 | $610,000 |
Deed and Sales History
| 1 | 01/23/2024 | QCD | Quit Claim Deed | BLODGETT, BRUCE | BOLDGETT TTEE, BRUCE | | | $0.00 | 59057 | 4568750 |
| 2 | 04/27/2018 | WD | Warranty Deed | COLLIER, MARK A | BLODGETT, BRUCE | | | $667,000.00 | 33873 | 4443447 |
| 3 | 02/09/2007 | WD | Warranty Deed | SULLIVAN IV, RAYMOND P | COLLIER, MARK A | | | $595,000.00 | 70524 | 4194379 |
| 4 | 02/12/2007 | ESTSEPPROP | Establish Separate Property | SULLIVAN IV, RAYMOND P | SULLIVAN IV, RAYMOND P | | | $0.00 | 70523 | 4194378 |
| 5 | 01/01/1900 | OTHER | Other - Misc. Documents | Unknown | SULLIVAN IV, RAYMOND P | | | $0.00 | 0 | 0 |
Payout Agreement
| No payout information available.. |