Property
Account |
| Property ID: | 808291 | Abbreviated Legal Description: | 4.7600 Acres ins Section 02s Township 29s Range R3s LOT A LOT COMB AF#4523490;s |
| Geographic ID: | R32902-269-4120 | Agent Code: | |
| Type: | Real | | |
| Tax Area: | 712 - APPRAISER-S Whid Schl Dist, outside Langley, improved, greater than 1 acre | Land Use Code | 11 |
| Open Space: | N | DFL | N |
| Historic Property: | N | Remodel Property: | N |
| Multi-Family Redevelopment: | N | | |
| Township: | 29 | Section: | 02 |
| Range: | R3 |
Location |
| Address: | | Mapsco: | |
| Neighborhood: | Cycle 4 | Map ID: | 722 |
| Neighborhood CD: | 4 |
Owner |
| Name: | BECK, THOMAS E | Owner ID: | 292708 |
| Mailing Address: | JANET E COLLI 767 ARBOR DR COUPEVILLE, WA 98239 | % Ownership: | 100.0000000000% |
| | | Exemptions: | |
Taxes and Assessment Details
Values
| (+) Improvement Homesite Value: | + | $0 | |
| (+) Improvement Non-Homesite Value: | + | $82,074 | |
| (+) Land Homesite Value: | + | $0 | |
| (+) Land Non-Homesite Value: | + | $295,000 | |
| (+) Curr Use (HS): | + | $0 | $0 |
| (+) Curr Use (NHS): | + | $0 | $0 |
| | | -------------------------- | |
| (=) Market Value: | = | $377,074 | |
| (–) Productivity Loss: | – | $0 | |
| | | -------------------------- | |
| (=) Subtotal: | = | $377,074 | |
| (+) Senior Appraised Value: | + | $0 | |
| (+) Non-Senior Appraised Value: | + | $377,074 | |
| | | -------------------------- | |
| (=) Total Appraised Value: | = | $377,074 | |
| (–) Senior Exemption Loss: | – | $0 | |
| (–) Exemption Loss: | – | $0 | |
| | | -------------------------- | |
| (=) Taxable Value: | = | $377,074 | |
Taxing Jurisdiction
| Owner: | BECK, THOMAS E | | |
| % Ownership: | 100.0000000000% | | |
| Total Value: | $377,074 | | |
| Tax Area: | 712 - APPRAISER-S Whid Schl Dist, outside Langley, improved, greater than 1 acre |
| CF | Conservation Futures | 0.0313996660 | $377,074 | $377,074 | $11.84 | | |
| FIRE3 | Fire & Rescue Dist #3 S Whidbey GEN | 1.2130821753 | $377,074 | $377,074 | $457.42 | | |
| HOBOND | Hospital BOND | 0.1893405597 | $377,074 | $377,074 | $71.40 | | |
| HOGEN | Hospital GEN | 0.3848777722 | $377,074 | $377,074 | $145.13 | | |
| CE | County Current Expense | 0.3674210519 | $377,074 | $377,074 | $138.54 | | |
| CR | County Roads | 0.4614296361 | $377,074 | $377,074 | $173.99 | | |
| ISLANDEMS | Hospital GEN (EMS) | 0.4952018576 | $377,074 | $377,074 | $186.73 | | |
| LIB | Library Sno-Isle GEN | 0.3039084203 | $377,074 | $377,074 | $114.60 | | |
| PORTWHID | Port of S Whidbey GEN | 0.1086004714 | $377,074 | $377,074 | $40.95 | | |
| SCH206BOND | School 206 BOND | 0.5960237832 | $377,074 | $377,074 | $224.75 | | |
| SCH206CAP | School 206 CP | 0.3066144020 | $377,074 | $377,074 | $115.62 | | |
| SCH206MO | School 206 Enrichment | 0.4808755445 | $377,074 | $377,074 | $181.33 | | |
| ST | State School | 1.4761226122 | $377,074 | $377,074 | $556.61 | | |
| ST2 | State School Part 2 | 0.7953803475 | $377,074 | $377,074 | $299.92 | | |
| SWHIDPRBD | P & R S Whidbey BOND | 0.0144185398 | $377,074 | $377,074 | $5.44 | | |
| SWHIDPRBD3 | P & R S Whidbey BOND3 | 0.1483535547 | $377,074 | $377,074 | $55.94 | | |
| SWHIDPRMT | P & R S Whidbey GEN | 0.4600000000 | $377,074 | $377,074 | $173.45 | | |
| | Total Tax Rate: | 7.8330503944 | | | | | |
| | | | | Taxes w/Current Exemptions: | $2,953.66 | | |
| | | | | Taxes w/o Exemptions: | $2,953.66 | | |
Improvement / Building
| Improvement #1: | RESIDENTIAL | State Code: | Y | 1408.0 sqft | Value: | $82,074 |
| Bathrooms: | 2.5 | Bedrooms: | 2 | | Ceiling: | (NONE) | Exterior Wall/Cover: | (NONE) | | Floor Covering: | (NONE) | Floor Structure: | WOOD W/SUBFLOOR | | Foundation: | CONCRETE | Heating: | (NONE) | | Interior Finish: | (NONE) | Plumbing Fixture Cnt: | 11 | | Roof Slope: | 6" IN 12" | Roof Structure/Cover: | CJ METAL |
|
| | Type | Description | Class CD | Sub Class CD | Year Built | Area |
| | BAS | BASE/MAIN FLOOR | 3 | 0 | 2024 | 704.0 |
| | UPS | UPPER STORY | 3 | 0 | 2024 | 704.0 |
| | OP1 | OPEN PORCH SLAB | 3 | 0 | 2024 | 14.0 |
| | OWP | OPEN WOOD PORCH W/STEPS | 3 | 0 | 2024 | 507.9 |
Sketch
Property Image
Land
| 1 | HS | HOMESITE | 1.0000 | 43560.00 | 0.00 | 0.00 | 1.00 | $185,000 | $0 |
| 2 | 91 | UNDEVELOPED LAND-METES AND BOUNDS | 3.7600 | 163785.60 | 0.00 | 0.00 | 1.00 | $110,000 | $0 |
Roll Value History
| 2026 | N/A | N/A | N/A | N/A | N/A |
| 2025 | $82,074 | $295,000 | $0 | $377,074 | $377,074 |
| 2024 | $13,614 | $230,000 | $0 | $243,614 | $243,614 |
| 2023 | $0 | $180,000 | $0 | $180,000 | $180,000 |
| 2022 | $0 | $170,000 | $0 | $170,000 | $170,000 |
| 2021 | $0 | $150,000 | $0 | $150,000 | $150,000 |
| 2020 | $0 | $150,000 | $0 | $150,000 | $150,000 |
| 2019 | $0 | $135,000 | $0 | $135,000 | $135,000 |
| 2018 | $0 | $130,000 | $0 | $130,000 | $130,000 |
| 2017 | $0 | $130,000 | $0 | $130,000 | $130,000 |
| 2016 | $0 | $130,000 | $0 | $130,000 | $130,000 |
| 2015 | $0 | $100,000 | $0 | $100,000 | $100,000 |
| 2014 | $0 | $112,000 | $0 | $112,000 | $112,000 |
| 2013 | $0 | $112,000 | $0 | $112,000 | $112,000 |
| 2012 | $0 | $112,000 | $0 | $112,000 | $112,000 |
| 2011 | $0 | $112,000 | $0 | $112,000 | $112,000 |
| 2010 | $0 | $112,000 | $0 | $112,000 | $112,000 |
| 2009 | $0 | $152,320 | $0 | $152,320 | $152,320 |
| 2008 | $0 | $134,400 | $0 | $134,400 | $134,400 |
| 2007 | $0 | $0 | $0 | $233,165 | $233,165 |
Deed and Sales History
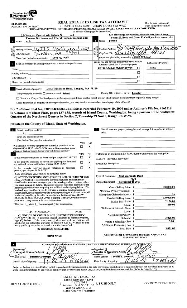
| 1 | 11/20/2019 | WD | Warranty Deed | CARSON, THOMAS G | BECK, THOMAS E | | | $170,000.00 | 41248 | 4476383 |
| 2 | 08/10/2006 | WD | Warranty Deed | CARSON, HAROLD C | CARSON, THOMAS G | | | $111,000.00 | 64468 | 4184508 |
| 3 | 01/01/1900 | OTHER | Other - Misc. Documents | Unknown | CARSON, HAROLD C | | | $0.00 | 0 | 0 |
Payout Agreement
| No payout information available.. |