Property
Account |
| Property ID: | 808292 | Abbreviated Legal Description: | LOT 3 SP 30-05.32902.273-3960 V4 SP P137 & 138 AF#4162118 |
| Geographic ID: | R32902-255-3890 | Agent Code: | |
| Type: | Real | | |
| Tax Area: | 719 - APPRAISER-S Whid Schl Dist, outside Langley, vacant & 50 acres or less | Land Use Code | 91 |
| Open Space: | N | DFL | N |
| Historic Property: | N | Remodel Property: | N |
| Multi-Family Redevelopment: | N | | |
| Township: | 29 | Section: | 02 |
| Range: | R3 |
Location |
| Address: | | Mapsco: | |
| Neighborhood: | Cycle 4 | Map ID: | 722 |
| Neighborhood CD: | 4 |
Owner |
| Name: | ADRAGNA, BRADFORD MICHAEL | Owner ID: | 293180 |
| Mailing Address: | CHRISTIE JEAN ADRAGNA 3894 MAVERICK CT CASTLE ROCK, CO 80104 | % Ownership: | 100.0000000000% |
| | | Exemptions: | |
Taxes and Assessment Details
Values
| (+) Improvement Homesite Value: | + | $0 | |
| (+) Improvement Non-Homesite Value: | + | $0 | |
| (+) Land Homesite Value: | + | $0 | |
| (+) Land Non-Homesite Value: | + | $110,000 | |
| (+) Curr Use (HS): | + | $0 | $0 |
| (+) Curr Use (NHS): | + | $0 | $0 |
| | | -------------------------- | |
| (=) Market Value: | = | $110,000 | |
| (–) Productivity Loss: | – | $0 | |
| | | -------------------------- | |
| (=) Subtotal: | = | $110,000 | |
| (+) Senior Appraised Value: | + | $0 | |
| (+) Non-Senior Appraised Value: | + | $110,000 | |
| | | -------------------------- | |
| (=) Total Appraised Value: | = | $110,000 | |
| (–) Senior Exemption Loss: | – | $0 | |
| (–) Exemption Loss: | – | $0 | |
| | | -------------------------- | |
| (=) Taxable Value: | = | $110,000 | |
Taxing Jurisdiction
| Owner: | ADRAGNA, BRADFORD MICHAEL | | |
| % Ownership: | 100.0000000000% | | |
| Total Value: | $110,000 | | |
| Tax Area: | 719 - APPRAISER-S Whid Schl Dist, outside Langley, vacant & 50 acres or less |
| CF | Conservation Futures | 0.0313996660 | $110,000 | $110,000 | $3.45 | | |
| HOBOND | Hospital BOND | 0.1893405597 | $110,000 | $110,000 | $20.83 | | |
| HOGEN | Hospital GEN | 0.3848777722 | $110,000 | $110,000 | $42.34 | | |
| CE | County Current Expense | 0.3674210519 | $110,000 | $110,000 | $40.42 | | |
| CR | County Roads | 0.4614296361 | $110,000 | $110,000 | $50.76 | | |
| ISLANDEMS | Hospital GEN (EMS) | 0.4952018576 | $110,000 | $110,000 | $54.47 | | |
| LIB | Library Sno-Isle GEN | 0.3039084203 | $110,000 | $110,000 | $33.43 | | |
| PORTWHID | Port of S Whidbey GEN | 0.1086004714 | $110,000 | $110,000 | $11.95 | | |
| SCH206BOND | School 206 BOND | 0.5960237832 | $110,000 | $110,000 | $65.56 | | |
| SCH206CAP | School 206 CP | 0.3066144020 | $110,000 | $110,000 | $33.73 | | |
| SCH206MO | School 206 Enrichment | 0.4808755445 | $110,000 | $110,000 | $52.90 | | |
| ST | State School | 1.4761226122 | $110,000 | $110,000 | $162.37 | | |
| ST2 | State School Part 2 | 0.7953803475 | $110,000 | $110,000 | $87.49 | | |
| SWHIDPRBD | P & R S Whidbey BOND | 0.0144185398 | $110,000 | $110,000 | $1.59 | | |
| SWHIDPRBD3 | P & R S Whidbey BOND3 | 0.1483535547 | $110,000 | $110,000 | $16.32 | | |
| SWHIDPRMT | P & R S Whidbey GEN | 0.4600000000 | $110,000 | $110,000 | $50.60 | | |
| | Total Tax Rate: | 6.6199682191 | | | | | |
| | | | | Taxes w/Current Exemptions: | $728.21 | | |
| | | | | Taxes w/o Exemptions: | $728.21 | | |
Improvement / Building
Sketch
| No sketches available for this property. |
Property Image
Land
| 1 | 16 | AC (00.51-01.00) | 0.0000 | 0.00 | 0.00 | 0.00 | 1.00 | $110,000 | $0 |
Roll Value History
| 2026 | N/A | N/A | N/A | N/A | N/A |
| 2025 | $0 | $110,000 | $0 | $110,000 | $110,000 |
| 2024 | $0 | $110,000 | $0 | $110,000 | $110,000 |
| 2023 | $0 | $110,000 | $0 | $110,000 | $110,000 |
| 2022 | $0 | $110,000 | $0 | $110,000 | $110,000 |
| 2021 | $0 | $100,000 | $0 | $100,000 | $100,000 |
| 2020 | $0 | $100,000 | $0 | $100,000 | $100,000 |
| 2019 | $0 | $100,000 | $0 | $100,000 | $100,000 |
| 2018 | $0 | $100,000 | $0 | $100,000 | $100,000 |
| 2017 | $0 | $100,000 | $0 | $100,000 | $100,000 |
| 2016 | $0 | $100,000 | $0 | $100,000 | $100,000 |
| 2015 | $0 | $85,000 | $0 | $85,000 | $85,000 |
| 2014 | $0 | $65,000 | $0 | $65,000 | $65,000 |
| 2013 | $0 | $65,000 | $0 | $65,000 | $65,000 |
| 2012 | $0 | $65,000 | $0 | $65,000 | $65,000 |
| 2011 | $0 | $65,000 | $0 | $65,000 | $65,000 |
| 2010 | $0 | $65,000 | $0 | $65,000 | $65,000 |
| 2009 | $0 | $80,000 | $0 | $80,000 | $80,000 |
| 2008 | $0 | $32,000 | $0 | $32,000 | $32,000 |
| 2007 | $0 | $0 | $0 | $52,046 | $52,046 |
Deed and Sales History
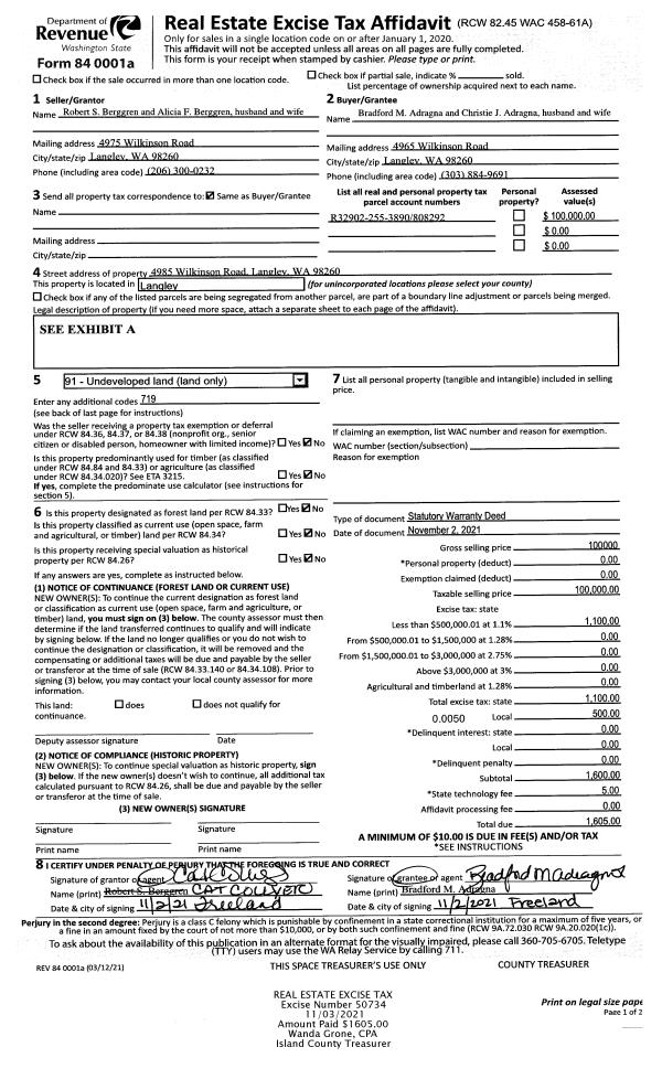
| 1 | 11/02/2021 | WD | Warranty Deed | BERGGREN, ROBERT S | ADRAGNA, BRADFORD MICHAEL | | | $100,000.00 | 50734 | 4532976 |
| 2 | 03/13/2006 | WD | Warranty Deed | CARSON, HAROLD C | BERGGREN, ROBERT S | | | $32,000.00 | 61073 | 4164731 |
| 3 | 01/01/1900 | OTHER | Other - Misc. Documents | Unknown | CARSON, HAROLD C | | | $0.00 | 0 | 0 |
Payout Agreement
| No payout information available.. |