| 1 | 08/06/2025 | EZ | Easement | UNITED STATES OF AMERICA | WHIDBEY CAMANO LAND TRUST | | | $628,260.00 | 64524 | 4589780 |
|   | |
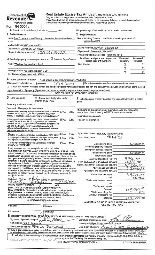
| 2 | 08/14/2025 | WD | Warranty Deed | ISAACSON, PAUL E | WHIDBEY CAMANO LAND TRUST | | | $4,155,000.00 | 64523 | 4589753 |
|   | |
| 3 | 11/21/2007 | SEG | DNU - Segregation | Unknown | ISAACSON, PAULE E | | | $0.00 | 80475 | 0 |