808309 WHIDBEY CAMANO LAND TRUST for Year 2026 - 2027

Click on a title bar to expand or collapse the information.

Property

Taxes and Assessment Details

Values

Taxing Jurisdiction

Improvement / Building

Sketch

Property Image

Land

Roll Value History

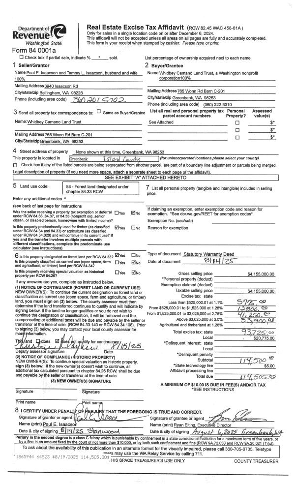
Deed and Sales History

Payout Agreement