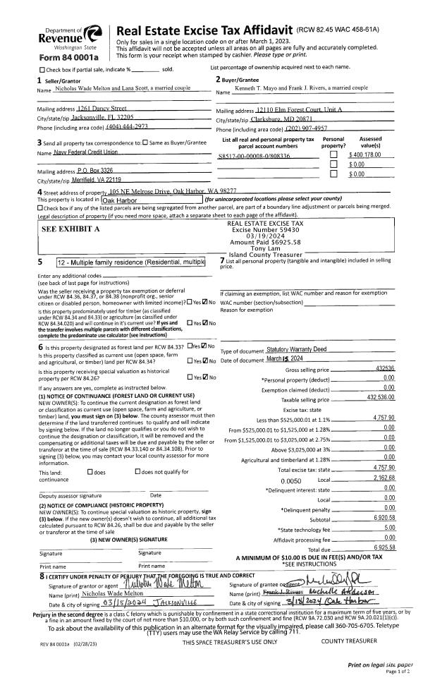
| 1 | 03/15/2024 | WD | Warranty Deed | MELTON, NICHOLAS WADE | MAYO, KENNETH T | | | $432,536.00 | 59430 | 4570367 |
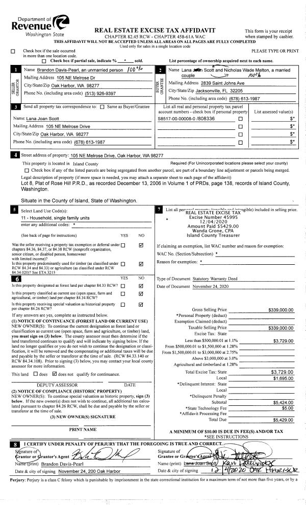
| 2 | 11/24/2020 | WD | Warranty Deed | DAVIS-PEARL, BRANDON | MELTON, NICHOLAS WADE | | | $339,000.00 | 45995 | 4504281 |
| 3 | 01/12/2018 | WD | Warranty Deed | THE SECRETARY OF HOUSING & URBAN DEVELOPMENT | DAVIS-PEARL, BRANDON | | | $225,900.00 | 32640 | 4437637 |
| 4 | 08/23/2017 | WD | Warranty Deed | GUILD MORTGAGE COMPANY | THE SECRETARY OF HOUSING & URBAN DEVELOPMENT | | | $0.00 | 30995 | 4429744 |
| 5 | 06/29/2017 | TRUSTEED | Trustee's Deed | CARPENTER, HILARY | GUILD MORTGAGE COMPANY | | | $0.00 | 30018 | 4425402 |
| 6 | 06/22/2016 | WD | Warranty Deed | ALASKA USA FEDERAL CREDIT UNION | CARPENTER, HILARY | | | $209,000.00 | 24939 | 4401868 |
| 7 | 06/15/2015 | TRUSTEED | Trustee's Deed | KOEPKE, JIM D | ALASKA USA FEDERAL CREDIT UNION | | | $0.00 | 20047 | 4380374 |
| 8 | 09/12/2013 | WD | Warranty Deed | KOEPKE, JIM D | KOEPKE, JIM D | | | $900.00 | 13501 | 4351625 |
| 9 | 09/13/2013 | WD | Warranty Deed | WALDRON CONSTRUCTION INC | KOEPKE, JIM D | | | $189,000.00 | 12788 | 4348092 |
| 10 | 12/15/2006 | WD | Warranty Deed | CASA GRANDE APARTMENTS LLC, | WALDRON CONSTRUCTION INC, | | | $68,462.00 | 65248 | 4189611 |
| 11 | 01/01/1900 | OTHER | Other - Misc. Documents | Unknown | CASA GRANDE APARTMENTS LLC, | | | $0.00 | 0 | 0 |