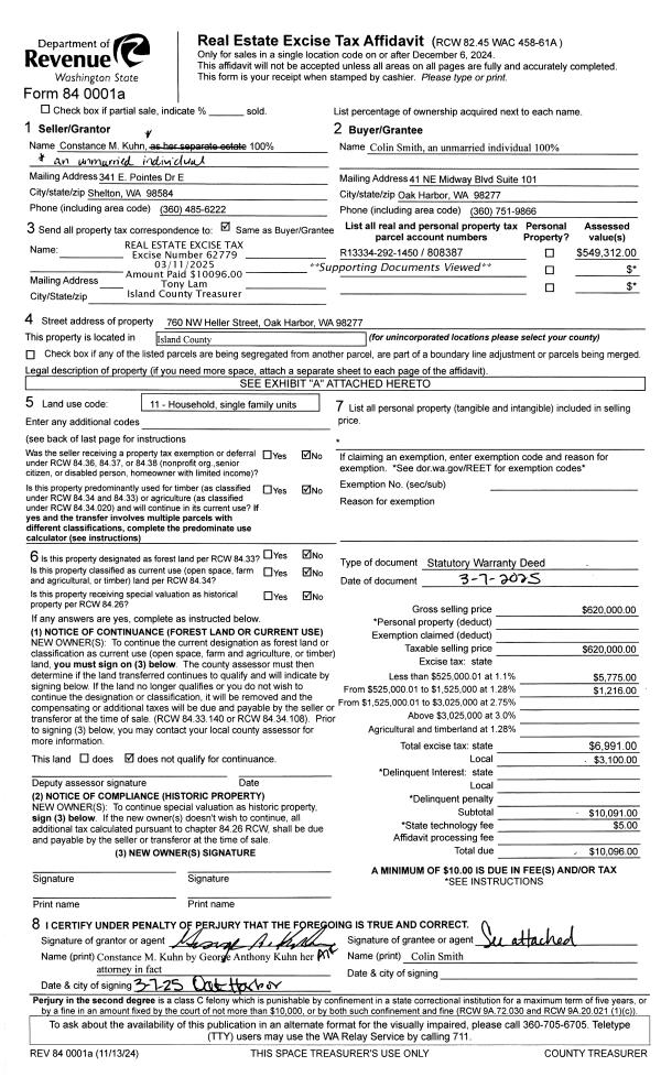
Property
Account |
| Property ID: | 808387 | Abbreviated Legal Description: | LOT 1 OH-SP 6-00003.13334.294-1550 V4 SP P185 & 186 AF# 4185083 |
| Geographic ID: | R13334-292-1450 | Agent Code: | |
| Type: | Real | | |
| Tax Area: | 100 - APPRAISER-OH Schl Dist, in OH | Land Use Code | 11 |
| Open Space: | N | DFL | N |
| Historic Property: | N | Remodel Property: | N |
| Multi-Family Redevelopment: | N | | |
| Township: | 33 | Section: | 34 |
| Range: | R1 |
Location |
| Address: | 760 NW HELLER RD ST OAK HARBOR, WA 98277 | Mapsco: | |
| Neighborhood: | Cycle 1 | Map ID: | 254 |
| Neighborhood CD: | 1 |
Owner |
| Name: | SMITH, COLIN | Owner ID: | 315779 |
| Mailing Address: | 41 NE MIDWAY BLVD #101 OAK HARBOR, WA 98277 | % Ownership: | 100.0000000000% |
| | | Exemptions: | |
Taxes and Assessment Details
Values
| (+) Improvement Homesite Value: | + | $0 | |
| (+) Improvement Non-Homesite Value: | + | $336,720 | |
| (+) Land Homesite Value: | + | $0 | |
| (+) Land Non-Homesite Value: | + | $240,000 | |
| (+) Curr Use (HS): | + | $0 | $0 |
| (+) Curr Use (NHS): | + | $0 | $0 |
| | | -------------------------- | |
| (=) Market Value: | = | $576,720 | |
| (–) Productivity Loss: | – | $0 | |
| | | -------------------------- | |
| (=) Subtotal: | = | $576,720 | |
| (+) Senior Appraised Value: | + | $0 | |
| (+) Non-Senior Appraised Value: | + | $576,720 | |
| | | -------------------------- | |
| (=) Total Appraised Value: | = | $576,720 | |
| (–) Senior Exemption Loss: | – | $0 | |
| (–) Exemption Loss: | – | $0 | |
| | | -------------------------- | |
| (=) Taxable Value: | = | $576,720 | |
Taxing Jurisdiction
| Owner: | SMITH, COLIN | | |
| % Ownership: | 100.0000000000% | | |
| Total Value: | $576,720 | | |
| Tax Area: | 100 - APPRAISER-OH Schl Dist, in OH |
| CF | Conservation Futures | 0.0313996660 | $576,720 | $576,720 | $18.11 | | |
| CEM1 | Cemetery #1 | 0.0040018856 | $576,720 | $576,720 | $2.31 | | |
| COH | City of Oak Harbor | 2.3090730572 | $576,720 | $576,720 | $1,331.69 | | |
| OAKBOND | City of Oak Harbor BOND | 0.1902260131 | $576,720 | $576,720 | $109.71 | | |
| HOBOND | Hospital BOND | 0.1893405597 | $576,720 | $576,720 | $109.20 | | |
| HOGEN | Hospital GEN | 0.3848777722 | $576,720 | $576,720 | $221.97 | | |
| CE | County Current Expense | 0.3674210519 | $576,720 | $576,720 | $211.90 | | |
| ISLANDEMS | Hospital GEN (EMS) | 0.4952018576 | $576,720 | $576,720 | $285.59 | | |
| LIB | Library Sno-Isle GEN | 0.3039084203 | $576,720 | $576,720 | $175.27 | | |
| NWHIDPRMT | P & R N Whidbey GEN | 0.1990272349 | $576,720 | $576,720 | $114.78 | | |
| SCH201MO | School 201 Enrichment | 2.3851112745 | $576,720 | $576,720 | $1,375.54 | | |
| ST | State School | 1.4761226122 | $576,720 | $576,720 | $851.31 | | |
| ST2 | State School Part 2 | 0.7953803475 | $576,720 | $576,720 | $458.71 | | |
| | Total Tax Rate: | 9.1310917527 | | | | | |
| | | | | Taxes w/Current Exemptions: | $5,266.09 | | |
| | | | | Taxes w/o Exemptions: | $5,266.09 | | |
Improvement / Building
| Improvement #1: | RESIDENTIAL | State Code: | Y | 2240.0 sqft | Value: | $336,720 |
| Bathrooms: | 2.5 | Bedrooms: | 3 | | Ceiling: | DRYWALL PAINTED | Exterior Wall/Cover: | FACE BRICK VENEER | | Floor Covering: | CARPET 100% | Floor Structure: | WOOD W/SUBFLOOR | | Foundation: | CONCRETE BLOCKS | Heating: | BASEBOARD ELECTRIC | | Interior Finish: | DRYWALL PAINT | Plumbing Fixture Cnt: | 11 | | Roof Slope: | 6" IN 12" | Roof Structure/Cover: | CJ ASPHALT |
|
| | Type | Description | Class CD | Sub Class CD | Year Built | Area |
| | BAS | BASE/MAIN FLOOR | 3 | 0 | 1958 | 2240.0 |
| | OP4 | OPEN PORCH W/CEILING-ROOF | 3 | 0 | 1958 | 35.0 |
| | AGR | ATTACHED GARAGE | 3 | 0 | 1958 | 624.0 |
| | ENP | ENCLOSED PORCH | 3 | 0 | 1958 | 345.0 |
Sketch
Property Image
Land
| 1 | 17 | AC (01.01-02.00) | 0.9200 | 40075.20 | 0.00 | 0.00 | 1.00 | $240,000 | $0 |
Roll Value History
| 2026 | N/A | N/A | N/A | N/A | N/A |
| 2025 | $336,720 | $240,000 | $0 | $576,720 | $576,720 |
| 2024 | $329,312 | $220,000 | $0 | $549,312 | $161,199 |
| 2023 | $324,624 | $220,000 | $0 | $544,624 | $161,199 |
| 2022 | $298,194 | $200,000 | $0 | $498,194 | $402,997 |
| 2021 | $262,997 | $140,000 | $0 | $402,997 | $161,199 |
| 2020 | $257,242 | $100,000 | $0 | $357,242 | $357,242 |
| 2019 | $199,014 | $150,000 | $0 | $349,014 | $349,014 |
| 2018 | $199,693 | $130,000 | $0 | $329,693 | $329,693 |
| 2017 | $151,870 | $110,000 | $0 | $261,870 | $261,870 |
| 2016 | $154,627 | $90,000 | $0 | $244,627 | $244,627 |
| 2015 | $157,384 | $70,000 | $0 | $227,384 | $227,384 |
| 2014 | $160,141 | $55,000 | $0 | $215,141 | $215,141 |
| 2013 | $162,897 | $55,000 | $0 | $217,897 | $217,897 |
| 2012 | $165,655 | $65,000 | $0 | $230,655 | $230,655 |
| 2011 | $156,565 | $50,000 | $0 | $206,565 | $206,565 |
| 2010 | $175,812 | $50,000 | $0 | $225,812 | $225,812 |
| 2009 | $181,165 | $66,400 | $0 | $247,565 | $247,565 |
| 2008 | $184,251 | $94,917 | $0 | $279,168 | $279,168 |
Deed and Sales History
| 1 | 03/07/2025 | WD | Warranty Deed | KUHN, CONSTANCE MARIE | SMITH, COLIN | | | $620,000.00 | 62779 | 4583112 |
| 2 | 01/01/1900 | OTHER | Other - Misc. Documents | Unknown | KUHN, CONSTANCE MARIE | | | $0.00 | 0 | 0 |
Payout Agreement
| No payout information available.. |