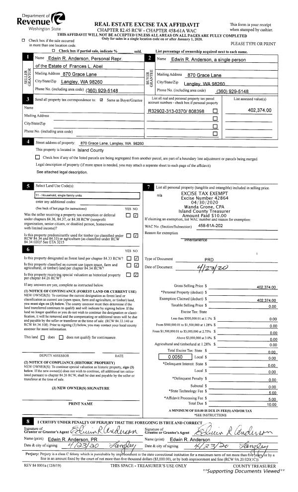
Property
Account |
| Property ID: | 808398 | Abbreviated Legal Description: | LOT 4 L-SP 4-2004.32902.303-0400 V4 SP P86 AF# 4126405 |
| Geographic ID: | R32902-313-0370 | Agent Code: | |
| Type: | Real | | |
| Tax Area: | 700 - APPRAISER-S Whid Schl Dist, in town of Langley | Land Use Code | 11 |
| Open Space: | N | DFL | N |
| Historic Property: | N | Remodel Property: | N |
| Multi-Family Redevelopment: | N | | |
| Township: | 29 | Section: | 02 |
| Range: | R3 |
Location |
| Address: | | Mapsco: | |
| Neighborhood: | City of Langley | Map ID: | 721 |
| Neighborhood CD: | 04-L |
Owner |
| Name: | BERSCHAUER TTEE, HAROLD ANDREW | Owner ID: | 296676 |
| Mailing Address: | KELLY BERSCHAUER TTEE 3619 CORLISS AVE N LANGLEY, WA 98103 | % Ownership: | 100.0000000000% |
| | | Exemptions: | |
Taxes and Assessment Details
Values
| (+) Improvement Homesite Value: | + | $0 | |
| (+) Improvement Non-Homesite Value: | + | $404,098 | |
| (+) Land Homesite Value: | + | $0 | |
| (+) Land Non-Homesite Value: | + | $270,000 | |
| (+) Curr Use (HS): | + | $0 | $0 |
| (+) Curr Use (NHS): | + | $0 | $0 |
| | | -------------------------- | |
| (=) Market Value: | = | $674,098 | |
| (–) Productivity Loss: | – | $0 | |
| | | -------------------------- | |
| (=) Subtotal: | = | $674,098 | |
| (+) Senior Appraised Value: | + | $0 | |
| (+) Non-Senior Appraised Value: | + | $674,098 | |
| | | -------------------------- | |
| (=) Total Appraised Value: | = | $674,098 | |
| (–) Senior Exemption Loss: | – | $0 | |
| (–) Exemption Loss: | – | $0 | |
| | | -------------------------- | |
| (=) Taxable Value: | = | $674,098 | |
Taxing Jurisdiction
| Owner: | BERSCHAUER TTEE, HAROLD ANDREW | | |
| % Ownership: | 100.0000000000% | | |
| Total Value: | $674,098 | | |
| Tax Area: | 700 - APPRAISER-S Whid Schl Dist, in town of Langley |
| CF | Conservation Futures | 0.0313996660 | $674,098 | $674,098 | $21.17 | | |
| LANG | City of Langley | 1.0106798199 | $674,098 | $674,098 | $681.30 | | |
| LANGBOND | City of Langley BOND | 0.0000000000 | $674,098 | $674,098 | $0.00 | | |
| FIRE3 | Fire & Rescue Dist #3 S Whidbey GEN | 1.2130821753 | $674,098 | $674,098 | $817.74 | | |
| HOBOND | Hospital BOND | 0.1893405597 | $674,098 | $674,098 | $127.63 | | |
| HOGEN | Hospital GEN | 0.3848777722 | $674,098 | $674,098 | $259.45 | | |
| CE | County Current Expense | 0.3674210519 | $674,098 | $674,098 | $247.68 | | |
| ISLANDEMS | Hospital GEN (EMS) | 0.4952018576 | $674,098 | $674,098 | $333.81 | | |
| LIB | Library Sno-Isle GEN | 0.3039084203 | $674,098 | $674,098 | $204.86 | | |
| PORTWHID | Port of S Whidbey GEN | 0.1086004714 | $674,098 | $674,098 | $73.21 | | |
| SCH206BOND | School 206 BOND | 0.5960237832 | $674,098 | $674,098 | $401.78 | | |
| SCH206CAP | School 206 CP | 0.3066144020 | $674,098 | $674,098 | $206.69 | | |
| SCH206MO | School 206 Enrichment | 0.4808755445 | $674,098 | $674,098 | $324.16 | | |
| ST | State School | 1.4761226122 | $674,098 | $674,098 | $995.05 | | |
| ST2 | State School Part 2 | 0.7953803475 | $674,098 | $674,098 | $536.16 | | |
| SWHIDPRBD | P & R S Whidbey BOND | 0.0144185398 | $674,098 | $674,098 | $9.72 | | |
| SWHIDPRBD3 | P & R S Whidbey BOND3 | 0.1483535547 | $674,098 | $674,098 | $100.00 | | |
| SWHIDPRMT | P & R S Whidbey GEN | 0.4600000000 | $674,098 | $674,098 | $310.09 | | |
| | Total Tax Rate: | 8.3823005782 | | | | | |
| | | | | Taxes w/Current Exemptions: | $5,650.50 | | |
| | | | | Taxes w/o Exemptions: | $5,650.50 | | |
Improvement / Building
| Improvement #1: | RESIDENTIAL | State Code: | Y | 944.2 sqft | Value: | $404,098 |
| Bathrooms: | 2 | Bedrooms: | 2 | | Ceiling: | TONGUE & GROOVE | Exterior Wall/Cover: | VINYL | | Floor Covering: | COLORED CONCRETE | Floor Structure: | SLAB ON GRADE | | Foundation: | CONCRETE | Heating: | RADIANT FLOOR | | Interior Finish: | DRYWALL PAINT | Plumbing Fixture Cnt: | 11 | | Roof Slope: | 5" IN 12" | Roof Structure/Cover: | STEEL TERNE |
|
| | Type | Description | Class CD | Sub Class CD | Year Built | Area |
| | BAS | BASE/MAIN FLOOR | 5 | 0 | 2008 | 824.2 |
| | OWR | OPEN WOOD PORCH W/STEPS/ROOF | 5 | 0 | 2008 | 48.0 |
| | OP3 | OPEN PORCH W/ROOF | 5 | 0 | 2008 | 192.0 |
| | OCP | OPEN CARPORT | 5 | 0 | 2008 | 320.0 |
| | UTY | STORAGE/UTILITY | 5 | 0 | 2008 | 48.0 |
| | LOF | LOFT | 5 | 0 | 2008 | 120.0 |
| | OWP | OPEN WOOD PORCH W/STEPS | 5 | 0 | 2008 | 63.0 |
| | OWR | OPEN WOOD PORCH W/STEPS/ROOF | 5 | 0 | 2008 | 58.5 |
| | OWR | OPEN WOOD PORCH W/STEPS/ROOF | 5 | 0 | 2008 | 128.0 |
| | CPD | OPEN CARPORT DIRT FLOOR | 5 | 0 | 2008 | 63.1 |
Sketch
Property Image
Land
| 1 | 15 | SQ (12001-21780) | 0.0000 | 0.00 | 0.00 | 0.00 | 1.00 | $270,000 | $0 |
Roll Value History
| 2026 | N/A | N/A | N/A | N/A | N/A |
| 2025 | $404,098 | $270,000 | $0 | $674,098 | $674,098 |
| 2024 | $407,495 | $270,000 | $0 | $677,495 | $677,495 |
| 2023 | $411,117 | $270,000 | $0 | $681,117 | $681,117 |
| 2022 | $375,139 | $210,000 | $0 | $585,139 | $585,139 |
| 2021 | $328,882 | $200,000 | $0 | $528,882 | $528,882 |
| 2020 | $289,672 | $180,000 | $0 | $469,672 | $469,672 |
| 2019 | $202,374 | $200,000 | $0 | $402,374 | $402,374 |
| 2018 | $202,929 | $160,000 | $0 | $362,929 | $362,929 |
| 2017 | $204,039 | $160,000 | $0 | $364,039 | $364,039 |
| 2016 | $206,256 | $130,000 | $0 | $336,256 | $336,256 |
| 2015 | $208,475 | $130,000 | $0 | $338,475 | $338,475 |
| 2014 | $129,716 | $139,500 | $0 | $269,216 | $269,216 |
| 2013 | $131,083 | $139,500 | $0 | $270,583 | $270,583 |
| 2012 | $132,453 | $139,500 | $0 | $271,953 | $271,953 |
| 2011 | $133,824 | $155,000 | $0 | $288,824 | $288,824 |
| 2010 | $143,940 | $155,000 | $0 | $298,940 | $298,940 |
| 2009 | $148,337 | $100,000 | $0 | $248,337 | $248,337 |
| 2008 | $0 | $155,904 | $0 | $155,904 | $155,904 |
Deed and Sales History
| 1 | 10/28/2025 | WD | Warranty Deed | BERSCHAUER TTEE, HAROLD ANDREW | SNEKKERSTEN IRREVOCABLE TRUST | | | $0.00 | 65271 | 4592784 |
| 2 | 10/28/2020 | WD | Warranty Deed | ANDERSON, EDWIN R | BERSCHAUER TTEE, HAROLD ANDREW | | | $850,000.00 | 45641 | 4502116 |
| 3 | 04/23/2020 | WD | Warranty Deed | ANDERSON, EDWIN R | ANDERSON, EDWIN R | | | $0.00 | 42864 | 4485737 |
| 4 | 03/18/2005 | WD | Warranty Deed | SOLI, TODD | ANDERSON, EDWIN R | | | $92,500.00 | 51119 | 4128924 |
| 5 | 01/01/1900 | OTHER | Other - Misc. Documents | Unknown | SOLI, TODD | | | $0.00 | 0 | 0 |
Payout Agreement
| No payout information available.. |