Property
Account |
| Property ID: | 808453 | Abbreviated Legal Description: | LOT 1 SP 43-06.23118.330-3500 V4 SP P230 & 231 AF# 4197907 |
| Geographic ID: | R23118-332-3000 | Agent Code: | |
| Type: | Real | | |
| Tax Area: | 312 - APPRAISER-Cpvl Schl Dist, outside Cpvl, improved, greater than 1 acre | Land Use Code | 11 |
| Open Space: | N | DFL | N |
| Historic Property: | N | Remodel Property: | N |
| Multi-Family Redevelopment: | N | | |
| Township: | 31 | Section: | 18 |
| Range: | R2 |
Location |
| Address: | 212 ALEXIS LN COUPEVILLE, WA 98239 | Mapsco: | |
| Neighborhood: | Cycle 2 | Map ID: | 492 |
| Neighborhood CD: | 2 |
Owner |
| Name: | POPPE, CAROLYN R | Owner ID: | 308217 |
| Mailing Address: | 212 ALEXIS LN COUPEVILLE, WA 98239 | % Ownership: | 100.0000000000% |
| | | Exemptions: | |
Taxes and Assessment Details
Values
| (+) Improvement Homesite Value: | + | $0 | |
| (+) Improvement Non-Homesite Value: | + | $694,776 | |
| (+) Land Homesite Value: | + | $0 | |
| (+) Land Non-Homesite Value: | + | $340,746 | |
| (+) Curr Use (HS): | + | $0 | $0 |
| (+) Curr Use (NHS): | + | $0 | $0 |
| | | -------------------------- | |
| (=) Market Value: | = | $1,035,522 | |
| (–) Productivity Loss: | – | $0 | |
| | | -------------------------- | |
| (=) Subtotal: | = | $1,035,522 | |
| (+) Senior Appraised Value: | + | $0 | |
| (+) Non-Senior Appraised Value: | + | $1,035,522 | |
| | | -------------------------- | |
| (=) Total Appraised Value: | = | $1,035,522 | |
| (–) Senior Exemption Loss: | – | $0 | |
| (–) Exemption Loss: | – | $0 | |
| | | -------------------------- | |
| (=) Taxable Value: | = | $1,035,522 | |
Taxing Jurisdiction
| Owner: | POPPE, CAROLYN R | | |
| % Ownership: | 100.0000000000% | | |
| Total Value: | $1,035,522 | | |
| Tax Area: | 312 - APPRAISER-Cpvl Schl Dist, outside Cpvl, improved, greater than 1 acre |
| CF | Conservation Futures | 0.0313996660 | $1,035,522 | $1,035,522 | $32.52 | | |
| CEM2 | Cemetery #2 | 0.0092609791 | $1,035,522 | $1,035,522 | $9.59 | | |
| FIRE5 | Fire & Rescue Dist #5 C Whidbey GEN | 1.1892169230 | $1,035,522 | $1,035,522 | $1,231.46 | | |
| FIRE5BOND | Fire & Rescue Dist #5 C Whidbey BOND | 0.1394359503 | $1,035,522 | $1,035,522 | $144.39 | | |
| HOBOND | Hospital BOND | 0.1893405597 | $1,035,522 | $1,035,522 | $196.07 | | |
| HOGEN | Hospital GEN | 0.3848777722 | $1,035,522 | $1,035,522 | $398.55 | | |
| CE | County Current Expense | 0.3674210519 | $1,035,522 | $1,035,522 | $380.47 | | |
| CR | County Roads | 0.4614296361 | $1,035,522 | $1,035,522 | $477.82 | | |
| ISLANDEMS | Hospital GEN (EMS) | 0.4952018576 | $1,035,522 | $1,035,522 | $512.79 | | |
| LIB | Library Sno-Isle GEN | 0.3039084203 | $1,035,522 | $1,035,522 | $314.70 | | |
| LIBCAP | Library Sno-Isle BOND (Cap Fac Imp Area) | 0.0528562629 | $1,035,522 | $1,035,522 | $54.73 | | |
| POCOUP | Port of Coupeville GEN | 0.1065226063 | $1,035,522 | $1,035,522 | $110.31 | | |
| POCOUPIDD | Port of Coupeville IDD | 0.3353038577 | $1,035,522 | $1,035,522 | $347.21 | | |
| COUPSDTECH | School 204 CP (TECH) | 0.1215123397 | $1,035,522 | $1,035,522 | $125.83 | | |
| SCH204MO | School 204 Enrichment | 0.6416662518 | $1,035,522 | $1,035,522 | $664.46 | | |
| ST | State School | 1.4761226122 | $1,035,522 | $1,035,522 | $1,528.56 | | |
| ST2 | State School Part 2 | 0.7953803475 | $1,035,522 | $1,035,522 | $823.63 | | |
| | Total Tax Rate: | 7.1008570943 | | | | | |
| | | | | Taxes w/Current Exemptions: | $7,353.09 | | |
| | | | | Taxes w/o Exemptions: | $7,353.09 | | |
Improvement / Building
| Improvement #1: | RESIDENTIAL | State Code: | Y | 2808.0 sqft | Value: | $694,776 |
| Bathrooms: | 3 | Bedrooms: | 4 | | Ceiling: | DRYWALL PAINTED | Exterior Wall/Cover: | CEMENT FIBER | | Floor Covering: | HARDWOOD 100% | Floor Structure: | WOOD W/SUBFLOOR | | Foundation: | CONCRETE | Heating: | RADIANT FLOOR | | Interior Finish: | DRYWALL PAINT | Plumbing Fixture Cnt: | 17 | | Roof Slope: | 6" IN 12" | Roof Structure/Cover: | CJ ASPHALT |
|
| | Type | Description | Class CD | Sub Class CD | Year Built | Area |
| | BAS | BASE/MAIN FLOOR | 4 | 0 | 2009 | 2808.0 |
| | OP4 | OPEN PORCH W/CEILING-ROOF | 4 | 0 | 2009 | 202.5 |
| | OP4 | OPEN PORCH W/CEILING-ROOF | 4 | 0 | 2009 | 332.0 |
| | AGR | ATTACHED GARAGE | 4 | 0 | 2009 | 837.2 |
Sketch
Property Image
Land
| 1 | HS | HOMESITE | 1.0000 | 43560.00 | 0.00 | 0.00 | 1.00 | $220,000 | $0 |
| 2 | 91 | UNDEVELOPED LAND-METES AND BOUNDS | 4.1900 | 182516.40 | 0.00 | 0.00 | 1.00 | $120,746 | $0 |
Roll Value History
| 2026 | N/A | N/A | N/A | N/A | N/A |
| 2025 | $694,776 | $340,746 | $0 | $1,035,522 | $1,035,522 |
| 2024 | $637,701 | $300,000 | $0 | $937,701 | $937,701 |
| 2023 | $645,096 | $280,000 | $0 | $925,096 | $925,096 |
| 2022 | $590,837 | $260,000 | $0 | $850,837 | $850,837 |
| 2021 | $519,591 | $170,000 | $0 | $689,591 | $689,591 |
| 2020 | $504,296 | $160,000 | $0 | $664,296 | $664,296 |
| 2019 | $366,201 | $230,000 | $0 | $596,201 | $596,201 |
| 2018 | $360,429 | $200,000 | $0 | $560,429 | $560,429 |
| 2017 | $362,316 | $200,000 | $0 | $562,316 | $562,316 |
| 2016 | $366,297 | $140,000 | $0 | $506,297 | $506,297 |
| 2015 | $370,278 | $140,000 | $0 | $510,278 | $510,278 |
| 2014 | $374,261 | $140,000 | $0 | $514,261 | $514,261 |
| 2013 | $378,242 | $140,000 | $0 | $518,242 | $518,242 |
| 2012 | $382,223 | $126,117 | $0 | $508,340 | $508,340 |
| 2011 | $386,204 | $140,130 | $0 | $526,334 | $526,334 |
| 2010 | $388,377 | $140,130 | $0 | $528,507 | $528,507 |
| 2009 | $437,760 | $127,155 | $0 | $564,915 | $564,915 |
| 2008 | $0 | $129,750 | $0 | $129,750 | $129,750 |
Deed and Sales History
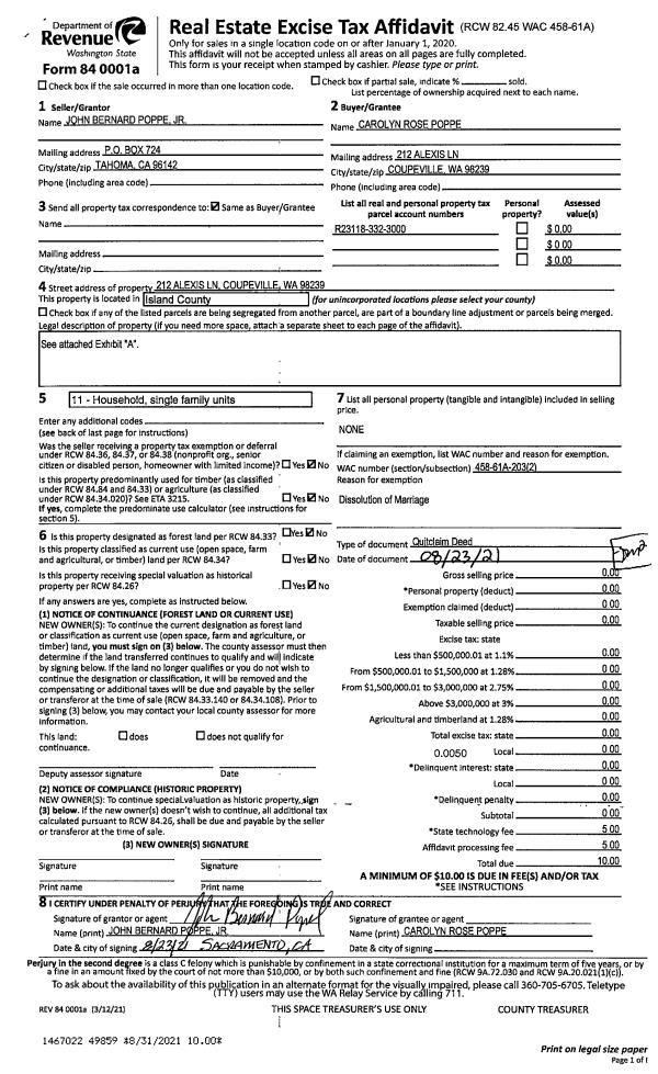
| 1 | 03/31/2023 | QCD | Quit Claim Deed | POPPE, CAROLYN ROSE | POPPE, CAROLYN R | | | $0.00 | 56333 | 4558531 |
| 2 | 08/23/2021 | QCD | Quit Claim Deed | POPPE, JOHN | POPPE, CAROLYN ROSE | | | $0.00 | 49859 | 4528124 |
| 3 | 05/22/2019 | WD | Warranty Deed | ROSE, JORDAN M | POPPE, JOHN | | | $711,000.00 | 38742 | 4464365 |
| 4 | 12/16/2016 | WD | Warranty Deed | DEHAY, JAMES | ROSE, JORDAN M | | | $620,000.00 | 27439 | 4413748 |
| 5 | 06/19/2008 | WD | Warranty Deed | DEHAY, JAMES | DEHAY, JAMES | | | $0.00 | 91344 | 4253936 |
| 6 | 06/17/2008 | WD | Warranty Deed | J & M COUPEVILLE PROPERTIES, | DEHAY, JAMES | | | $137,000.00 | 81588 | 4231157 |
Payout Agreement
| No payout information available.. |