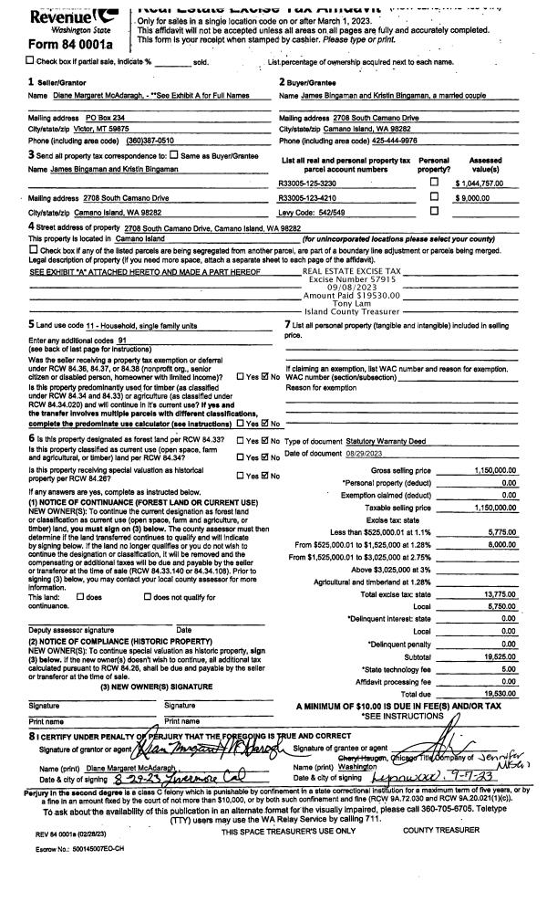
Property
Account |
| Property ID: | 808472 | Abbreviated Legal Description: | PT FOLL DESC LY WLY OF W CAMANO DR: N75' OF S150' OF N163' OF GL4 TGW ADJ TIDES |
| Geographic ID: | R33005-125-3230 | Agent Code: | |
| Type: | Real | | |
| Tax Area: | 542 - APPRAISER-Stan/Cam Schl Dist, Special Dist, improved, greater than 1 acre | Land Use Code | 11 |
| Open Space: | N | DFL | N |
| Historic Property: | N | Remodel Property: | N |
| Multi-Family Redevelopment: | N | | |
| Township: | 30 | Section: | 05 |
| Range: | R3 |
Location |
| Address: | 2708 S CAMANO DR CAMANO ISLAND, WA 98282 | Mapsco: | |
| Neighborhood: | Cycle 5 | Map ID: | 855 |
| Neighborhood CD: | 5 |
Owner |
| Name: | BINGAMAN, JAMES | Owner ID: | 310016 |
| Mailing Address: | KRISTIN BINGAMAN 2907 140TH ST NW MARYSVILLE, WA 98271 | % Ownership: | 100.0000000000% |
| | | Exemptions: | |
Taxes and Assessment Details
Values
| (+) Improvement Homesite Value: | + | $0 | |
| (+) Improvement Non-Homesite Value: | + | $501,511 | |
| (+) Land Homesite Value: | + | $0 | |
| (+) Land Non-Homesite Value: | + | $550,750 | |
| (+) Curr Use (HS): | + | $0 | $0 |
| (+) Curr Use (NHS): | + | $0 | $0 |
| | | -------------------------- | |
| (=) Market Value: | = | $1,052,261 | |
| (–) Productivity Loss: | – | $0 | |
| | | -------------------------- | |
| (=) Subtotal: | = | $1,052,261 | |
| (+) Senior Appraised Value: | + | $0 | |
| (+) Non-Senior Appraised Value: | + | $1,052,261 | |
| | | -------------------------- | |
| (=) Total Appraised Value: | = | $1,052,261 | |
| (–) Senior Exemption Loss: | – | $0 | |
| (–) Exemption Loss: | – | $0 | |
| | | -------------------------- | |
| (=) Taxable Value: | = | $1,052,261 | |
Taxing Jurisdiction
| Owner: | BINGAMAN, JAMES | | |
| % Ownership: | 100.0000000000% | | |
| Total Value: | $1,052,261 | | |
| Tax Area: | 542 - APPRAISER-Stan/Cam Schl Dist, Special Dist, improved, greater than 1 acre |
| CF | Conservation Futures | 0.0313996660 | $1,052,261 | $1,052,261 | $33.04 | | |
| EMS1 | Fire & Rescue Dist #1 Camano GEN (EMS) | 0.4998471806 | $1,052,261 | $1,052,261 | $525.97 | | |
| FIRE1 | Fire & Rescue Dist #1 Camano GEN | 1.2496603404 | $1,052,261 | $1,052,261 | $1,314.97 | | |
| FIRE1BOND | Fire & Rescue Dist #1 Camano BOND | 0.1630371212 | $1,052,261 | $1,052,261 | $171.56 | | |
| CE | County Current Expense | 0.3674210519 | $1,052,261 | $1,052,261 | $386.62 | | |
| CR | County Roads | 0.4614296361 | $1,052,261 | $1,052,261 | $485.54 | | |
| LIB | Library Sno-Isle GEN | 0.3039084203 | $1,052,261 | $1,052,261 | $319.79 | | |
| SCH205_401 | School 205-401 Enrichment | 1.3697998934 | $1,052,261 | $1,052,261 | $1,441.39 | | |
| SCH205BOND | School 205-401 BOND | 0.9354199323 | $1,052,261 | $1,052,261 | $984.31 | | |
| ST | State School | 1.4761226122 | $1,052,261 | $1,052,261 | $1,553.27 | | |
| ST2 | State School Part 2 | 0.7953803475 | $1,052,261 | $1,052,261 | $836.95 | | |
| | Total Tax Rate: | 7.6534262019 | | | | | |
| | | | | Taxes w/Current Exemptions: | $8,053.41 | | |
| | | | | Taxes w/o Exemptions: | $8,053.41 | | |
Improvement / Building
| Improvement #1: | RESIDENTIAL | State Code: | Y | 1906.0 sqft | Value: | $305,726 |
| Bathrooms: | 1 | Bedrooms: | 1 | | Ceiling: | DRYWALL PAINTED | Exterior Wall/Cover: | WOOD SIDING | | Floor Covering: | CARPET/VINYL 80-20 | Floor Structure: | WOOD W/SUBFLOOR | | Foundation: | CONCRETE | Interior Finish: | DRYWALL PAINT | | Plumbing Fixture Cnt: | 9 | Roof Slope: | 6" IN 12" | | Roof Structure/Cover: | CJ ALUMINIUM HEAVY |   |   |
|
| | Type | Description | Class CD | Sub Class CD | Year Built | Area |
| | BAS | BASE/MAIN FLOOR | 4 | 0 | 1979 | 1422.0 |
| | OP3 | OPEN PORCH W/ROOF | 4 | 0 | 1979 | 78.0 |
| | UPH | HALF STORY | 4 | 0 | 1979 | 484.0 |
| Improvement #2: | RESIDENTIAL | State Code: | Y | 1080.0 sqft | Value: | $195,785 |
| Bathrooms: | 1 | Bedrooms: | 1 | | Ceiling: | DRYWALL PAINTED | Exterior Wall/Cover: | WOOD SIDING | | Floor Covering: | HARDWOOD 100% | Floor Structure: | WOOD W/SUBFLOOR | | Foundation: | CONCRETE | Heating: | WALL HEAT ELECTRIC | | Interior Finish: | DRYWALL PAINT | Plumbing Fixture Cnt: | 6 | | Roof Slope: | 4" IN 12" | Roof Structure/Cover: | CJ ASPHALT |
|
| | Type | Description | Class CD | Sub Class CD | Year Built | Area |
| | BAS | BASE/MAIN FLOOR | 3 | 0 | 1979 | 1080.0 |
| | BIG | BUILT IN GARAGE | 3 | 0 | 1979 | 260.0 |
| | OWP | OPEN WOOD PORCH W/STEPS | 3 | 0 | 1979 | 126.0 |
| | OWP | OPEN WOOD PORCH W/STEPS | 3 | 0 | 1979 | 54.0 |
Sketch
Property Image
Land
| 1 | HB | HIGH BLUFF | 1.2000 | 52272.00 | 75.00 | 0.00 | 1.00 | $550,000 | $0 |
| 2 | 55 | TIDES | 0.0000 | 0.00 | 75.00 | 0.00 | 1.00 | $750 | $0 |
Roll Value History
| 2026 | N/A | N/A | N/A | N/A | N/A |
| 2025 | $501,511 | $550,750 | $0 | $1,052,261 | $1,052,261 |
| 2024 | $507,905 | $550,750 | $0 | $1,058,655 | $1,058,655 |
| 2023 | $494,007 | $550,750 | $0 | $1,044,757 | $1,044,757 |
| 2022 | $453,047 | $500,750 | $0 | $953,797 | $953,797 |
| 2021 | $241,883 | $400,750 | $0 | $642,633 | $642,633 |
| 2020 | $236,458 | $345,750 | $0 | $582,208 | $582,208 |
| 2019 | $174,915 | $380,750 | $0 | $555,665 | $555,665 |
| 2018 | $175,488 | $380,750 | $0 | $556,238 | $556,238 |
| 2017 | $176,634 | $300,750 | $0 | $477,384 | $477,384 |
| 2016 | $178,929 | $300,750 | $0 | $479,679 | $479,679 |
| 2015 | $142,253 | $250,750 | $0 | $393,003 | $393,003 |
| 2014 | $144,283 | $250,750 | $0 | $395,033 | $395,033 |
| 2013 | $147,001 | $229,180 | $0 | $376,181 | $376,181 |
| 2012 | $149,039 | $229,180 | $0 | $378,219 | $378,219 |
| 2011 | $152,143 | $286,288 | $0 | $438,431 | $438,431 |
| 2010 | $154,705 | $286,288 | $0 | $440,993 | $440,993 |
| 2009 | $42,543 | $278,465 | $0 | $321,008 | $321,008 |
| 2008 | $43,814 | $278,465 | $0 | $322,279 | $322,279 |
| 2007 | $0 | $0 | $0 | $240,524 | $240,524 |
Deed and Sales History
| 1 | 08/29/2023 | WD | Warranty Deed | MCADARAGH, DIANE M | BINGAMAN, JAMES | | | $1,150,000.00 | 57915 | 4564447 |
|   | |
| 2 | 11/05/2009 | OTHER | Other - Misc. Documents | BRAMPTON, DIANE | MCADAREGH, DIANE M | | | $0.00 | 81409 | 0 |
| 3 | 01/02/2008 | SEG | DNU - Segregation | Unknown | BRAMPTON, DIANE | | | $0.00 | 80546 | 0 |
Payout Agreement
| No payout information available.. |