Property
Account |
| Property ID: | 808494 | Abbreviated Legal Description: | LOT 1 SP 472-06.32921.100-0380 & .100-1040 V4 SP P249 AF# 4204902 |
| Geographic ID: | R32921-115-0400 | Agent Code: | |
| Type: | Real | | |
| Tax Area: | 712 - APPRAISER-S Whid Schl Dist, outside Langley, improved, greater than 1 acre | Land Use Code | 11 |
| Open Space: | N | DFL | N |
| Historic Property: | N | Remodel Property: | N |
| Multi-Family Redevelopment: | N | | |
| Township: | 29 | Section: | 21 |
| Range: | R3 |
Location |
| Address: | 6303 KIRKHILL RD CLINTON, WA 98236 | Mapsco: | |
| Neighborhood: | Cycle 4 | Map ID: | 795 |
| Neighborhood CD: | 4 |
Owner |
| Name: | CLIZER, RYAN | Owner ID: | 314043 |
| Mailing Address: | NANCY SCHMIDT 6303 KIRKHILL RD CLINTON, WA 98236 | % Ownership: | 100.0000000000% |
| | | Exemptions: | |
Taxes and Assessment Details
Values
| (+) Improvement Homesite Value: | + | $0 | |
| (+) Improvement Non-Homesite Value: | + | $184,614 | |
| (+) Land Homesite Value: | + | $0 | |
| (+) Land Non-Homesite Value: | + | $380,000 | |
| (+) Curr Use (HS): | + | $0 | $0 |
| (+) Curr Use (NHS): | + | $0 | $0 |
| | | -------------------------- | |
| (=) Market Value: | = | $564,614 | |
| (–) Productivity Loss: | – | $0 | |
| | | -------------------------- | |
| (=) Subtotal: | = | $564,614 | |
| (+) Senior Appraised Value: | + | $0 | |
| (+) Non-Senior Appraised Value: | + | $564,614 | |
| | | -------------------------- | |
| (=) Total Appraised Value: | = | $564,614 | |
| (–) Senior Exemption Loss: | – | $0 | |
| (–) Exemption Loss: | – | $0 | |
| | | -------------------------- | |
| (=) Taxable Value: | = | $564,614 | |
Taxing Jurisdiction
| Owner: | CLIZER, RYAN | | |
| % Ownership: | 100.0000000000% | | |
| Total Value: | $564,614 | | |
| Tax Area: | 712 - APPRAISER-S Whid Schl Dist, outside Langley, improved, greater than 1 acre |
| CF | Conservation Futures | 0.0313996660 | $564,614 | $564,614 | $17.73 | | |
| FIRE3 | Fire & Rescue Dist #3 S Whidbey GEN | 1.2130821753 | $564,614 | $564,614 | $684.92 | | |
| HOBOND | Hospital BOND | 0.1893405597 | $564,614 | $564,614 | $106.90 | | |
| HOGEN | Hospital GEN | 0.3848777722 | $564,614 | $564,614 | $217.31 | | |
| CE | County Current Expense | 0.3674210519 | $564,614 | $564,614 | $207.45 | | |
| CR | County Roads | 0.4614296361 | $564,614 | $564,614 | $260.53 | | |
| ISLANDEMS | Hospital GEN (EMS) | 0.4952018576 | $564,614 | $564,614 | $279.60 | | |
| LIB | Library Sno-Isle GEN | 0.3039084203 | $564,614 | $564,614 | $171.59 | | |
| PORTWHID | Port of S Whidbey GEN | 0.1086004714 | $564,614 | $564,614 | $61.32 | | |
| SCH206BOND | School 206 BOND | 0.5960237832 | $564,614 | $564,614 | $336.52 | | |
| SCH206CAP | School 206 CP | 0.3066144020 | $564,614 | $564,614 | $173.12 | | |
| SCH206MO | School 206 Enrichment | 0.4808755445 | $564,614 | $564,614 | $271.51 | | |
| ST | State School | 1.4761226122 | $564,614 | $564,614 | $833.44 | | |
| ST2 | State School Part 2 | 0.7953803475 | $564,614 | $564,614 | $449.08 | | |
| SWHIDPRBD | P & R S Whidbey BOND | 0.0144185398 | $564,614 | $564,614 | $8.14 | | |
| SWHIDPRBD3 | P & R S Whidbey BOND3 | 0.1483535547 | $564,614 | $564,614 | $83.76 | | |
| SWHIDPRMT | P & R S Whidbey GEN | 0.4600000000 | $564,614 | $564,614 | $259.72 | | |
| | Total Tax Rate: | 7.8330503944 | | | | | |
| | | | | Taxes w/Current Exemptions: | $4,422.64 | | |
| | | | | Taxes w/o Exemptions: | $4,422.64 | | |
Improvement / Building
| Improvement #1: | MANUFACTURED HOME | State Code: | Y | 1620.0 sqft | Value: | $184,614 |
| Bathrooms: | 2 | Bedrooms: | 2 | | Ceiling: | PLASTER PAINTED | Cooling: | EVAP NO DUCT | | Exterior Wall/Cover: | VINYL | Floor Covering: | CARPET 100% | | Floor Structure: | SLAB ON GRADE | Foundation: | SLAB | | Heating: | FHA ELECTRIC | Interior Finish: | PLASTER | | Plumbing Fixture Cnt: | 1 | Roof Slope: | FLAT | | Roof Structure/Cover: | CJ ALUMINIUM HEAVY |   |   |
|
| | Type | Description | Class CD | Sub Class CD | Year Built | Area |
| | BAS | BASE/MAIN FLOOR | 4 | 0 | 2022 | 1620.0 |
| | OWP | OPEN WOOD PORCH W/STEPS | 4 | 0 | 2022 | 300.0 |
Sketch
Property Image
Land
| 1 | 32 | AC (03.01-09.99) | 4.8700 | 0.00 | 0.00 | 0.00 | 1.00 | $380,000 | $0 |
Roll Value History
| 2026 | N/A | N/A | N/A | N/A | N/A |
| 2025 | $184,614 | $380,000 | $0 | $564,614 | $564,614 |
| 2024 | $186,517 | $350,000 | $0 | $536,517 | $536,517 |
| 2023 | $163,845 | $330,000 | $0 | $493,845 | $493,845 |
| 2022 | $0 | $170,000 | $0 | $170,000 | $170,000 |
| 2021 | $0 | $150,000 | $0 | $150,000 | $150,000 |
| 2020 | $0 | $150,000 | $0 | $150,000 | $150,000 |
| 2019 | $0 | $135,000 | $0 | $135,000 | $135,000 |
| 2018 | $0 | $130,000 | $0 | $130,000 | $130,000 |
| 2017 | $0 | $130,000 | $0 | $130,000 | $130,000 |
| 2016 | $0 | $100,000 | $0 | $100,000 | $100,000 |
| 2015 | $0 | $100,000 | $0 | $100,000 | $100,000 |
| 2014 | $0 | $93,490 | $0 | $93,490 | $93,490 |
| 2013 | $0 | $93,490 | $0 | $93,490 | $93,490 |
| 2012 | $0 | $93,490 | $0 | $93,490 | $93,490 |
| 2011 | $0 | $93,490 | $0 | $93,490 | $93,490 |
| 2010 | $0 | $93,490 | $0 | $93,490 | $93,490 |
| 2009 | $0 | $124,880 | $0 | $124,880 | $124,880 |
| 2008 | $0 | $124,880 | $0 | $124,880 | $124,880 |
| 2007 | $0 | $0 | $0 | $70,000 | $70,000 |
Deed and Sales History
| 1 | 09/19/2024 | WD | Warranty Deed | GILLET, JESSIE | CLIZER, RYAN | | | $615,000.00 | 61421 | 4577678 |
| 2 | 09/16/2024 | QCD | Quit Claim Deed | BOWDEN, ALEXANDER | GILLET, JESSIE | | | $0.00 | 61420 | 4577677 |
| 3 | 10/19/2021 | WD | Warranty Deed | STEINDL, JOHN RICHARD | GILLET, JESSIE | | | $250,000.00 | 50550 | 4531802 |
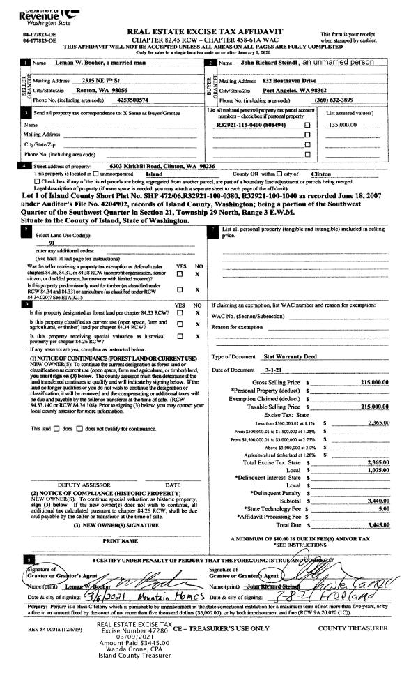
| 4 | 03/01/2021 | WD | Warranty Deed | BOOHER, LEMAN | STEINDL, JOHN RICHARD | | | $215,000.00 | 47280 | 4513117 |
| 5 | 08/12/2012 | WD | Warranty Deed | THIEL, DIANE L | BOOHER, LEMAN | | | $103,000.00 | 8580 | 4321468 |
| 6 | 01/01/1900 | OTHER | Other - Misc. Documents | Unknown | THIEL, DIANE L | | | $0.00 | 0 | 0 |
Payout Agreement
| No payout information available.. |