Property
Account |
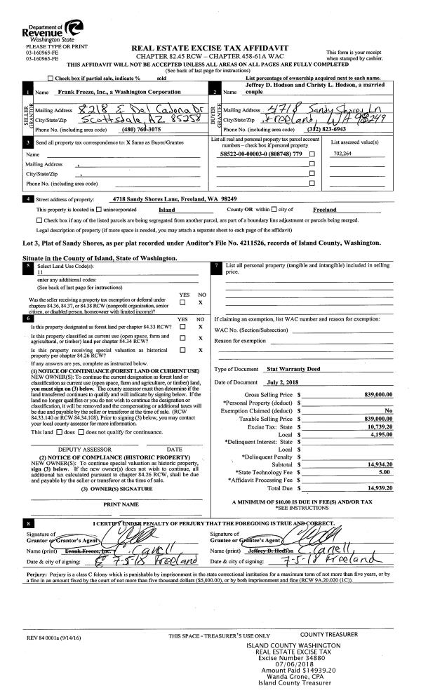
| Property ID: | 808748 | Abbreviated Legal Description: | SANDY SHORES LOT 3 INCL ADJ TIDES |
| Geographic ID: | S8522-00-00003-0 | Agent Code: | |
| Type: | Real | | |
| Tax Area: | 770 - APPRAISER-S Whid Schl Dist, Special District, improved & less than 1 acre | Land Use Code | 11 |
| Open Space: | N | DFL | N |
| Historic Property: | N | Remodel Property: | N |
| Multi-Family Redevelopment: | N | | |
| Township: | | Section: | |
| Range: | |
Location |
| Address: | 4817 SANDY SHORES LN FREELAND, WA 98249 | Mapsco: | |
| Neighborhood: | Cycle 3 | Map ID: | 290 |
| Neighborhood CD: | 3 |
Owner |
| Name: | HODSON, JEFFREY D | Owner ID: | 285890 |
| Mailing Address: | CHRISTY L HODSON 4817 SANDY SHORES LN FREELAND, WA 98249 | % Ownership: | 100.0000000000% |
| | | Exemptions: | |
Taxes and Assessment Details
Values
| (+) Improvement Homesite Value: | + | $0 | |
| (+) Improvement Non-Homesite Value: | + | $638,848 | |
| (+) Land Homesite Value: | + | $0 | |
| (+) Land Non-Homesite Value: | + | $625,000 | |
| (+) Curr Use (HS): | + | $0 | $0 |
| (+) Curr Use (NHS): | + | $0 | $0 |
| | | -------------------------- | |
| (=) Market Value: | = | $1,263,848 | |
| (–) Productivity Loss: | – | $0 | |
| | | -------------------------- | |
| (=) Subtotal: | = | $1,263,848 | |
| (+) Senior Appraised Value: | + | $0 | |
| (+) Non-Senior Appraised Value: | + | $1,263,848 | |
| | | -------------------------- | |
| (=) Total Appraised Value: | = | $1,263,848 | |
| (–) Senior Exemption Loss: | – | $0 | |
| (–) Exemption Loss: | – | $0 | |
| | | -------------------------- | |
| (=) Taxable Value: | = | $1,263,848 | |
Taxing Jurisdiction
| Owner: | HODSON, JEFFREY D | | |
| % Ownership: | 100.0000000000% | | |
| Total Value: | $1,263,848 | | |
| Tax Area: | 770 - APPRAISER-S Whid Schl Dist, Special District, improved & less than 1 acre |
| CF | Conservation Futures | 0.0313996660 | $1,263,848 | $1,263,848 | $39.68 | | |
| FIRE3 | Fire & Rescue Dist #3 S Whidbey GEN | 1.2130821753 | $1,263,848 | $1,263,848 | $1,533.15 | | |
| HOBOND | Hospital BOND | 0.1893405597 | $1,263,848 | $1,263,848 | $239.30 | | |
| HOGEN | Hospital GEN | 0.3848777722 | $1,263,848 | $1,263,848 | $486.43 | | |
| CE | County Current Expense | 0.3674210519 | $1,263,848 | $1,263,848 | $464.36 | | |
| CR | County Roads | 0.4614296361 | $1,263,848 | $1,263,848 | $583.18 | | |
| ISLANDEMS | Hospital GEN (EMS) | 0.4952018576 | $1,263,848 | $1,263,848 | $625.86 | | |
| LIB | Library Sno-Isle GEN | 0.3039084203 | $1,263,848 | $1,263,848 | $384.09 | | |
| PORTWHID | Port of S Whidbey GEN | 0.1086004714 | $1,263,848 | $1,263,848 | $137.25 | | |
| SCH206BOND | School 206 BOND | 0.5960237832 | $1,263,848 | $1,263,848 | $753.28 | | |
| SCH206CAP | School 206 CP | 0.3066144020 | $1,263,848 | $1,263,848 | $387.51 | | |
| SCH206MO | School 206 Enrichment | 0.4808755445 | $1,263,848 | $1,263,848 | $607.75 | | |
| ST | State School | 1.4761226122 | $1,263,848 | $1,263,848 | $1,865.59 | | |
| ST2 | State School Part 2 | 0.7953803475 | $1,263,848 | $1,263,848 | $1,005.24 | | |
| SWHIDPRBD | P & R S Whidbey BOND | 0.0144185398 | $1,263,848 | $1,263,848 | $18.22 | | |
| SWHIDPRBD3 | P & R S Whidbey BOND3 | 0.1483535547 | $1,263,848 | $1,263,848 | $187.50 | | |
| SWHIDPRMT | P & R S Whidbey GEN | 0.4600000000 | $1,263,848 | $1,263,848 | $581.37 | | |
| | Total Tax Rate: | 7.8330503944 | | | | | |
| | | | | Taxes w/Current Exemptions: | $9,899.76 | | |
| | | | | Taxes w/o Exemptions: | $9,899.76 | | |
Improvement / Building
| Improvement #1: | RESIDENTIAL | State Code: | Y | 2635.0 sqft | Value: | $638,848 |
| Bathrooms: | 2.5 | Bedrooms: | 3 | | Ceiling: | TONGUE & GROOVE | Exterior Wall/Cover: | CEMENT FIBER | | Floor Covering: | HARDWOOD/CARP 80-20 | Floor Structure: | WOOD W/SUBFLOOR | | Foundation: | CONCRETE | Heating: | FHA ELECTRIC | | Interior Finish: | DRYWALL PAINT | Plumbing Fixture Cnt: | 14 | | Roof Slope: | 8" IN 12" | Roof Structure/Cover: | CJ ASPHALT |
|
| | Type | Description | Class CD | Sub Class CD | Year Built | Area |
| | BAS | BASE/MAIN FLOOR | 5 | 0 | 2017 | 1340.0 |
| | AGR | ATTACHED GARAGE | 5 | 0 | 2017 | 660.0 |
| | DWN | DOWNSTAIRS LIVING AREA | 5 | 0 | 2017 | 1295.0 |
| | OWP | OPEN WOOD PORCH W/STEPS | 5 | 0 | 2017 | 192.0 |
| | OWP | OPEN WOOD PORCH W/STEPS | 5 | 0 | 2017 | 224.0 |
Sketch
Property Image
Land
| 1 | HB | HIGH BLUFF | 0.5900 | 25700.40 | 75.00 | 0.00 | 1.00 | $625,000 | $0 |
Roll Value History
| 2026 | N/A | N/A | N/A | N/A | N/A |
| 2025 | $638,848 | $625,000 | $0 | $1,263,848 | $1,263,848 |
| 2024 | $644,084 | $600,000 | $0 | $1,244,084 | $1,244,084 |
| 2023 | $649,322 | $575,000 | $0 | $1,224,322 | $1,224,322 |
| 2022 | $592,709 | $575,000 | $0 | $1,167,709 | $1,167,709 |
| 2021 | $519,526 | $300,000 | $0 | $819,526 | $819,526 |
| 2020 | $504,013 | $300,000 | $0 | $804,013 | $804,013 |
| 2019 | $413,532 | $375,000 | $0 | $788,532 | $788,532 |
| 2018 | $404,369 | $300,000 | $0 | $704,369 | $704,369 |
| 2017 | $139,655 | $100,000 | $0 | $239,655 | $239,655 |
| 2016 | $0 | $100,000 | $0 | $100,000 | $100,000 |
| 2015 | $0 | $100,000 | $0 | $100,000 | $100,000 |
| 2014 | $0 | $100,000 | $0 | $100,000 | $100,000 |
| 2013 | $0 | $100,000 | $0 | $100,000 | $100,000 |
| 2012 | $0 | $117,344 | $0 | $117,344 | $117,344 |
| 2011 | $0 | $117,344 | $0 | $117,344 | $117,344 |
| 2010 | $0 | $117,344 | $0 | $117,344 | $117,344 |
| 2009 | $0 | $146,680 | $0 | $146,680 | $146,680 |
| 2008 | $0 | $126,522 | $0 | $126,522 | $126,522 |
Deed and Sales History
| 1 | 07/02/2018 | WD | Warranty Deed | FRANK FREEZE INC | HODSON, JEFFREY D | | | $839,000.00 | 34880 | 4447523 |
| 2 | 01/01/1900 | OTHER | Other - Misc. Documents | Unknown | FRANK FREEZE INC, | | | $0.00 | 0 | 0 |
Payout Agreement
| No payout information available.. |