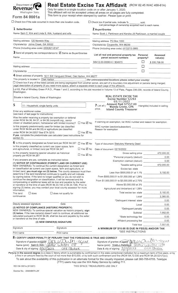
Property
Account |
| Property ID: | 808771 | Abbreviated Legal Description: | S450.57' EX N225.28' OF LOT 13 BLK 4 CAMANO SUNRISE #2 V3 SUR P89 EX E30' TGW EZ (PT TR 13-B & PT TR 13-A SP80-60.23112-027- 2920 V1 SP P131 AF#394510) |
| Geographic ID: | R23112-014-2890 | Agent Code: | |
| Type: | Real | | |
| Tax Area: | 512 - APPRAISER-Stan/Cam Schl Dist, improved, greater than 1 acre | Land Use Code | 11 |
| Open Space: | N | DFL | N |
| Historic Property: | N | Remodel Property: | N |
| Multi-Family Redevelopment: | N | | |
| Township: | 31 | Section: | 12 |
| Range: | R2 |
Location |
| Address: | 782 HIBBARD RD CAMANO ISLAND, WA 98282 | Mapsco: | |
| Neighborhood: | Cycle 5 | Map ID: | 474 |
| Neighborhood CD: | 5 |
Owner |
| Name: | LEE, ANDREW C | Owner ID: | 292332 |
| Mailing Address: | JACKIE R LEE 210 MOUNTAIN CREST CT CAMANO ISLAND, WA 98282 | % Ownership: | 100.0000000000% |
| | | Exemptions: | |
Taxes and Assessment Details
Values
| (+) Improvement Homesite Value: | + | $0 | |
| (+) Improvement Non-Homesite Value: | + | $634,299 | |
| (+) Land Homesite Value: | + | $0 | |
| (+) Land Non-Homesite Value: | + | $300,000 | |
| (+) Curr Use (HS): | + | $0 | $0 |
| (+) Curr Use (NHS): | + | $0 | $0 |
| | | -------------------------- | |
| (=) Market Value: | = | $934,299 | |
| (–) Productivity Loss: | – | $0 | |
| | | -------------------------- | |
| (=) Subtotal: | = | $934,299 | |
| (+) Senior Appraised Value: | + | $0 | |
| (+) Non-Senior Appraised Value: | + | $934,299 | |
| | | -------------------------- | |
| (=) Total Appraised Value: | = | $934,299 | |
| (–) Senior Exemption Loss: | – | $0 | |
| (–) Exemption Loss: | – | $0 | |
| | | -------------------------- | |
| (=) Taxable Value: | = | $934,299 | |
Taxing Jurisdiction
| Owner: | LEE, ANDREW C | | |
| % Ownership: | 100.0000000000% | | |
| Total Value: | $934,299 | | |
| Tax Area: | 512 - APPRAISER-Stan/Cam Schl Dist, improved, greater than 1 acre |
| CF | Conservation Futures | 0.0313996660 | $934,299 | $934,299 | $29.34 | | |
| EMS1 | Fire & Rescue Dist #1 Camano GEN (EMS) | 0.4998471806 | $934,299 | $934,299 | $467.01 | | |
| FIRE1 | Fire & Rescue Dist #1 Camano GEN | 1.2496603404 | $934,299 | $934,299 | $1,167.56 | | |
| FIRE1BOND | Fire & Rescue Dist #1 Camano BOND | 0.1630371212 | $934,299 | $934,299 | $152.33 | | |
| CE | County Current Expense | 0.3674210519 | $934,299 | $934,299 | $343.28 | | |
| CR | County Roads | 0.4614296361 | $934,299 | $934,299 | $431.11 | | |
| LIB | Library Sno-Isle GEN | 0.3039084203 | $934,299 | $934,299 | $283.94 | | |
| SCH205_401 | School 205-401 Enrichment | 1.3697998934 | $934,299 | $934,299 | $1,279.80 | | |
| SCH205BOND | School 205-401 BOND | 0.9354199323 | $934,299 | $934,299 | $873.96 | | |
| ST | State School | 1.4761226122 | $934,299 | $934,299 | $1,379.14 | | |
| ST2 | State School Part 2 | 0.7953803475 | $934,299 | $934,299 | $743.12 | | |
| | Total Tax Rate: | 7.6534262019 | | | | | |
| | | | | Taxes w/Current Exemptions: | $7,150.59 | | |
| | | | | Taxes w/o Exemptions: | $7,150.59 | | |
Improvement / Building
| Improvement #1: | RESIDENTIAL | State Code: | Y | 2708.0 sqft | Value: | $634,299 |
| Bathrooms: | 3.5 | Bedrooms: | 4 | | Ceiling: | DRYWALL PAINTED | Exterior Wall/Cover: | CEMENT FIBER | | Floor Covering: | VINYL 100% | Floor Structure: | WOOD W/SUBFLOOR | | Foundation: | CONCRETE | Heating: | FHA ELECTRIC | | Interior Finish: | DRYWALL PAINT | Plumbing Fixture Cnt: | 14 | | Roof Slope: | 18" IN 12" | Roof Structure/Cover: | CJ ASPHALT |
|
| | Type | Description | Class CD | Sub Class CD | Year Built | Area |
| | BAS | BASE/MAIN FLOOR | 4 | 0 | 2020 | 2370.0 |
| | UPS | UPPER STORY | 4 | 0 | 2020 | 338.0 |
| | AGR | ATTACHED GARAGE | 4 | 0 | 2020 | 616.8 |
| | OWP | OPEN WOOD PORCH W/STEPS | 4 | 0 | 2020 | 294.0 |
| | OP4 | OPEN PORCH W/CEILING-ROOF | 4 | 0 | 2020 | 242.8 |
Sketch
Property Image
Land
| 1 | 18 | AC (02.01-03.00) | 0.0000 | 0.00 | 0.00 | 0.00 | 1.00 | $300,000 | $0 |
Roll Value History
| 2026 | N/A | N/A | N/A | N/A | N/A |
| 2025 | $634,299 | $300,000 | $0 | $934,299 | $934,299 |
| 2024 | $639,373 | $280,000 | $0 | $919,373 | $919,373 |
| 2023 | $644,448 | $270,000 | $0 | $914,448 | $914,448 |
| 2022 | $589,695 | $260,000 | $0 | $849,695 | $849,695 |
| 2021 | $469,879 | $180,000 | $0 | $649,879 | $649,879 |
| 2020 | $117,364 | $90,000 | $0 | $207,364 | $207,364 |
| 2019 | $0 | $90,000 | $0 | $90,000 | $90,000 |
| 2018 | $0 | $80,000 | $0 | $80,000 | $80,000 |
| 2017 | $0 | $80,000 | $0 | $80,000 | $80,000 |
| 2016 | $0 | $70,000 | $0 | $70,000 | $70,000 |
| 2015 | $0 | $75,000 | $0 | $75,000 | $75,000 |
| 2014 | $0 | $112,000 | $0 | $112,000 | $112,000 |
| 2013 | $0 | $112,000 | $0 | $112,000 | $112,000 |
| 2012 | $0 | $112,000 | $0 | $112,000 | $112,000 |
| 2011 | $0 | $112,000 | $0 | $112,000 | $112,000 |
| 2010 | $0 | $112,000 | $0 | $112,000 | $112,000 |
| 2009 | $0 | $135,000 | $0 | $135,000 | $135,000 |
| 2008 | $0 | $145,000 | $0 | $145,000 | $145,000 |
| 2007 | $0 | $0 | $0 | $140,000 | $140,000 |
Deed and Sales History
| 1 | 05/21/2020 | QCD | Quit Claim Deed | LEE, ANDREW C | LEE, ANDREW C | | | $0.00 | 43110 | 4487270 |
| 2 | 10/02/2019 | QCD | Quit Claim Deed | LEE, LAURI A | LEE, ANDREW C | | | $0.00 | 40811 | 4473977 |
| 3 | 09/05/2013 | QCD | Quit Claim Deed | LEE, WILLIAM E | LEE, LAURI A | | | $0.00 | 12706 | 4347700 |
| 4 | 04/02/2008 | BLA | DNU - Boundary Line Adjustment | Unknown | LEE, WILLIAM E | | | $0.00 | 80665 | 4179385 |
Payout Agreement
| No payout information available.. |