Property
Account |
| Property ID: | 808810 | Abbreviated Legal Description: | LOT 3 SP 36-05.23224.317-4710 AF# 4227851 |
| Geographic ID: | R23224-279-4720 | Agent Code: | |
| Type: | Real | | |
| Tax Area: | 512 - APPRAISER-Stan/Cam Schl Dist, improved, greater than 1 acre | Land Use Code | 11 |
| Open Space: | N | DFL | N |
| Historic Property: | N | Remodel Property: | N |
| Multi-Family Redevelopment: | N | | |
| Township: | 32 | Section: | 24 |
| Range: | R2 |
Location |
| Address: | 1025 CLEARWATER PLACE CAMANO ISLAND, WA 98282 | Mapsco: | |
| Neighborhood: | North Camano | Map ID: | 561 |
| Neighborhood CD: | 06-C |
Owner |
| Name: | ABRAMS JTWROS, JENNIFER V | Owner ID: | 316211 |
| Mailing Address: | MARSHAL S WILLICK, ESQ. JTWROS 1120 SPARKLING AMBER COURT LAS VEGAS, NV 89144 | % Ownership: | 100.0000000000% |
| | | Exemptions: | |
Taxes and Assessment Details
Values
| (+) Improvement Homesite Value: | + | $0 | |
| (+) Improvement Non-Homesite Value: | + | $862,884 | |
| (+) Land Homesite Value: | + | $0 | |
| (+) Land Non-Homesite Value: | + | $450,000 | |
| (+) Curr Use (HS): | + | $0 | $0 |
| (+) Curr Use (NHS): | + | $0 | $0 |
| | | -------------------------- | |
| (=) Market Value: | = | $1,312,884 | |
| (–) Productivity Loss: | – | $0 | |
| | | -------------------------- | |
| (=) Subtotal: | = | $1,312,884 | |
| (+) Senior Appraised Value: | + | $0 | |
| (+) Non-Senior Appraised Value: | + | $1,312,884 | |
| | | -------------------------- | |
| (=) Total Appraised Value: | = | $1,312,884 | |
| (–) Senior Exemption Loss: | – | $0 | |
| (–) Exemption Loss: | – | $0 | |
| | | -------------------------- | |
| (=) Taxable Value: | = | $1,312,884 | |
Taxing Jurisdiction
| Owner: | ABRAMS JTWROS, JENNIFER V | | |
| % Ownership: | 100.0000000000% | | |
| Total Value: | $1,312,884 | | |
| Tax Area: | 512 - APPRAISER-Stan/Cam Schl Dist, improved, greater than 1 acre |
| CF | Conservation Futures | 0.0313996660 | $1,312,884 | $1,312,884 | $41.22 | | |
| EMS1 | Fire & Rescue Dist #1 Camano GEN (EMS) | 0.4998471806 | $1,312,884 | $1,312,884 | $656.24 | | |
| FIRE1 | Fire & Rescue Dist #1 Camano GEN | 1.2496603404 | $1,312,884 | $1,312,884 | $1,640.66 | | |
| FIRE1BOND | Fire & Rescue Dist #1 Camano BOND | 0.1630371212 | $1,312,884 | $1,312,884 | $214.05 | | |
| CE | County Current Expense | 0.3674210519 | $1,312,884 | $1,312,884 | $482.38 | | |
| CR | County Roads | 0.4614296361 | $1,312,884 | $1,312,884 | $605.80 | | |
| LIB | Library Sno-Isle GEN | 0.3039084203 | $1,312,884 | $1,312,884 | $399.00 | | |
| SCH205_401 | School 205-401 Enrichment | 1.3697998934 | $1,312,884 | $1,312,884 | $1,798.39 | | |
| SCH205BOND | School 205-401 BOND | 0.9354199323 | $1,312,884 | $1,312,884 | $1,228.10 | | |
| ST | State School | 1.4761226122 | $1,312,884 | $1,312,884 | $1,937.98 | | |
| ST2 | State School Part 2 | 0.7953803475 | $1,312,884 | $1,312,884 | $1,044.24 | | |
| | Total Tax Rate: | 7.6534262019 | | | | | |
| | | | | Taxes w/Current Exemptions: | $10,048.06 | | |
| | | | | Taxes w/o Exemptions: | $10,048.06 | | |
Improvement / Building
| Improvement #1: | RESIDENTIAL | State Code: | Y | 3111.2 sqft | Value: | $862,884 |
| Bathrooms: | 3 | Bedrooms: | 3 | | Ceiling: | DRYWALL PAINTED | Cooling: | HEAT PUMP/CONV/V | | Exterior Wall/Cover: | CEMENT FIBER | Floor Covering: | CARPET/VINYL 60-40 | | Floor Structure: | WOOD W/SUBFLOOR | Foundation: | CONCRETE | | Interior Finish: | DRYWALL PAINT | Plumbing Fixture Cnt: | 16 | | Roof Slope: | 4" IN 12" | Roof Structure/Cover: | CJ ASPHALT |
|
| | Type | Description | Class CD | Sub Class CD | Year Built | Area |
| | BAS | BASE/MAIN FLOOR | 5 | 0 | 2020 | 3111.2 |
| | AGR | ATTACHED GARAGE | 5 | 0 | 2020 | 2358.0 |
| | OWP | OPEN WOOD PORCH W/STEPS | 5 | 0 | 2020 | 416.0 |
| | OP4 | OPEN PORCH W/CEILING-ROOF | 5 | 0 | 2020 | 90.0 |
| | OWC | OPEN WOOD PORCH W/STEPS/ROOF/C | 5 | 0 | 2020 | 160.0 |
| | OWC | OPEN WOOD PORCH W/STEPS/ROOF/C | 5 | 0 | 2020 | 384.0 |
Sketch
| No sketches available for this property. |
Property Image
Land
| 1 | 17 | AC (01.01-02.00) | 0.0000 | 0.00 | 0.00 | 0.00 | 1.00 | $450,000 | $0 |
Roll Value History
| 2026 | N/A | N/A | N/A | N/A | N/A |
| 2025 | $862,884 | $450,000 | $0 | $1,312,884 | $1,312,884 |
| 2024 | $806,419 | $450,000 | $0 | $1,256,419 | $1,256,419 |
| 2023 | $814,886 | $440,000 | $0 | $1,254,886 | $1,254,886 |
| 2022 | $751,295 | $370,000 | $0 | $1,121,295 | $1,121,295 |
| 2021 | $666,649 | $260,000 | $0 | $926,649 | $926,649 |
| 2020 | $46,618 | $160,000 | $0 | $206,618 | $206,618 |
| 2019 | $0 | $130,000 | $0 | $130,000 | $130,000 |
| 2018 | $0 | $120,000 | $0 | $120,000 | $120,000 |
| 2017 | $0 | $120,000 | $0 | $120,000 | $120,000 |
| 2016 | $0 | $100,000 | $0 | $100,000 | $100,000 |
| 2015 | $0 | $100,000 | $0 | $100,000 | $100,000 |
| 2014 | $0 | $100,000 | $0 | $100,000 | $100,000 |
| 2013 | $0 | $88,000 | $0 | $88,000 | $88,000 |
| 2012 | $0 | $88,000 | $0 | $88,000 | $88,000 |
| 2011 | $0 | $88,000 | $0 | $88,000 | $88,000 |
| 2010 | $0 | $88,000 | $0 | $88,000 | $88,000 |
| 2009 | $0 | $95,000 | $0 | $95,000 | $95,000 |
| 2008 | $0 | $1 | $0 | $1 | $1 |
Deed and Sales History
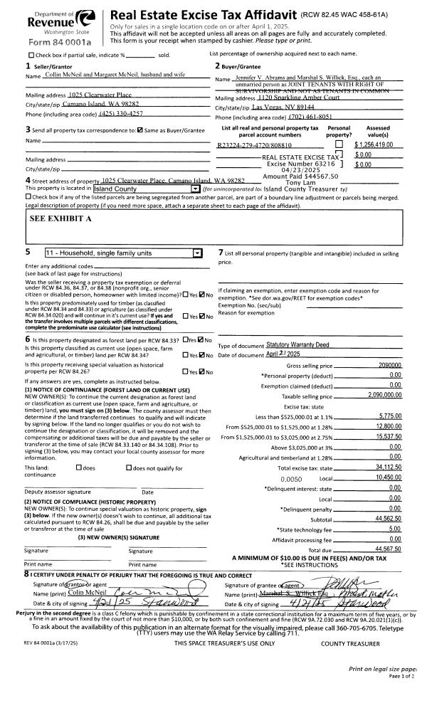
| 1 | 04/21/2025 | WD | Warranty Deed | MCNEIL, COLLIN | ABRAMS JTWROS, JENNIFER V | | | $2,090,000.00 | 63216 | 4584844 |
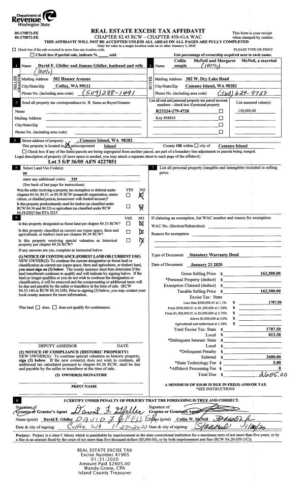
| 2 | 01/23/2020 | WD | Warranty Deed | GFELLER, DAVID F | MCNEIL, COLLIN | | | $162,500.00 | 41965 | 4480454 |
| 3 | 01/23/2020 | QCD | Quit Claim Deed | D & J LAKESIDE LLC | GFELLER, DAVID F | | | $0.00 | 41964 | 4480453 |
| 4 | 01/01/1900 | OTHER | Other - Misc. Documents | Unknown | D & J LAKESIDE LLC, | | | $0.00 | 0 | 0 |
Payout Agreement
| No payout information available.. |