Property
Account |
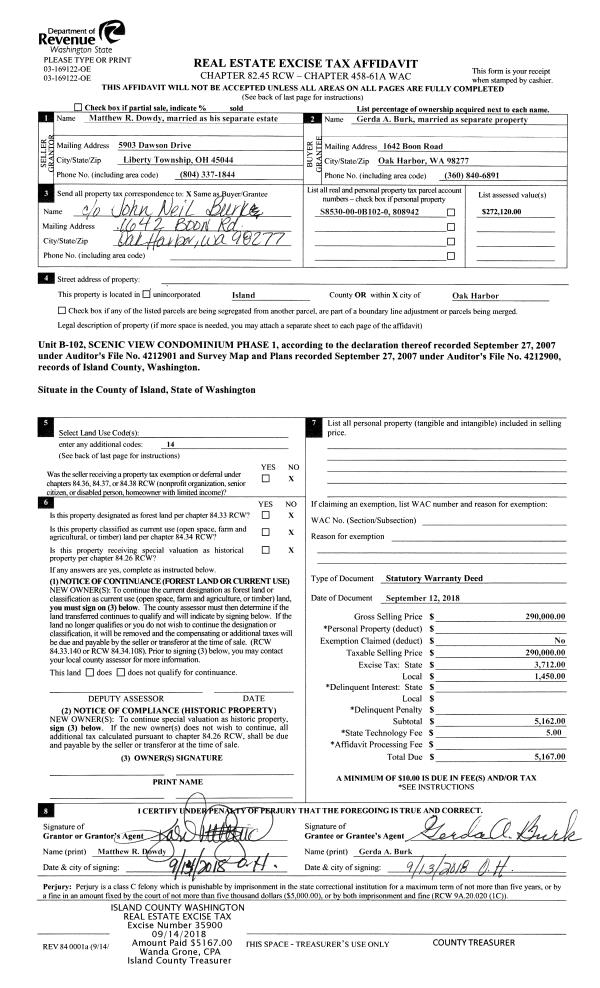
| Property ID: | 808942 | Abbreviated Legal Description: | SCENIC VIEW - CONDO UNIT B102 8.333% INT |
| Geographic ID: | S8530-00-0B102-0 | Agent Code: | |
| Type: | Real | | |
| Tax Area: | 100 - APPRAISER-OH Schl Dist, in OH | Land Use Code | 14 |
| Open Space: | N | DFL | N |
| Historic Property: | N | Remodel Property: | N |
| Multi-Family Redevelopment: | N | | |
| Township: | | Section: | |
| Range: | |
Location |
| Address: | 1850 SW SCENIC HEIGHTS ST UNIT B102 OAK HARBOR, WA 98277 | Mapsco: | |
| Neighborhood: | 3A*OH-scenic view | Map ID: | 91 |
| Neighborhood CD: | 3A*OHscevw |
Owner |
| Name: | STEPHENS, TON-ANN | Owner ID: | 299641 |
| Mailing Address: | 1850 SW SCENIC HEIGHTS ST B102 OAK HARBOR, WA 98277 | % Ownership: | 100.0000000000% |
| | | Exemptions: | |
Taxes and Assessment Details
Values
| (+) Improvement Homesite Value: | + | $0 | |
| (+) Improvement Non-Homesite Value: | + | $328,292 | |
| (+) Land Homesite Value: | + | $0 | |
| (+) Land Non-Homesite Value: | + | $75,000 | |
| (+) Curr Use (HS): | + | $0 | $0 |
| (+) Curr Use (NHS): | + | $0 | $0 |
| | | -------------------------- | |
| (=) Market Value: | = | $403,292 | |
| (–) Productivity Loss: | – | $0 | |
| | | -------------------------- | |
| (=) Subtotal: | = | $403,292 | |
| (+) Senior Appraised Value: | + | $0 | |
| (+) Non-Senior Appraised Value: | + | $403,292 | |
| | | -------------------------- | |
| (=) Total Appraised Value: | = | $403,292 | |
| (–) Senior Exemption Loss: | – | $0 | |
| (–) Exemption Loss: | – | $0 | |
| | | -------------------------- | |
| (=) Taxable Value: | = | $403,292 | |
Taxing Jurisdiction
| Owner: | STEPHENS, TON-ANN | | |
| % Ownership: | 100.0000000000% | | |
| Total Value: | $403,292 | | |
| Tax Area: | 100 - APPRAISER-OH Schl Dist, in OH |
| CF | Conservation Futures | 0.0313996660 | $403,292 | $403,292 | $12.66 | | |
| CEM1 | Cemetery #1 | 0.0040018856 | $403,292 | $403,292 | $1.61 | | |
| COH | City of Oak Harbor | 2.3090730572 | $403,292 | $403,292 | $931.23 | | |
| OAKBOND | City of Oak Harbor BOND | 0.1902260131 | $403,292 | $403,292 | $76.72 | | |
| HOBOND | Hospital BOND | 0.1893405597 | $403,292 | $403,292 | $76.36 | | |
| HOGEN | Hospital GEN | 0.3848777722 | $403,292 | $403,292 | $155.22 | | |
| CE | County Current Expense | 0.3674210519 | $403,292 | $403,292 | $148.18 | | |
| ISLANDEMS | Hospital GEN (EMS) | 0.4952018576 | $403,292 | $403,292 | $199.71 | | |
| LIB | Library Sno-Isle GEN | 0.3039084203 | $403,292 | $403,292 | $122.56 | | |
| NWHIDPRMT | P & R N Whidbey GEN | 0.1990272349 | $403,292 | $403,292 | $80.27 | | |
| SCH201MO | School 201 Enrichment | 2.3851112745 | $403,292 | $403,292 | $961.90 | | |
| ST | State School | 1.4761226122 | $403,292 | $403,292 | $595.31 | | |
| ST2 | State School Part 2 | 0.7953803475 | $403,292 | $403,292 | $320.77 | | |
| | Total Tax Rate: | 9.1310917527 | | | | | |
| | | | | Taxes w/Current Exemptions: | $3,682.50 | | |
| | | | | Taxes w/o Exemptions: | $3,682.50 | | |
Improvement / Building
| Improvement #1: | RESIDENTIAL | State Code: | A1 | 1590.0 sqft | Value: | $328,292 |
| Bathrooms: | 2 | Bedrooms: | 2 | | Ceiling: | DRYWALL PAINTED | Cooling: | HEAT PUMP/CONV/V | | Exterior Wall/Cover: | CEMENT FIBER | Floor Covering: | HARDWOOD/CARP 60-40 | | Floor Structure: | SLAB ABOVE GRADE | Foundation: | CONCRETE | | Interior Finish: | DRYWALL PAINT | Plumbing Fixture Cnt: | 9 | | Roof Slope: | 4" IN 12" | Roof Structure/Cover: | BEAM BUILT-UP ROCK |
|
| | Type | Description | Class CD | Sub Class CD | Year Built | Area |
| | BAS | BASE/MAIN FLOOR | 3 | 0 | 2006 | 1590.0 |
| | UTY | STORAGE/UTILITY | 3 | 0 | 2006 | 24.0 |
| | OWC | OPEN WOOD PORCH W/STEPS/ROOF/C | 3 | 0 | 2006 | 104.0 |
| | COMA | Common Area Improvement | 3 | 0 | 2006 | 0.0 |
Sketch
Property Image
Land
| 1 | 61 | MULTIPLE RESIDENCES | 0.0000 | 1540.00 | 0.00 | 0.00 | 1.00 | $75,000 | $0 |
Roll Value History
| 2026 | N/A | N/A | N/A | N/A | N/A |
| 2025 | $328,292 | $75,000 | $0 | $403,292 | $403,292 |
| 2024 | $331,633 | $75,000 | $0 | $406,633 | $406,633 |
| 2023 | $334,974 | $75,000 | $0 | $409,974 | $409,974 |
| 2022 | $295,963 | $75,000 | $0 | $370,963 | $370,963 |
| 2021 | $265,343 | $55,000 | $0 | $320,343 | $320,343 |
| 2020 | $259,729 | $50,000 | $0 | $309,729 | $309,729 |
| 2019 | $206,575 | $95,000 | $0 | $301,575 | $301,575 |
| 2018 | $207,120 | $65,000 | $0 | $272,120 | $272,120 |
| 2017 | $208,209 | $38,500 | $0 | $246,709 | $246,709 |
| 2016 | $210,387 | $38,500 | $0 | $248,887 | $248,887 |
| 2015 | $212,564 | $38,500 | $0 | $251,064 | $251,064 |
| 2014 | $214,741 | $38,500 | $0 | $253,241 | $253,241 |
| 2013 | $207,310 | $38,500 | $0 | $245,810 | $245,810 |
| 2012 | $211,622 | $38,500 | $0 | $250,122 | $250,122 |
| 2011 | $211,622 | $38,500 | $0 | $250,122 | $250,122 |
| 2010 | $207,014 | $22,946 | $0 | $229,960 | $229,960 |
| 2009 | $226,454 | $23,100 | $0 | $249,554 | $249,554 |
| 2008 | $185,864 | $56,063 | $0 | $241,927 | $241,927 |
| 2007 | $0 | $0 | $0 | $144,803 | $144,803 |
Deed and Sales History
| 1 | 05/27/2021 | WD | Warranty Deed | BURK, GERDA A | STEPHENS, TON-ANN | | | $373,000.00 | 48521 | 4520844 |
| 2 | 09/12/2018 | QCD | Quit Claim Deed | BURK, GERDA A | BURK, GERDA A | | | $0.00 | 35901 | 4451762 |
| 3 | 09/12/2018 | WD | Warranty Deed | DOWDY, MATTHEW R | BURK, GERDA A | | | $290,000.00 | 35900 | 4451760 |
| 4 | 11/05/2012 | ESTSEPPROP | Establish Separate Property | DOWDY, MATTHEW R | DOWDY, MATTHEW R | | | $0.00 | 9450 | 4327247 |
| 5 | 02/19/2009 | WD | Warranty Deed | HOMESTAR NORTHWEST LLC, | DOWDY, MATTHEW R | | | $265,450.00 | 90430 | 4245528 |
| 6 | 01/01/1900 | OTHER | Other - Misc. Documents | Unknown | HOMESTAR NORTHWEST LLC, | | | $0.00 | 0 | 0 |
Payout Agreement
| No payout information available.. |