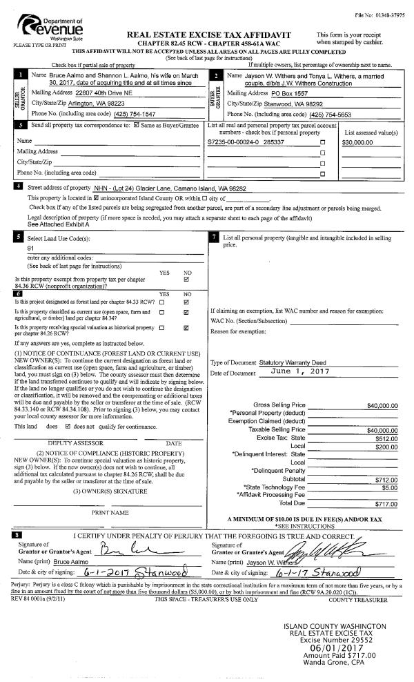
Property
Account |
| Property ID: | 808987 | Abbreviated Legal Description: | LOT 3 SP 145-07.23203.100-3320 AF#4233462 |
| Geographic ID: | R23203-090-3500 | Agent Code: | |
| Type: | Real | | |
| Tax Area: | 112 - APPRAISER-OH Schl Dist, outside OH, improved, greater than 1 acre | Land Use Code | 11 |
| Open Space: | N | DFL | N |
| Historic Property: | N | Remodel Property: | N |
| Multi-Family Redevelopment: | N | | |
| Township: | 32 | Section: | 03 |
| Range: | R2 |
Location |
| Address: | 1484 COHO RIDGE WAY OAK HARBOR, WA 98277 | Mapsco: | |
| Neighborhood: | Cycle 6 | Map ID: | 541 |
| Neighborhood CD: | 6 |
Owner |
| Name: | MASSEY, WILLIAM L JR | Owner ID: | 279753 |
| Mailing Address: | SHELLIE MASSEY 1484 COHO RIDGE WAY OAK HARBOR, WA 98277 | % Ownership: | 100.0000000000% |
| | | Exemptions: | |
Taxes and Assessment Details
Values
| (+) Improvement Homesite Value: | + | $0 | |
| (+) Improvement Non-Homesite Value: | + | $603,738 | |
| (+) Land Homesite Value: | + | $0 | |
| (+) Land Non-Homesite Value: | + | $390,000 | |
| (+) Curr Use (HS): | + | $0 | $0 |
| (+) Curr Use (NHS): | + | $0 | $0 |
| | | -------------------------- | |
| (=) Market Value: | = | $993,738 | |
| (–) Productivity Loss: | – | $0 | |
| | | -------------------------- | |
| (=) Subtotal: | = | $993,738 | |
| (+) Senior Appraised Value: | + | $0 | |
| (+) Non-Senior Appraised Value: | + | $993,738 | |
| | | -------------------------- | |
| (=) Total Appraised Value: | = | $993,738 | |
| (–) Senior Exemption Loss: | – | $0 | |
| (–) Exemption Loss: | – | $0 | |
| | | -------------------------- | |
| (=) Taxable Value: | = | $993,738 | |
Taxing Jurisdiction
| Owner: | MASSEY, WILLIAM L JR | | |
| % Ownership: | 100.0000000000% | | |
| Total Value: | $993,738 | | |
| Tax Area: | 112 - APPRAISER-OH Schl Dist, outside OH, improved, greater than 1 acre |
| CF | Conservation Futures | 0.0313996660 | $993,738 | $993,738 | $31.20 | | |
| CEM1 | Cemetery #1 | 0.0040018856 | $993,738 | $993,738 | $3.98 | | |
| FIRE2 | Fire & Rescue Dist #2 N Whidbey GEN | 0.5381486274 | $993,738 | $993,738 | $534.78 | | |
| HOBOND | Hospital BOND | 0.1893405597 | $993,738 | $993,738 | $188.15 | | |
| HOGEN | Hospital GEN | 0.3848777722 | $993,738 | $993,738 | $382.47 | | |
| CE | County Current Expense | 0.3674210519 | $993,738 | $993,738 | $365.12 | | |
| CR | County Roads | 0.4614296361 | $993,738 | $993,738 | $458.54 | | |
| ISLANDEMS | Hospital GEN (EMS) | 0.4952018576 | $993,738 | $993,738 | $492.10 | | |
| LIB | Library Sno-Isle GEN | 0.3039084203 | $993,738 | $993,738 | $302.01 | | |
| NWHIDPRMT | P & R N Whidbey GEN | 0.1990272349 | $993,738 | $993,738 | $197.78 | | |
| SCH201MO | School 201 Enrichment | 2.3851112745 | $993,738 | $993,738 | $2,370.18 | | |
| ST | State School | 1.4761226122 | $993,738 | $993,738 | $1,466.88 | | |
| ST2 | State School Part 2 | 0.7953803475 | $993,738 | $993,738 | $790.40 | | |
| | Total Tax Rate: | 7.6313709459 | | | | | |
| | | | | Taxes w/Current Exemptions: | $7,583.59 | | |
| | | | | Taxes w/o Exemptions: | $7,583.59 | | |
Improvement / Building
| Improvement #1: | RESIDENTIAL | State Code: | Y | 2527.5 sqft | Value: | $603,738 |
| Bathrooms: | 2 | Bedrooms: | 3 | | Ceiling: | DRYWALL PAINTED | Cooling: | HEAT PUMP/CONV/V | | Exterior Wall/Cover: | CEMENT FIBER | Floor Covering: | VINYL TILE/HARWD 20-80 | | Floor Structure: | SLAB ON GRADE | Foundation: | SLAB/CONCRETE | | Interior Finish: | DRYWALL PAINT | Plumbing Fixture Cnt: | 13 | | Roof Slope: | 10" IN 12" | Roof Structure/Cover: | CJ ASPHALT |
|
| | Type | Description | Class CD | Sub Class CD | Year Built | Area |
| | BAS | BASE/MAIN FLOOR | 5 | 0 | 2017 | 2095.5 |
| | AGR | ATTACHED GARAGE | 5 | 0 | 2017 | 683.2 |
| | DWN | DOWNSTAIRS LIVING AREA | 5 | 0 | 2017 | 432.0 |
| | OP4 | OPEN PORCH W/CEILING-ROOF | 5 | 0 | 2017 | 66.5 |
| | OWP | OPEN WOOD PORCH W/STEPS | 5 | 0 | 2017 | 154.0 |
Sketch
Property Image
Land
| 1 | 32 | AC (03.01-09.99) | 4.5100 | 0.00 | 0.00 | 0.00 | 1.00 | $390,000 | $0 |
Roll Value History
| 2026 | N/A | N/A | N/A | N/A | N/A |
| 2025 | $603,738 | $390,000 | $0 | $993,738 | $993,738 |
| 2024 | $608,687 | $350,000 | $0 | $958,687 | $958,687 |
| 2023 | $613,637 | $340,000 | $0 | $953,637 | $953,637 |
| 2022 | $469,628 | $320,000 | $0 | $789,628 | $789,628 |
| 2021 | $411,832 | $240,000 | $0 | $651,832 | $651,832 |
| 2020 | $399,333 | $160,000 | $0 | $559,333 | $559,333 |
| 2019 | $319,733 | $220,000 | $0 | $539,733 | $539,733 |
| 2018 | $320,548 | $200,000 | $0 | $520,548 | $520,548 |
| 2017 | $325,429 | $165,000 | $0 | $490,429 | $490,429 |
| 2016 | $44,789 | $140,000 | $0 | $184,789 | $184,789 |
| 2015 | $0 | $60,000 | $0 | $60,000 | $60,000 |
| 2014 | $0 | $75,000 | $0 | $75,000 | $75,000 |
| 2013 | $0 | $58,630 | $0 | $58,630 | $58,630 |
| 2012 | $0 | $90,200 | $0 | $90,200 | $90,200 |
| 2011 | $0 | $90,200 | $0 | $90,200 | $90,200 |
| 2010 | $0 | $90,200 | $0 | $90,200 | $90,200 |
| 2009 | $0 | $121,770 | $0 | $121,770 | $121,770 |
| 2008 | $0 | $0 | $0 | $71,130 | $71,130 |
Deed and Sales History
| 1 | 04/27/2017 | WD | Warranty Deed | VALLEY HIGH INVESTMENTS INC | MASSEY, WILLIAM L JR | | | $515,000.00 | 29083 | 4421595 |
| 2 | 01/01/1900 | OTHER | Other - Misc. Documents | Unknown | VALLEY HIGH INVESTMTS INC, | | | $0.00 | 0 | 0 |
Payout Agreement
| No payout information available.. |