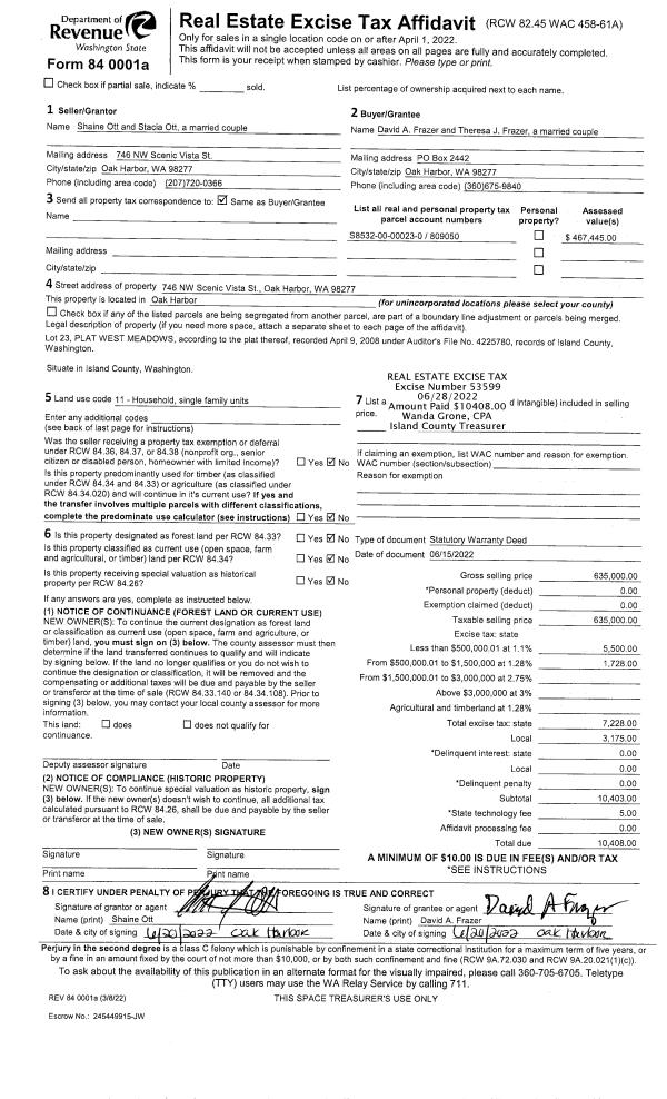
Property
Account |
| Property ID: | 809050 | Abbreviated Legal Description: | WEST MEADOWS LOT 23 |
| Geographic ID: | S8532-00-00023-0 | Agent Code: | |
| Type: | Real | | |
| Tax Area: | 100 - APPRAISER-OH Schl Dist, in OH | Land Use Code | 11 |
| Open Space: | N | DFL | N |
| Historic Property: | N | Remodel Property: | N |
| Multi-Family Redevelopment: | N | | |
| Township: | | Section: | |
| Range: | |
Location |
| Address: | 746 NW SCENIC VISTA ST OAK HARBOR, WA 98277 | Mapsco: | |
| Neighborhood: | Cycle 1 | Map ID: | 251 |
| Neighborhood CD: | 1 |
Owner |
| Name: | FRAZER, DAVID A | Owner ID: | 307193 |
| Mailing Address: | THERESA J FRAZER 746 SCENIC VISTA ST OAK HARBOR, WA 98277-7265 | % Ownership: | 100.0000000000% |
| | | Exemptions: | |
Taxes and Assessment Details
Values
| (+) Improvement Homesite Value: | + | $0 | |
| (+) Improvement Non-Homesite Value: | + | $479,337 | |
| (+) Land Homesite Value: | + | $0 | |
| (+) Land Non-Homesite Value: | + | $135,000 | |
| (+) Curr Use (HS): | + | $0 | $0 |
| (+) Curr Use (NHS): | + | $0 | $0 |
| | | -------------------------- | |
| (=) Market Value: | = | $614,337 | |
| (–) Productivity Loss: | – | $0 | |
| | | -------------------------- | |
| (=) Subtotal: | = | $614,337 | |
| (+) Senior Appraised Value: | + | $0 | |
| (+) Non-Senior Appraised Value: | + | $614,337 | |
| | | -------------------------- | |
| (=) Total Appraised Value: | = | $614,337 | |
| (–) Senior Exemption Loss: | – | $0 | |
| (–) Exemption Loss: | – | $0 | |
| | | -------------------------- | |
| (=) Taxable Value: | = | $614,337 | |
Taxing Jurisdiction
| Owner: | FRAZER, DAVID A | | |
| % Ownership: | 100.0000000000% | | |
| Total Value: | $614,337 | | |
| Tax Area: | 100 - APPRAISER-OH Schl Dist, in OH |
| CF | Conservation Futures | 0.0313996660 | $614,337 | $614,337 | $19.29 | | |
| CEM1 | Cemetery #1 | 0.0040018856 | $614,337 | $614,337 | $2.46 | | |
| COH | City of Oak Harbor | 2.3090730572 | $614,337 | $614,337 | $1,418.55 | | |
| OAKBOND | City of Oak Harbor BOND | 0.1902260131 | $614,337 | $614,337 | $116.86 | | |
| HOBOND | Hospital BOND | 0.1893405597 | $614,337 | $614,337 | $116.32 | | |
| HOGEN | Hospital GEN | 0.3848777722 | $614,337 | $614,337 | $236.44 | | |
| CE | County Current Expense | 0.3674210519 | $614,337 | $614,337 | $225.72 | | |
| ISLANDEMS | Hospital GEN (EMS) | 0.4952018576 | $614,337 | $614,337 | $304.22 | | |
| LIB | Library Sno-Isle GEN | 0.3039084203 | $614,337 | $614,337 | $186.70 | | |
| NWHIDPRMT | P & R N Whidbey GEN | 0.1990272349 | $614,337 | $614,337 | $122.27 | | |
| SCH201MO | School 201 Enrichment | 2.3851112745 | $614,337 | $614,337 | $1,465.26 | | |
| ST | State School | 1.4761226122 | $614,337 | $614,337 | $906.84 | | |
| ST2 | State School Part 2 | 0.7953803475 | $614,337 | $614,337 | $488.63 | | |
| | Total Tax Rate: | 9.1310917527 | | | | | |
| | | | | Taxes w/Current Exemptions: | $5,609.56 | | |
| | | | | Taxes w/o Exemptions: | $5,609.56 | | |
Improvement / Building
| Improvement #1: | RESIDENTIAL | State Code: | Y | 2302.5 sqft | Value: | $479,337 |
| Bathrooms: | 2.5 | Bedrooms: | 4 | | Ceiling: | DRYWALL PAINTED | Exterior Wall/Cover: | PLY/HARDBOARD T-111 | | Floor Covering: | HARDWOOD/CARP 60-40 | Floor Structure: | WOOD W/SUBFLOOR | | Foundation: | CONCRETE | Heating: | FHA GAS | | Interior Finish: | DRYWALL PAINT | Plumbing Fixture Cnt: | 14 | | Roof Slope: | 6" IN 12" | Roof Structure/Cover: | CJ ASPHALT |
|
| | Type | Description | Class CD | Sub Class CD | Year Built | Area |
| | BAS | BASE/MAIN FLOOR | 4 | 0 | 2010 | 907.9 |
| | OP1 | OPEN PORCH SLAB | 4 | 0 | 2010 | 375.6 |
| | OP4 | OPEN PORCH W/CEILING-ROOF | 4 | 0 | 2010 | 76.7 |
| | BIG | BUILT IN GARAGE | 4 | 0 | 2010 | 839.0 |
| | UPS | UPPER STORY | 4 | 0 | 2010 | 1394.6 |
Sketch
Property Image
Land
| 1 | 13 | SQ (06001-08000) | 0.1788 | 7789.21 | 0.00 | 0.00 | 1.00 | $135,000 | $0 |
Roll Value History
| 2026 | N/A | N/A | N/A | N/A | N/A |
| 2025 | $479,337 | $135,000 | $0 | $614,337 | $614,337 |
| 2024 | $483,598 | $130,000 | $0 | $613,598 | $613,598 |
| 2023 | $470,017 | $150,000 | $0 | $620,017 | $620,017 |
| 2022 | $430,440 | $120,000 | $0 | $550,440 | $550,440 |
| 2021 | $377,445 | $90,000 | $0 | $467,445 | $467,445 |
| 2020 | $366,476 | $90,000 | $0 | $456,476 | $456,476 |
| 2019 | $271,939 | $145,000 | $0 | $416,939 | $416,939 |
| 2018 | $272,676 | $120,000 | $0 | $392,676 | $392,676 |
| 2017 | $243,549 | $110,000 | $0 | $353,549 | $353,549 |
| 2016 | $246,198 | $90,000 | $0 | $336,198 | $336,198 |
| 2015 | $248,844 | $70,000 | $0 | $318,844 | $318,844 |
| 2014 | $251,491 | $55,000 | $0 | $306,491 | $306,491 |
| 2013 | $254,139 | $55,000 | $0 | $309,139 | $309,139 |
| 2012 | $256,786 | $60,000 | $0 | $316,786 | $316,786 |
| 2011 | $251,475 | $65,000 | $0 | $316,475 | $316,475 |
| 2010 | $218,139 | $65,000 | $0 | $283,139 | $283,139 |
| 2009 | $0 | $70,000 | $0 | $70,000 | $70,000 |
| 2008 | $0 | $34,373 | $0 | $34,373 | $34,373 |
Deed and Sales History
| 1 | 06/15/2022 | WD | Warranty Deed | OTT, SHAINE | FRAZER, DAVID A | | | $635,000.00 | 53599 | 4547227 |
| 2 | 07/29/2019 | WD | Warranty Deed | BRAYDEN, THOMAS L | OTT, SHAINE | | | $429,900.00 | 39680 | 4468529 |
| 3 | 07/14/2017 | WD | Warranty Deed | SAMEK, ERIC J | BRAYDEN, THOMAS L | | | $390,900.00 | 30302 | 4426781 |
| 4 | 03/22/2016 | WD | Warranty Deed | PICCONE, MICHAEL J | SAMEK, ERIC J | | | $335,500.00 | 23647 | 4396367 |
| 5 | 03/23/2010 | WD | Warranty Deed | WEST MEADOWS PARTNERS INC, | PICCONE, MICHAEL J | | | $325,669.00 | 700 | 4271129 |
| 6 | 03/05/2010 | QCD | Quit Claim Deed | WEST MEADOWS PARTNERS INC, | WEST MEADOWS PARTNERS INC, | | | $21,775.00 | 585 | 4270288 |
| 7 | 01/01/1900 | OTHER | Other - Misc. Documents | Unknown | WEST MEADOWS PARTNERS INC, | | | $0.00 | 0 | 0 |
Payout Agreement
| No payout information available.. |