Property
Account |
| Property ID: | 809056 | Abbreviated Legal Description: | WEST MEADOWS LOT 29 |
| Geographic ID: | S8532-00-00029-0 | Agent Code: | |
| Type: | Real | | |
| Tax Area: | 100 - APPRAISER-OH Schl Dist, in OH | Land Use Code | 11 |
| Open Space: | N | DFL | N |
| Historic Property: | N | Remodel Property: | N |
| Multi-Family Redevelopment: | N | | |
| Township: | | Section: | |
| Range: | |
Location |
| Address: | 2019 NW UPSALA DR OAK HARBOR, WA 98277 | Mapsco: | |
| Neighborhood: | Cycle 1 | Map ID: | 251 |
| Neighborhood CD: | 1 |
Owner |
| Name: | ANDREWS, SHAUN SAMUEL | Owner ID: | 300101 |
| Mailing Address: | MICHELEI TARESE ANDREWS 2019 NW UPSALA DR OAK HARBOR, WA 98277 | % Ownership: | 100.0000000000% |
| | | Exemptions: | |
Taxes and Assessment Details
Values
| (+) Improvement Homesite Value: | + | $0 | |
| (+) Improvement Non-Homesite Value: | + | $418,001 | |
| (+) Land Homesite Value: | + | $0 | |
| (+) Land Non-Homesite Value: | + | $135,000 | |
| (+) Curr Use (HS): | + | $0 | $0 |
| (+) Curr Use (NHS): | + | $0 | $0 |
| | | -------------------------- | |
| (=) Market Value: | = | $553,001 | |
| (–) Productivity Loss: | – | $0 | |
| | | -------------------------- | |
| (=) Subtotal: | = | $553,001 | |
| (+) Senior Appraised Value: | + | $0 | |
| (+) Non-Senior Appraised Value: | + | $553,001 | |
| | | -------------------------- | |
| (=) Total Appraised Value: | = | $553,001 | |
| (–) Senior Exemption Loss: | – | $0 | |
| (–) Exemption Loss: | – | $0 | |
| | | -------------------------- | |
| (=) Taxable Value: | = | $553,001 | |
Taxing Jurisdiction
| Owner: | ANDREWS, SHAUN SAMUEL | | |
| % Ownership: | 100.0000000000% | | |
| Total Value: | $553,001 | | |
| Tax Area: | 100 - APPRAISER-OH Schl Dist, in OH |
| CF | Conservation Futures | 0.0313996660 | $553,001 | $553,001 | $17.36 | | |
| CEM1 | Cemetery #1 | 0.0040018856 | $553,001 | $553,001 | $2.21 | | |
| COH | City of Oak Harbor | 2.3090730572 | $553,001 | $553,001 | $1,276.92 | | |
| OAKBOND | City of Oak Harbor BOND | 0.1902260131 | $553,001 | $553,001 | $105.20 | | |
| HOBOND | Hospital BOND | 0.1893405597 | $553,001 | $553,001 | $104.71 | | |
| HOGEN | Hospital GEN | 0.3848777722 | $553,001 | $553,001 | $212.84 | | |
| CE | County Current Expense | 0.3674210519 | $553,001 | $553,001 | $203.18 | | |
| ISLANDEMS | Hospital GEN (EMS) | 0.4952018576 | $553,001 | $553,001 | $273.85 | | |
| LIB | Library Sno-Isle GEN | 0.3039084203 | $553,001 | $553,001 | $168.06 | | |
| NWHIDPRMT | P & R N Whidbey GEN | 0.1990272349 | $553,001 | $553,001 | $110.06 | | |
| SCH201MO | School 201 Enrichment | 2.3851112745 | $553,001 | $553,001 | $1,318.97 | | |
| ST | State School | 1.4761226122 | $553,001 | $553,001 | $816.30 | | |
| ST2 | State School Part 2 | 0.7953803475 | $553,001 | $553,001 | $439.85 | | |
| | Total Tax Rate: | 9.1310917527 | | | | | |
| | | | | Taxes w/Current Exemptions: | $5,049.51 | | |
| | | | | Taxes w/o Exemptions: | $5,049.51 | | |
Improvement / Building
| Improvement #1: | RESIDENTIAL | State Code: | Y | 2007.6 sqft | Value: | $418,001 |
| Bathrooms: | 2.5 | Bedrooms: | 4 | | Ceiling: | DRYWALL PAINTED | Exterior Wall/Cover: | PLY/HARDBOARD T-111 | | Floor Covering: | HARDWOOD/CARP 60-40 | Floor Structure: | WOOD W/SUBFLOOR | | Foundation: | CONCRETE | Heating: | FHA GAS | | Interior Finish: | DRYWALL PAINT | Plumbing Fixture Cnt: | 13 | | Roof Slope: | 6" IN 12" | Roof Structure/Cover: | CJ ASPHALT |
|
| | Type | Description | Class CD | Sub Class CD | Year Built | Area |
| | BAS | BASE/MAIN FLOOR | 4 | 0 | 2010 | 1057.6 |
| | OP1 | OPEN PORCH SLAB | 4 | 0 | 2010 | 143.0 |
| | OP4 | OPEN PORCH W/CEILING-ROOF | 4 | 0 | 2010 | 40.0 |
| | BIG | BUILT IN GARAGE | 4 | 0 | 2010 | 528.0 |
| | UPS | UPPER STORY | 4 | 0 | 2010 | 950.0 |
Sketch
Property Image
Land
| 1 | 13 | SQ (06001-08000) | 0.1654 | 7205.28 | 0.00 | 0.00 | 1.00 | $135,000 | $0 |
Roll Value History
| 2026 | N/A | N/A | N/A | N/A | N/A |
| 2025 | $418,001 | $135,000 | $0 | $553,001 | $553,001 |
| 2024 | $421,717 | $130,000 | $0 | $551,717 | $551,717 |
| 2023 | $414,517 | $150,000 | $0 | $564,517 | $564,517 |
| 2022 | $378,508 | $120,000 | $0 | $498,508 | $498,508 |
| 2021 | $332,077 | $90,000 | $0 | $422,077 | $422,077 |
| 2020 | $321,885 | $90,000 | $0 | $411,885 | $411,885 |
| 2019 | $238,864 | $145,000 | $0 | $383,864 | $383,864 |
| 2018 | $239,504 | $120,000 | $0 | $359,504 | $359,504 |
| 2017 | $216,870 | $110,000 | $0 | $326,870 | $326,870 |
| 2016 | $219,227 | $90,000 | $0 | $309,227 | $309,227 |
| 2015 | $221,585 | $70,000 | $0 | $291,585 | $291,585 |
| 2014 | $223,942 | $55,000 | $0 | $278,942 | $278,942 |
| 2013 | $226,299 | $55,000 | $0 | $281,299 | $281,299 |
| 2012 | $228,657 | $60,000 | $0 | $288,657 | $288,657 |
| 2011 | $216,565 | $65,000 | $0 | $281,565 | $281,565 |
| 2010 | $188,225 | $65,000 | $0 | $253,225 | $253,225 |
| 2009 | $0 | $70,000 | $0 | $70,000 | $70,000 |
| 2008 | $0 | $34,373 | $0 | $34,373 | $34,373 |
Deed and Sales History
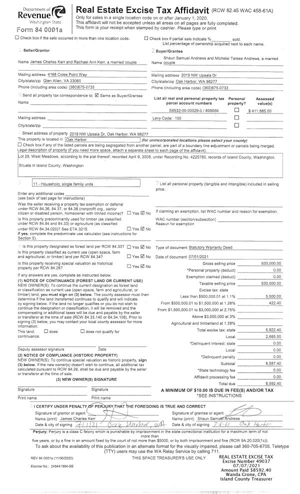
| 1 | 07/01/2021 | WD | Warranty Deed | KERR, JAMES CHARLES | ANDREWS, SHAUN SAMUEL | | | $533,000.00 | 49037 | 4523652 |
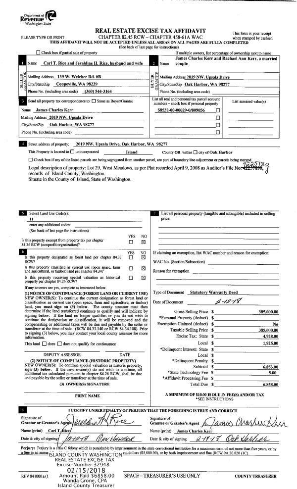
| 2 | 02/12/2018 | WD | Warranty Deed | RICE, CARL T | KERR, JAMES CHARLES | | | $385,000.00 | 32948 | 4439237 |
| 3 | 03/18/2010 | WD | Warranty Deed | SEATTLE PACIFIC HOMES INC, | RICE, CARL T | | | $299,950.00 | 621 | 4270650 |
| 4 | 01/04/2010 | WD | Warranty Deed | WEST MEADOWS PARTNERS INC, | SEATTLE PACIFIC HOMES INC, | | | $76,229.00 | 71 | 4266787 |
| 5 | 01/01/1900 | OTHER | Other - Misc. Documents | Unknown | WEST MEADOWS PARTNERS INC, | | | $0.00 | 0 | 0 |
Payout Agreement
| No payout information available.. |