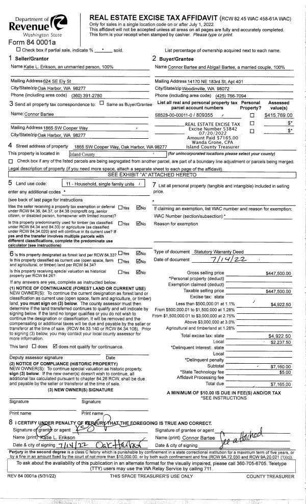
| 1 | 07/14/2022 | WD | Warranty Deed | ERIKSON, KATIE L | BARTEE, CONNOR | | | $447,500.00 | 53842 | 4548459 |
| 2 | 12/10/2018 | WD | Warranty Deed | SIDHU, SARABJIT KAUR | ERIKSON, KATIE L | | | $299,900.00 | 37171 | 4457353 |
| 3 | 08/30/2018 | QCD | Quit Claim Deed | SINGH ENTERPRISES, LLC | SIDHU, SARABJIT KAUR | | | $125,000.00 | 35726 | 4451005 |
|   | |
| 4 | 01/18/2018 | QCD | Quit Claim Deed | SINGH, HAKAM | SINGH ENTERPRISES, LLC | | | $0.00 | 32805 | 4438390 |
| 5 | 09/26/2017 | WD | Warranty Deed | ROSE HILL ASSOCIATES LLC | SINGH, HAKAM | | | $1,500,000.00 | 31373 | 4431361 |
|   | |
| 6 | 01/01/1900 | OTHER | Other - Misc. Documents | Unknown | ROSE HILL ASSOCIATES LLC, | | | $0.00 | 0 | 0 |