| 1 | 09/29/2022 | WD | Warranty Deed | PARK, SHAWN J | NANCE, CHRISTOPHER | | | $475,000.00 | 54775 | 4552208 |
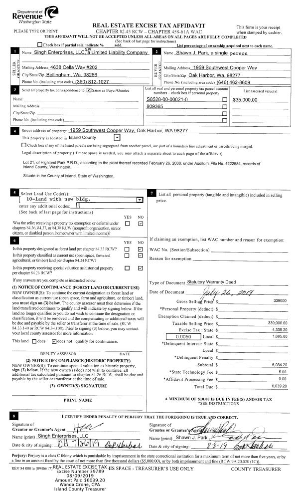
| 2 | 07/26/2019 | WD | Warranty Deed | SINGH ENTERPRISES, LLC | PARK, SHAWN J | | | $339,000.00 | 39789 | 4469017 |
| 3 | 01/18/2018 | QCD | Quit Claim Deed | SINGH, HAKAM | SINGH ENTERPRISES, LLC | | | $0.00 | 32805 | 4438390 |
| 4 | 09/26/2017 | WD | Warranty Deed | ROSE HILL ASSOCIATES LLC | SINGH, HAKAM | | | $1,500,000.00 | 31373 | 4431361 |
|   | |
| 5 | 01/01/1900 | OTHER | Other - Misc. Documents | Unknown | ROSE HILL ASSOCIATES LLC, | | | $0.00 | 0 | 0 |