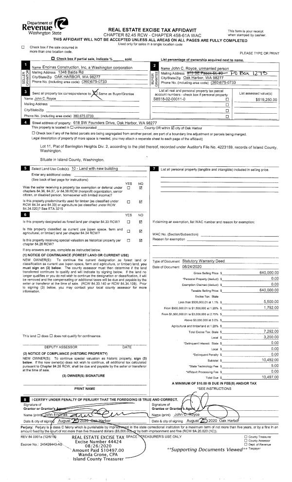
| 1 | 08/24/2020 | WD | Warranty Deed | ENCINAS CONSTRUCTION, INC | ROYCE, JOHN C | | | $640,000.00 | 44424 | 4494830 |
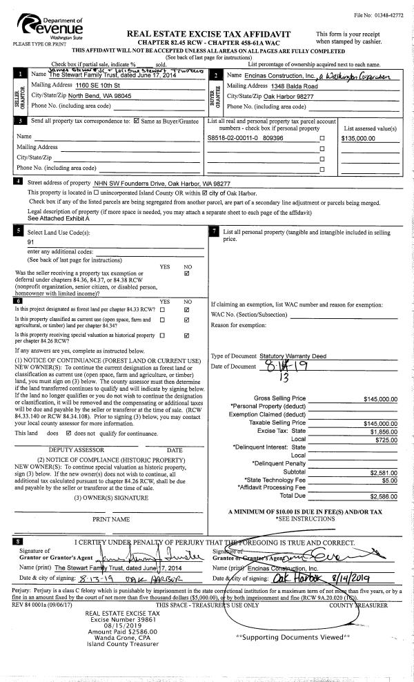
| 2 | 08/13/2019 | WD | Warranty Deed | STEWART JR TRUSTEE, JAMES | ENCINAS CONSTRUCTION, INC | | | $145,000.00 | 39861 | 4469366 |
| 3 | 08/20/2014 | TRUSTEED | Trustee's Deed | STEWART JR, JAMES LESLIE | STEWART JR TRUSTEE, JAMES | | | $0.00 | 16707 | 4365144 |
| 4 | 05/20/2008 | WD | Warranty Deed | MAPLE HILL DEVELOPMENT INC, | STEWART JR, JAMES LESLIE | | | $180,000.00 | 81350 | 4229614 |
| 5 | 01/01/1900 | OTHER | Other - Misc. Documents | Unknown | MAPLE HILL DEVELOPMENT INC, | | | $0.00 | 0 | 0 |